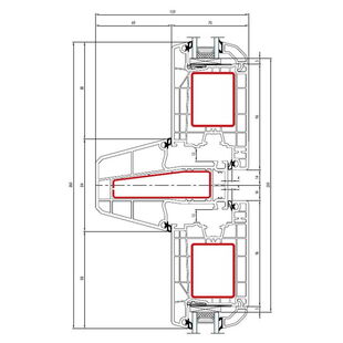
Detailzeichnungen Aluplast IDEAL 4000 NL Blockprofil

Kunststofffensterprofil IDEAL 4000 NL Blockprofil Querschnitte

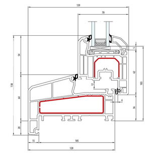
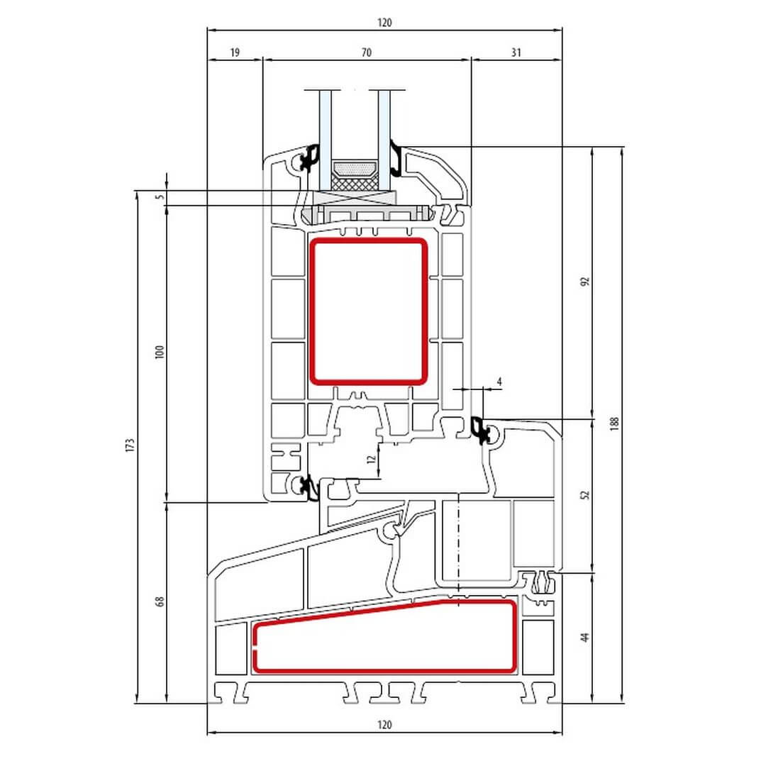
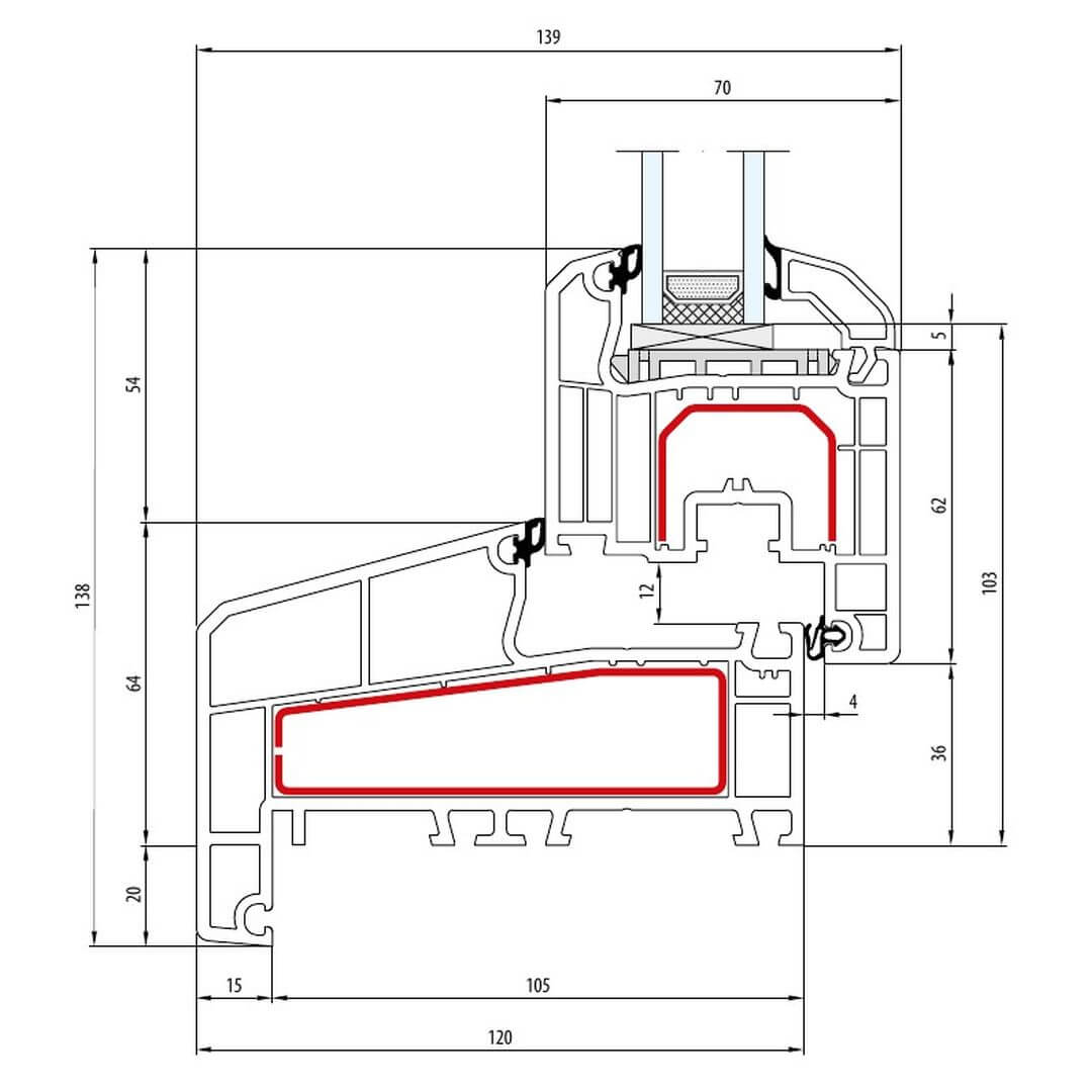
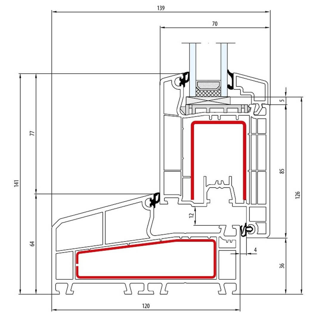
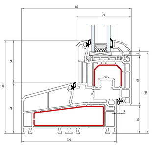
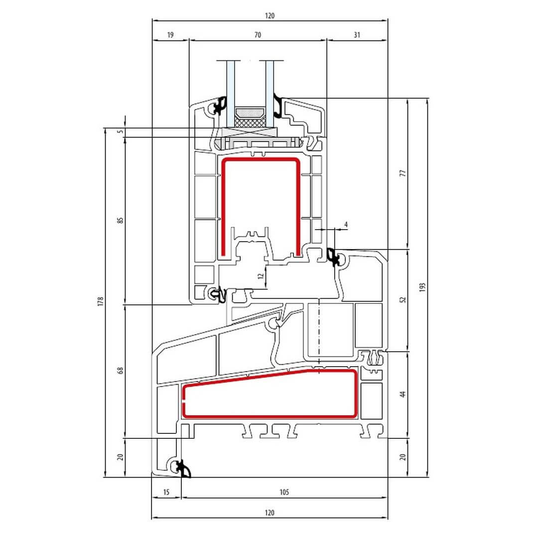
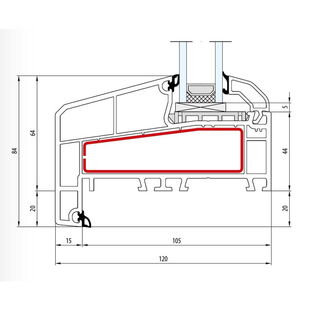
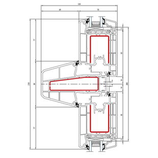
Aluplast IDEAL 4000 NL Festverglasung Bautiefe 120mm - 140x53

IDEAL 4000 NL Festverglasung Bautiefe 120mm - 140x53

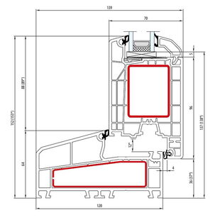
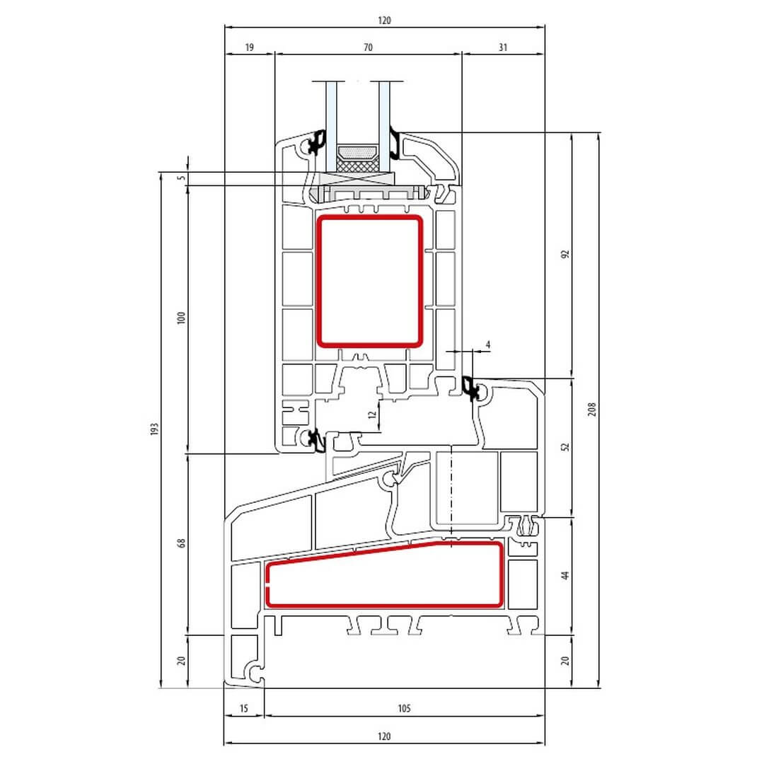
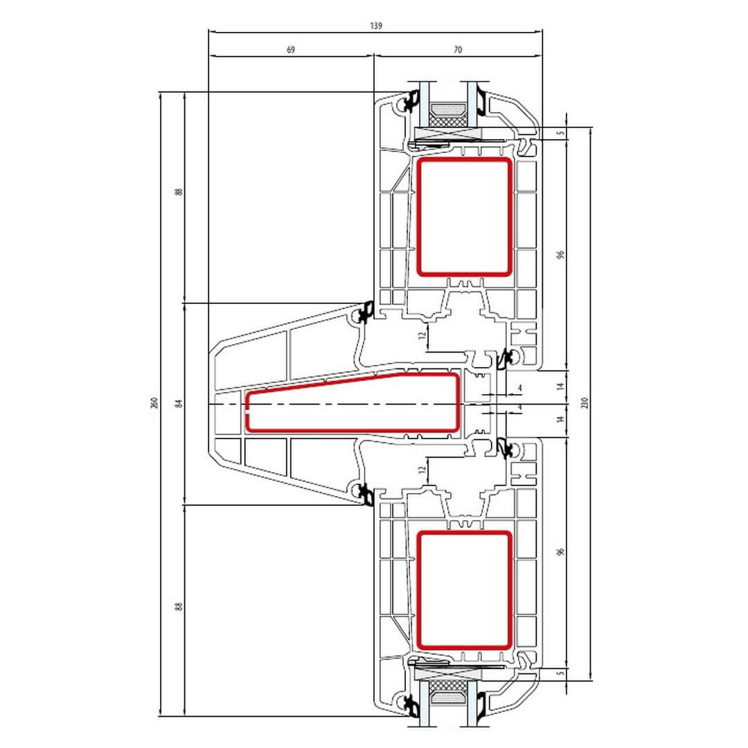
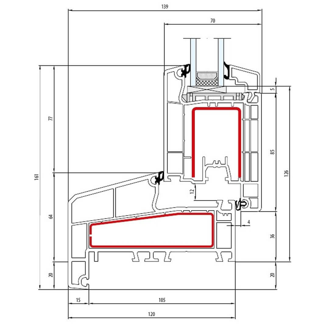
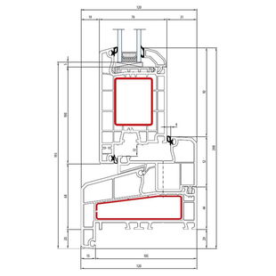
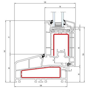
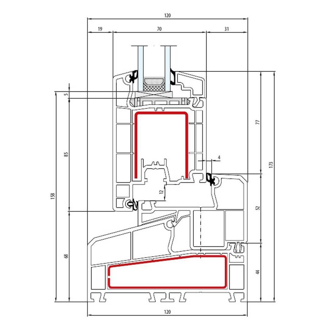
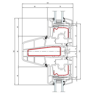
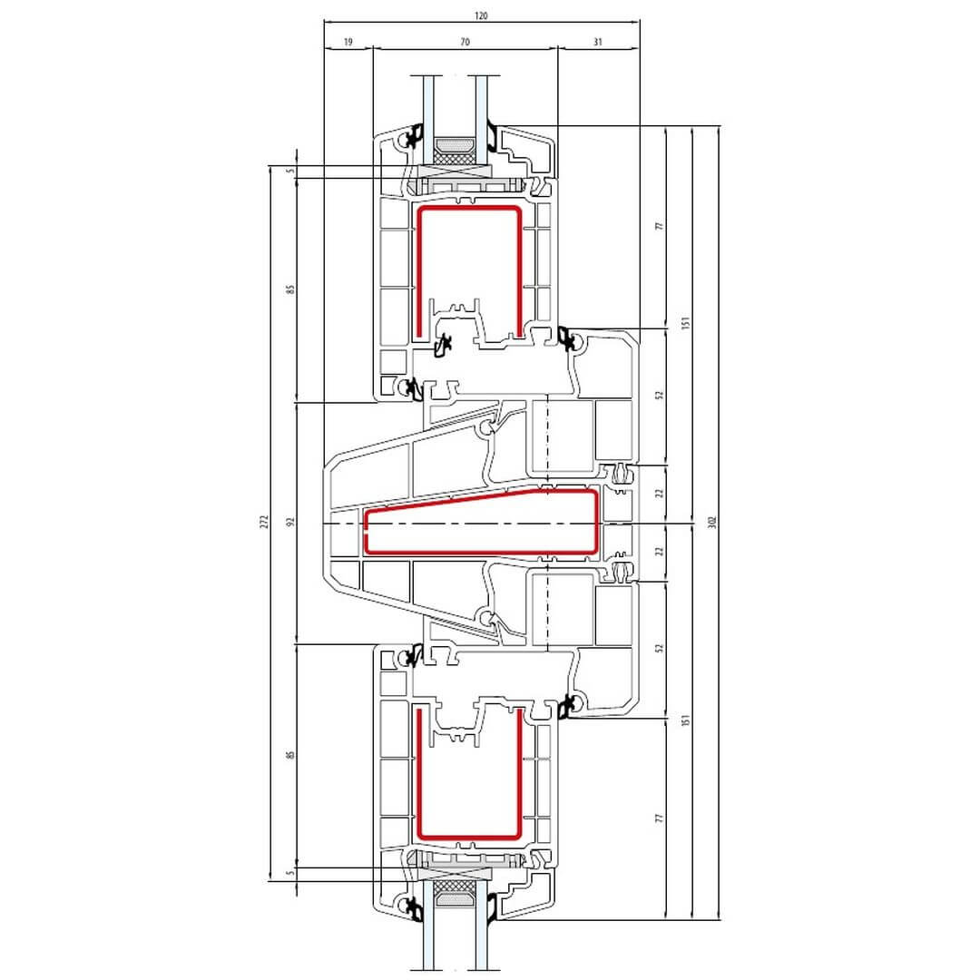
Aluplast IDEAL 4000 NL Fenster Classic-Line 113mm - 140x53 - 140x20

IDEAL 4000 NL Fenster Classic-Line 113mm - 140x53 - 140x20

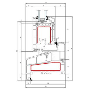
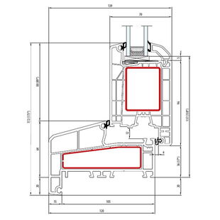
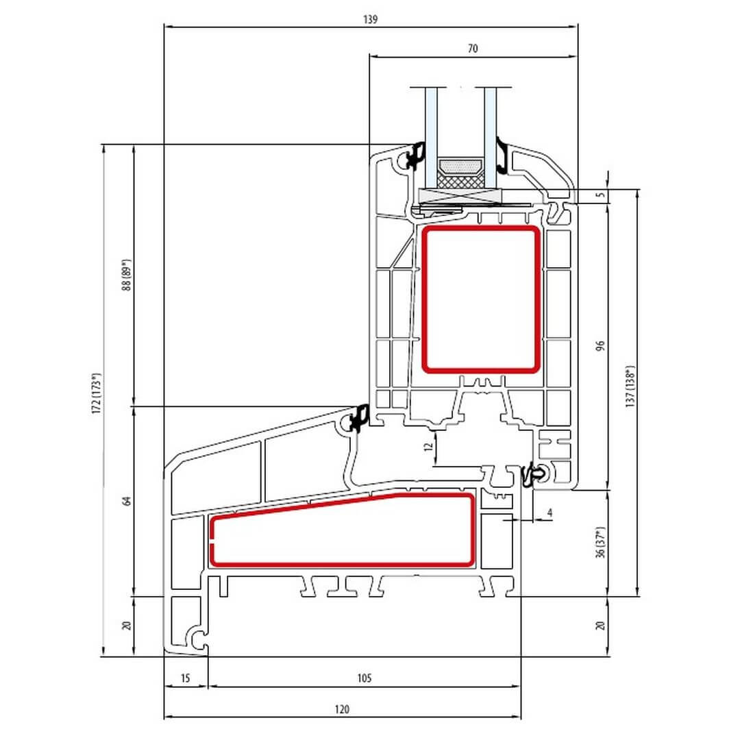
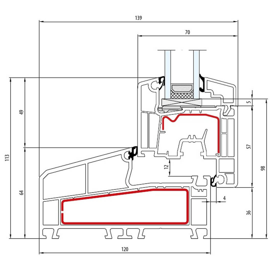
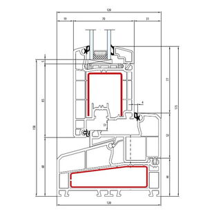
Aluplast IDEAL 4000 NL Fenster Soft-Line 118mm - 140x53 - 140x23

IDEAL 4000 NL Fenster Soft-Line 118mm - 140x53 - 140x23

Kunststofffenster IDEAL 4000 NL Blockprofil mit Flosse 20mm (140x54)

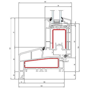
Aluplast IDEAL 4000 NL Festverglasung Bautiefe 120mm Flosse 20mm - 140x54

IDEAL 4000 NL Festverglasung Bautiefe 120mm Flosse 20mm - 140x54

Aluplast IDEAL 4000 NL Fenster Classic-Line 113mm Flosse 20mm - 140x54 - 140x20

IDEAL 4000 NL Fenster Classic-Line 113mm Flosse 20mm - 140x54 - 140x20

Aluplast IDEAL 4000 NL Fenster Soft-Line 118mm Flosse 20mm - 140x54 - 140x23

IDEAL 4000 NL Fenster Soft-Line 118mm Flosse 20mm - 140x54 - 140x23

Kunststofffenster IDEAL 4000 NL Blockprofil mit Pfosten 84mm NL

Aluplast IDEAL 4000 NL Pfosten 84mm - 140x57

IDEAL 4000 NL Pfosten 84mm - 140x57

Aluplast IDEAL 4000 NL Pfosten 84mm Fenster Classic-Line 77mm - 140x57 - 140x20

IDEAL 4000 NL Pfosten 84mm Fenster Classic-Line 77mm - 140x57 - 140x20

Aluplast IDEAL 4000 NL Pfosten 84mm Fenster Round-Line 77mm - 140x57 - 140x22

IDEAL 4000 NL Pfosten 84mm Fenster Round-Line 77mm - 140x57 - 140x22

Kunststofffenster IDEAL 4000 NL Blockprofil mit Stulp 64mm

Aluplast IDEAL 4000 Stulp 64mm Fenster Classical-Line 77mm 140x66-140x20

IDEAL 4000 Stulp 64mm Fenster Classic-Line 77mm - 140x66-140x20

Aluplast IDEAL 4000 Stulp 64mm Fenster Round-Line 77mm 140x66-140x22

IDEAL 4000 Stulp 64mm Fenster Round-Line 77mm - 140x66-140x22

Kunststofffenster IDEAL 4000 NL Blockprofil mit Stulp (Sonderkonstruktionen auf Anfrage)

Aluplast IDEAL 4000 Stulp 44mm Fenster Classic-Line 140x65-140x20

IDEAL 4000 Stulp 44mm Fenster Classic-Line 77mm - 140x65-140x20

Aluplast IDEAL 4000 Stulp 44mm Fenster Round-Line 77mm 140x65-140x22

IDEAL 4000 Stulp 44mm Fenster Round-Line 77mm - 140x65-140x22

Aluplast IDEAL 4000 Stulp 32mm Fenster Classic-Line 77mm 140x76-140x20

IDEAL 4000 Stulp 32mm (Griff zentral) Fenster Classic-Line 77mm - 140x76-140x20

Aluplast IDEAL 4000 Stulp 32mm Fenster Round-Line 77mm 140x82-140x22

IDEAL 4000 Stulp 32mm (Griff zentral) Fenster Round-Line 77mm - 140x82-140x22

Kunststoff Balkontür IDEAL 4000 NL Blockprofil

Aluplast IDEAL 4000 NL Fenster Classic-Line 113mm - 140x53 - 140x20

IDEAL 4000 NL Balkontür Classic-Line mit Blendrahmen 113mm - 140x53 - 140x20

Aluplast IDEAL 4000 NL Fenster Classic-Line 113mm Flosse 20mm - 140x54 - 140x20

IDEAL 4000 NL Balkontür Classic-Line mit Blendrahmen 113mm Flosse 20mm - 140x54 - 140x20

Aluplast IDEAL 4000 Balkontürschwelle 20mm Classic-Line 77mm 140x20

IDEAL 4000 Balkontürschwelle 20mm Classic-Line 77mm - 140x20

Kunststoff Terrassenflügel IDEAL 4000 NL Blockprofil

Aluplast IDEAL 4000 NL Terrassentür innen öffnend Classic-Line 141mm - 140x53 - 140x30

IDEAL 4000 NL Terrassentür innen öffnend Classic-Line 141mm - 140x53 - 140x30

Aluplast IDEAL 4000 NL Terrassentür innen öffnend Classic-Line 141mm Flosse 20mm - 140x54 - 140x30

IDEAL 4000 NL Terrassentür innen öffnend Classic-Line 141mm Flosse 20mm - 140x54 - 140x30

Aluplast IDEAL 4000 Terassentürschwelle 20mm innen öffnend Classic-Line 140x30

IDEAL 4000 Terassentürschwelle 20mm innen öffnend Classic-Line - 140x30

Aluplast IDEAL 4000 NL Terrassentür außen öffnend Classic-Line 173mm - 140x53 - 140x58 - 140x31

IDEAL 4000 NL Terrassentür außen öffnend Classic-Line 173mm - 140x53 - 140x58 - 140x31

Aluplast IDEAL 4000 NL Terrassentüraußen öffnend Classic-Line 173mm Flosse 20mm - 140x54 - 140x58 - 140x31

IDEAL 4000 NL Terrassentür außen öffnend Classic-Line 173mm Flosse 20mm - 140x54 - 140x58 - 140x31

Aluplast IDEAL 4000 Terassentürschwelle 20mm aussen öffnend Classic-Line 140x31

IDEAL 4000 Terassentürschwelle 20mm aussen öffnend Classic-Line - 140x31

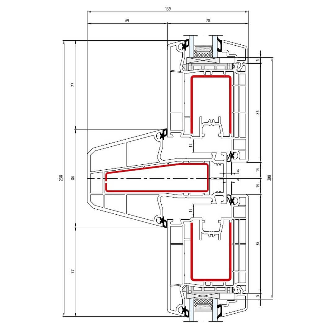
Terrassenflügel IDEAL 4000 NL Blockprofil mit Pfosten 84mm

Aluplast IDEAL 4000 NL Pfosten 84mm Terrassentür innen öffnend Classic-Line 238mm - 140x57 - 140x30

IDEAL 4000 NL Pfosten 84mm Terrassentür innen öffnend Classic-Line - 140x57 - 140x30

Aluplast IDEAL 4000 NL Pfosten 84mm Terrassentür außen öffnend Classic-Line - 140x57 - 140x31

IDEAL 4000 NL Pfosten 84mm Terrassentür außen öffnend Classic-Line - 140x57 - 140x31

Terrassenflügel IDEAL 4000 NL Blockprofil mit Stulp 64mm

Aluplast IDEAL 4000 Stulp 64mm Terassentür innen öffnend Classic-Line 140x66-140x30

IDEAL 4000 Stulp 64mm Terassentür innen öffnend Classic-Line - 140x66-140x30

Aluplast IDEAL 4000 Stulp 64mm Terassentür aussen öffnend Classic-Line 140x66-140x31

IDEAL 4000 Stulp 64mm Terassentür aussen öffnend Classic-Line - 140x66-140x31

Kunststoff IDEAL 4000 NL Blockprofil PSK Parallel-Schiebe-Kipp-Tür

Kunststoff Haustür IDEAL 4000 NL Blockprofil

Aluplast IDEAL 4000 NL Tür innen öffnend Classic-Line 152mm - 140x53 - 140x33

IDEAL 4000 NL Tür innen öffnend - 140x53 - 140x33

Aluplast IDEAL 4000 NL Tür innen öffnend Classic-Line 172mm Flosse 20mm - 140x54 - 140x33

IDEAL 4000 NL Tür innen öffnend Flosse 20mm - 140x54 - 140x33

Aluplast IDEAL 4000 Türschwelle 20mm innen öffnend Classic-Line 140x33

IDEAL 4000 Türschwelle 20mm innen öffnend - 140x33

Aluplast IDEAL 4000 NL Tür außen öffnend Classic-Line 188mm - 140x53 - 140x58 - 140x35

IDEAL 4000 NL Tür außen öffnend - 140x53 - 140x58 - 140x35

Aluplast IDEAL 4000 NL Tür außen öffnend Classic-Line 208mm Flosse 20mm - 140x54 - 140x58 - 140x35

IDEAL 4000 NL Tür außen öffnend Flosse 20mm - 140x54 - 140x58 - 140x35

Aluplast IDEAL 4000 NL Türschwelle 20mm aussen öffnend Classic-Line 140x35

IDEAL 4000 NL Türschwelle 20mm aussen öffnend - 140x35

Türflügel IDEAL 4000 NL Blockprofil mit Pfosten 84mm

Aluplast IDEAL 4000 NL Pfosten 84mm Tür innen öffnend Classic-Line - 140x57 - 140x33

IDEAL 4000 NL Pfosten 84mm Tür innen öffnend - 140x57 - 140x33

Aluplast IDEAL 4000 NL Pfosten 84mm Tür aussen öffnend Classic-Line - 140x57 - 140x35

IDEAL 4000 NL Pfosten 84mm Tür außen öffnend - 140x57 - 140x35

Türflügel IDEAL 4000 NL Blockprofil mit Stulp 64mm

Aluplast IDEAL 4000 Stulp 64mm Tür innen öffnend Classic-Line 140x66-140x33

IDEAL 4000 Stulp 64mm Tür innen öffnend - 140x66-140x33

Aluplast IDEAL 4000 Stulp 64mm Tür aussen öffnend Classic-Line 140x66-140x35

IDEAL 4000 Stulp 64mm Tür aussen öffnend - 140x66-140x35

Zusatzprofile für aluplast IDEAL 4000 NL Blockprofil Querschnitte

Kunststoff Sprossenarten - Ideal 4000 NL Blockprofil

Innenliegende SZR Sprossen / Helima Sprossen

Drutex Iglo SZR Sprosse 8mm

Innenliegende Sprosse 8mm

Drutex Iglo SZR Sprosse 18mm

Innenliegende Sprosse 18mm

Drutex Iglo SZR Sprosse 26mm

Innenliegende Sprosse 26mm

Drutex Iglo SZR Sprosse 45mm

Innenliegende Sprosse 45mm

Aufgesetzte / Aufgeklebte Sprossen

Aluplast 160376 - aufgesetzte Sprossen - 26mm

160376 - aufgesetzte Sprossen - 26mm

Aluplast 160378 - aufgesetzte Sprossen - 46mm

160378 - aufgesetzte Sprossen - 46mm

Aluplast 160479 - aufgesetzte Sprossen - 66mm

160479 - aufgesetzte Sprossen - 66mm

Glasteilende Sprossen - Kämpfer

Aluplast IDEAL 4000 NL Pfosten 84mm - 140x57

IDEAL 4000 NL Kämpfer-Sprosse 84mm - 140x57

Kunststoff Anschlussprofile - Ideal 4000 NL Blockprofil

Kunststoff Bankanschlussprofile

Aluplast 144247 - Fensterbankanschluss - 30mm

144247 - Fensterbankanschluss - 30mm

Aluplast 120238 - Fensterbankanschluss - 50mm

120238 - Fensterbankanschluss - 50mm

Kunststoff Steinbankanschlussprofile

Aluplast 120206 - Steinbankanschluss - 25mm

120206 - Steinbankanschluss - 25mm

Aluplast 120208 - Steinbankanschluss - 30mm

120208 - Steinbankanschluss - 30mm

Aluplast 120209 - Steinbankanschluss - 40mm

120209 - Steinbankanschluss - 40mm

Aluplast 120210 - Steinbankanschluss - 50mm

120210 - Steinbankanschluss - 50mm

Kunststoff Anschlussprofile (bündig)

Aluplast 140277 - Bankanschlussprofil - 10mm

140277 - Bankanschlussprofil - 10mm

Aluplast 120106 - Bankanschlussprofil - 20mm

120106 - Bankanschlussprofil - 20mm

Aluplast 120236 - Bankanschlussprofil - 15mm

120236 - Bankanschlussprofil - 15mm

Aluplast 120237 - Bankanschlussprofil - 30mm

120237 - Bankanschlussprofil - 30mm

Aluplast 120102 - Bankanschlussprofil - 50mm

120102 - Bankanschlussprofil - 50mm

Kunststoff Fensterbank-Anschlussprofile

Aluplast 140229 - Fensterbank - 42,5mm - außen

140229 - Fensterbank - 42,5mm - außen

Aluplast 120190 - Fensterbank - 115,5mm - außen

120190 - Fensterbank - 115,5mm - außen

Aluplast 120246 - Fensterbank - 50mm - außen

120246 - Fensterbank - 50mm - außen

Aluplast 120248 - Fensterbank - 55mm - außen

120248 - Fensterbank - 55mm - außen

Aluplast 120249 - Fensterbank - 90mm - außen

120249 - Fensterbank - 90mm - außen

Aluplast 140238 - Fensterbank - 80mm - außen

140238 - Fensterbank - 80mm - außen

600020, 600220, 650921, 620249 - Fensterbank - Endkappe

600020, 600220, 650921, 620249 - Fensterbank - Endkappe

Kunststoff Rahmenverbreiterung - Ideal 4000 NL Blockprofil (2x 60mm)

Aluplast 120220 - Rahmenverbreiterung - 15mm

120220 - Rahmenverbreiterung - 15mm

Aluplast 120242 - Rahmenverbreiterung - 35mm

120242 - Rahmenverbreiterung - 35mm

Aluplast 120221 - Rahmenverbreiterung - 60mm

120221 - Rahmenverbreiterung - 60mm

Aluplast 120223 - Rahmenverbreiterung - 130mm

120223 - Rahmenverbreiterung - 130mm

Kunststoff Kopplungen - Ideal 4000 NL Blockprofil

Aluplast 120116 - Federkopplung

120116 - Federkopplung

Aluplast 120224 - H - Kopplung - universal

120224 - H - Kopplung - universal

Aluplast 120109 - Statikprofil

120109 - Statikprofil

Kunststoff Abdeckleisten - Ideal 4000 NL Blockprofil

Aluplast Flachleisten aus Kunststoff Auswahl 65025100, 6465050, 65025080, 65025070, 65025050, 65025040, 65025030

65025100, 6465050, 65025080, 65025070, 65025050, 65025040, 65025030 - Flachleiste aus Kunststoff Auswahl

Aluplast Flachleisten mit Dichtlippe 120120, 120283

120120, 120283 - Flachleiste mit Dichtlippe Auswahl

Aluplast Deckleisten mit Hohlkammerprofil Auswahl

Hohlkammerprofil Deckleiste Auswahl

Winkelprofile aus Kunststoff 73100060, 73080050, 73060040, 73020020

73100060, 73080050, 73060040, 73020020 - Winkelprofil aus Kunststoff

Aluplast Winkelprofile aus Kunststoff 120292, 120291

120292, 120291 - Winkelprofil aus Kunststoff

Aluplast Hohlkammer Winkelprofil aus Kunststoff 120299, 120297, 120289, 120284

120299, 120297, 120289, 120284 - Hohlkammer Winkelprofil aus Kunststoff

Kunststoff Weitere Profile - Ideal 4000 NL Blockprofil

Aluplast 140275

140275 - Distanzprofil 22mm

Aluplast 140107

140107 - Wetterschenkel

Aluplast kozijnen en deuren op maat

Configureer en bestel eenvoudig en comfortabel Aluplast ramen en deuren online bij kozijnenblik.nl

Das könnte Sie auch interessieren:

Kunststofffenster IDEAL 70 Casement

Detailzeichnungen Kunststofffenster IDEAL 70 Casement

Kunststofffenster IDEAL 70 Casement besitzen verschiedene Tiefen von 70mm.

Detailzeichnungen IDEAL 70 Casement

Kunststofffenster IDEAL 7000 NL Blockprofil

Detailzeichnungen Kunststofffenster IDEAL 7000 NL Blockprofil

Kunststofffenster IDEAL 7000 NL Blockprofil besitzen verschiedene Tiefen von 120mm.

Detailzeichnungen IDEAL 7000 NL Blockprofil