Detailzeichnungen Drutex Iglo Energy AluCover

Kunststoff-Alu-Fensterprofil Iglo Energy AluCover Querschnitte

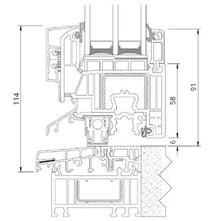
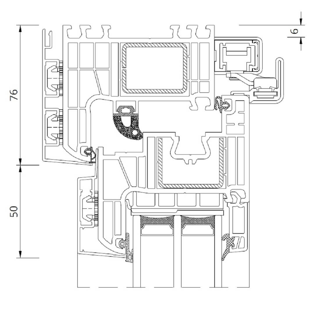
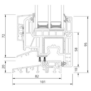
Iglo Energy Alucover - 70001 Festverglasung 74mm

Iglo Energy Alucover - 70001 Festverglasung 74mm

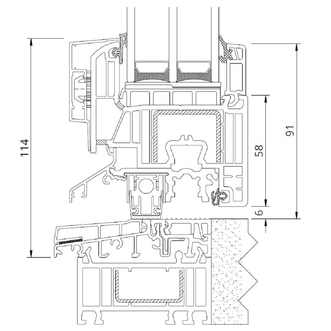
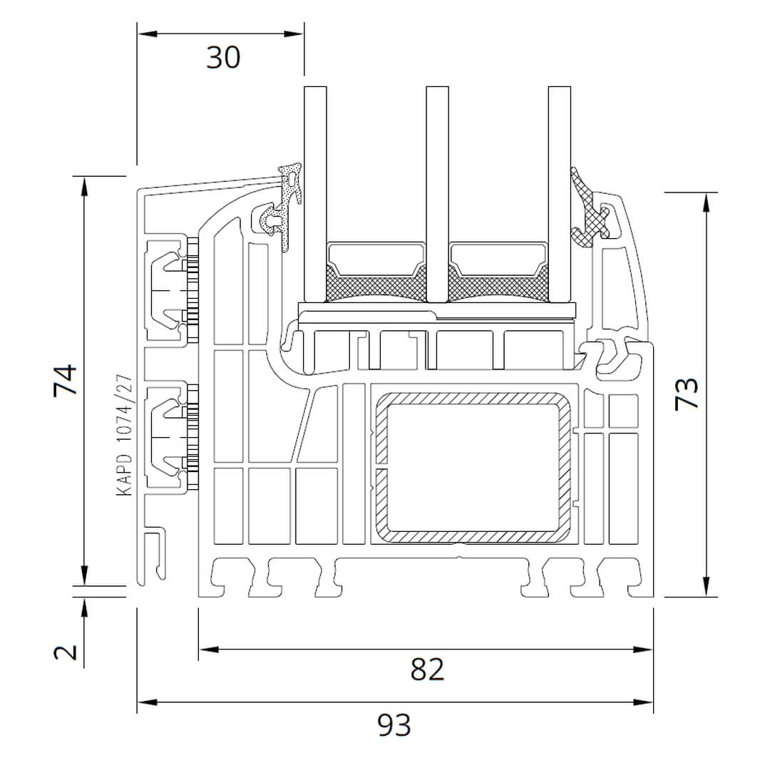
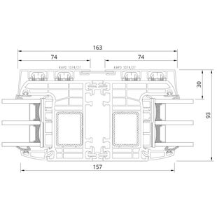
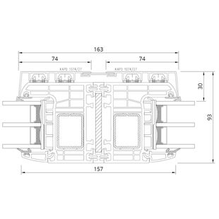
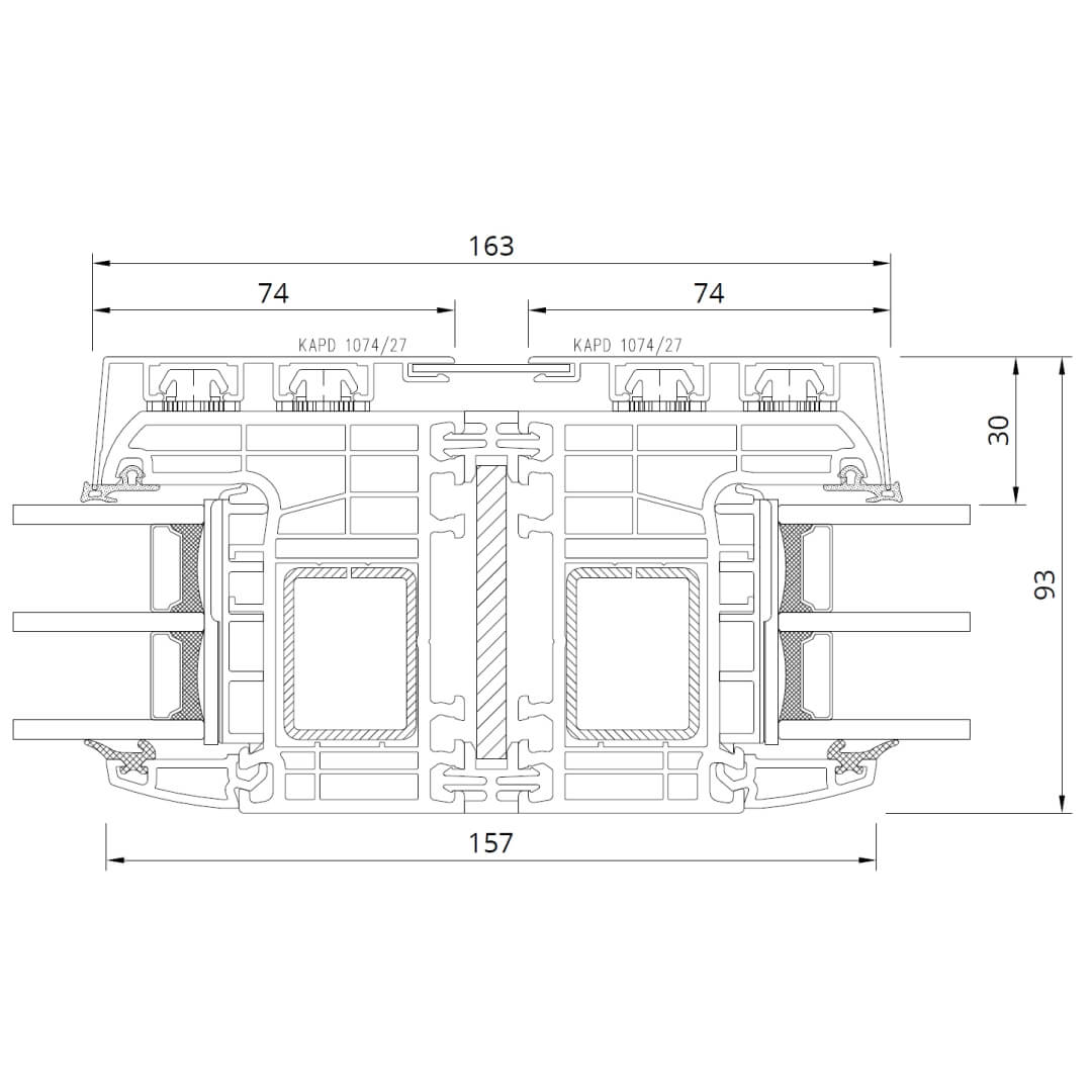
Iglo Energy AluCover - 70001-70013 Fenster 124mm

Iglo Energy AluCover - 70001-70013 Fenster 124mm

Kunststoff-Alu-Fenster Iglo Energy AluCover mit Pfosten

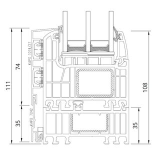
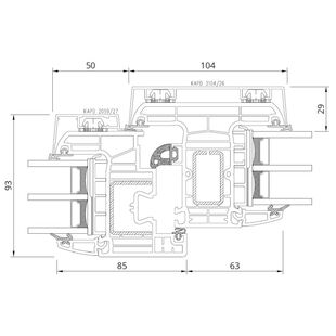
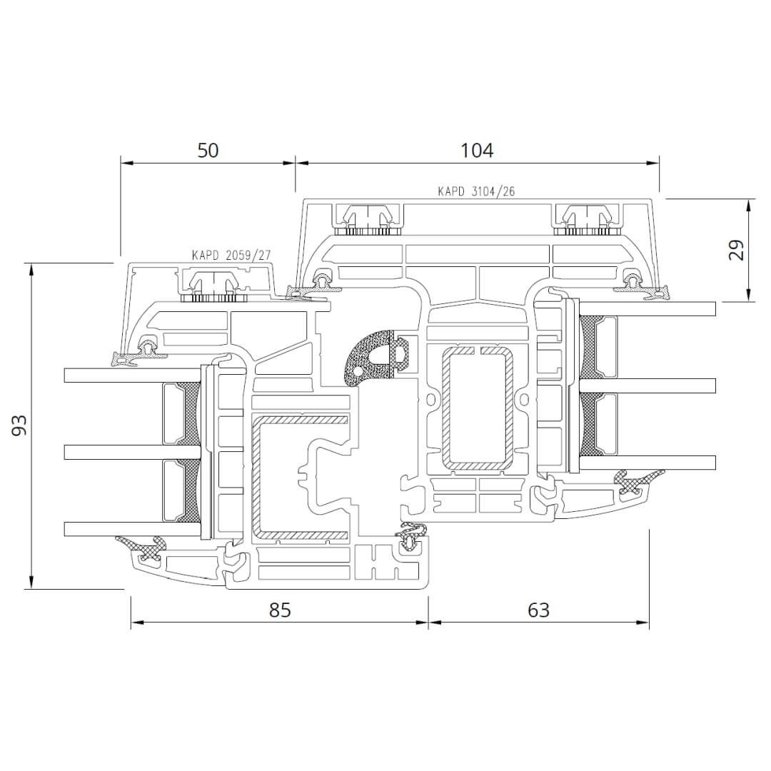
Iglo Energy Alucover - 70021 Pfosten 104mm

Iglo Energy Alucover - 70021 Pfosten 104mm

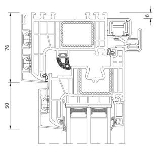
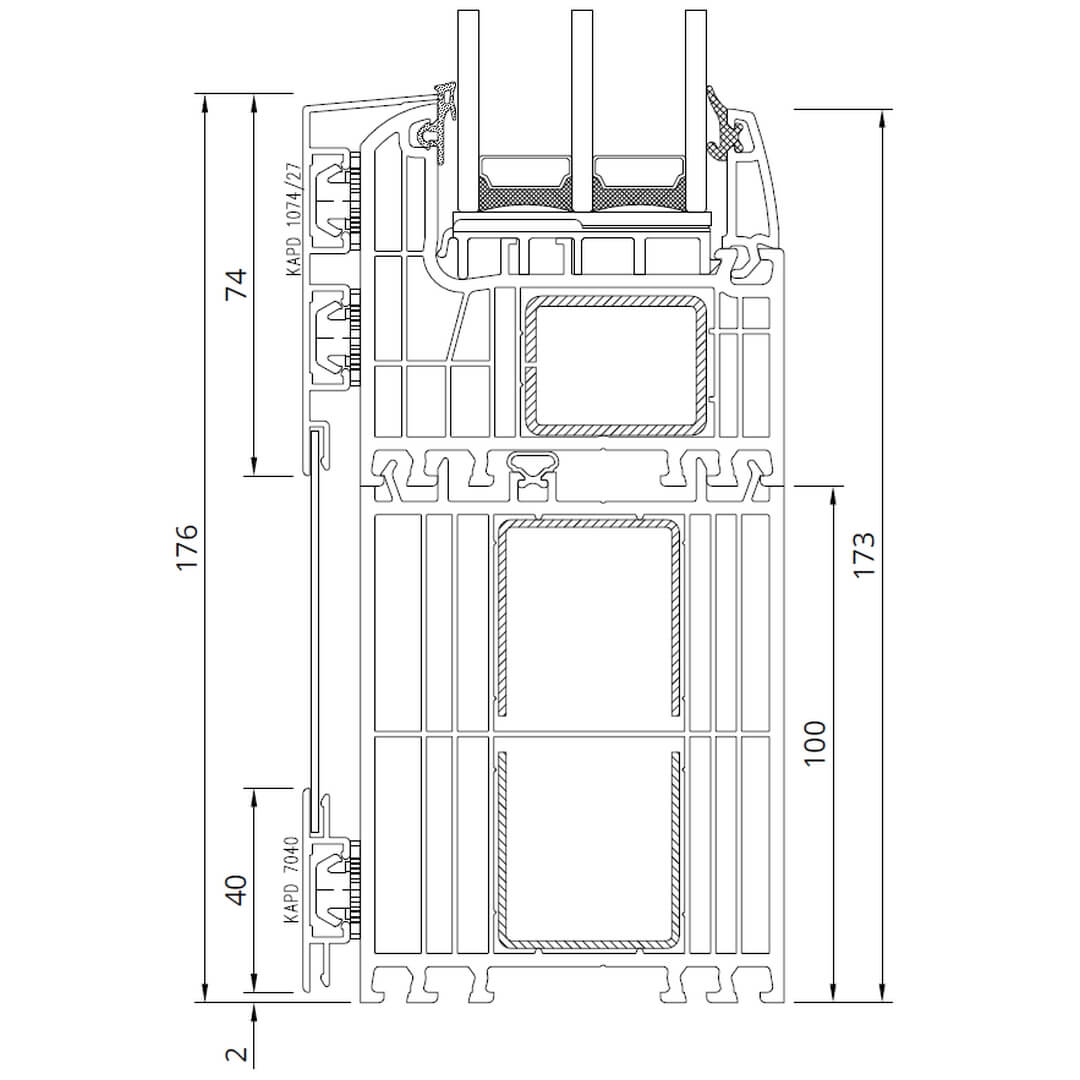
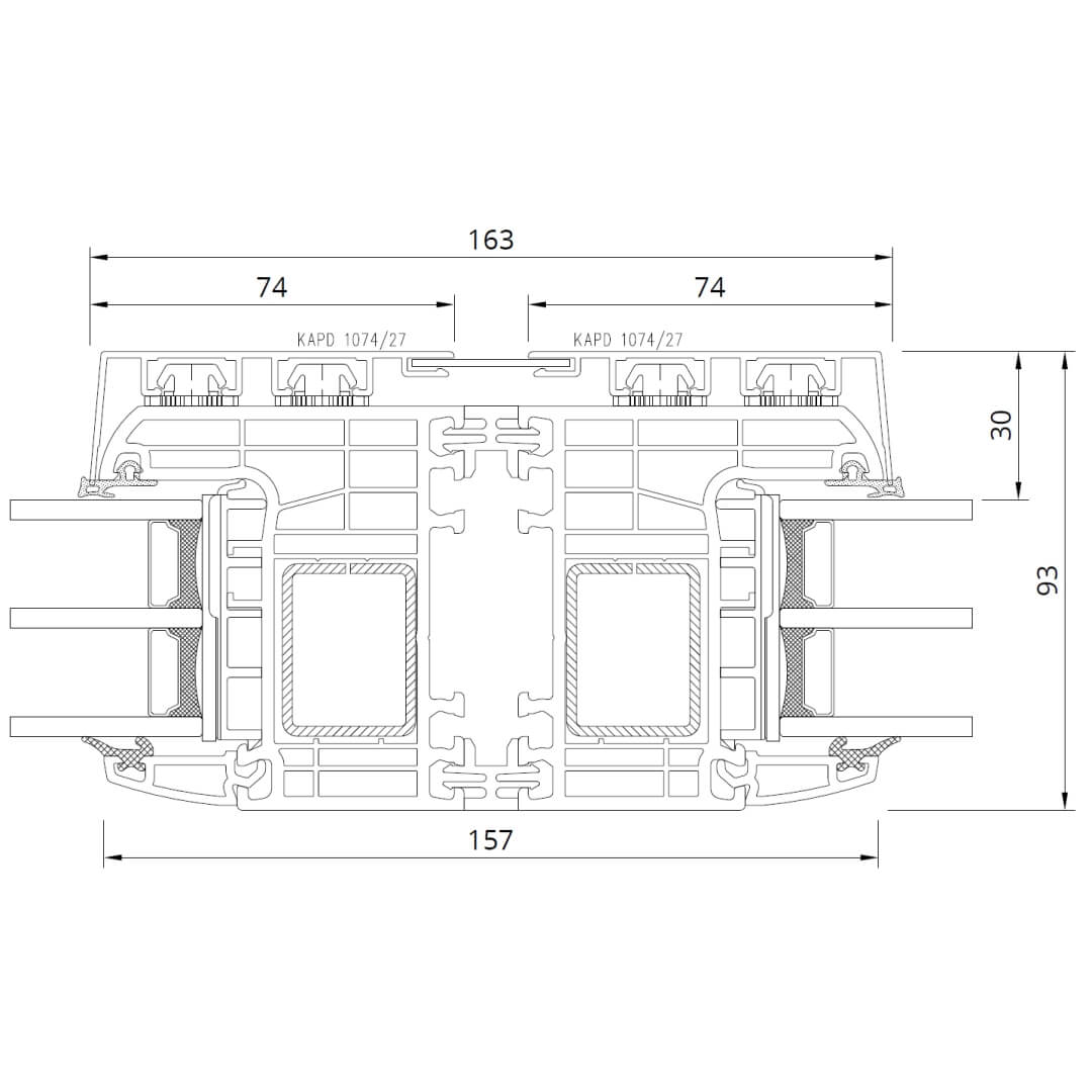
Iglo Energy Alucover - 70013 70021 Pfosten 104mm Fenster

Iglo Energy Alucover - 70013 70021 Pfosten 104mm Fenster

Iglo Energy Alucover - 70013 70021 Pfosten 104mm Fenster Fest

Iglo Energy Alucover - 70013 70021 Pfosten 104mm Fenster Dreh-Kipp + Fest

Kunststoff-Alu-Fenster Iglo Energy AluCover mit Stulp

Iglo Energy Alucover - 70013 70029 Stulp 84mm Fenster

Iglo Energy Alucover - 70013 70029 Stulp 84mm Fenster

Kunststoff-Aluminium Balkontür Iglo Energy AluCover

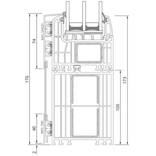
Iglo Energy AluCover - 70001-70013 Balkontür mit Blendrahmen

Iglo Energy AluCover - 70001-70013 Balkontür mit Blendrahmen

Iglo Energy AluCover - 70001-70013 Balkontürschwelle Combi 20mm

Iglo Energy AluCover - 70001-70013 Balkontürschwelle Combi 20mm

Iglo Energy AluCover - 70001-70013 Balkontürschwelle Combi Plan 0mm

Iglo Energy AluCover - 70001-70013 Balkontürschwelle Combi Plan 0mm

Kunststoff-Aluminium PSK Parallel-Schiebe-Kipp-Tür Iglo Energy AluCover

Iglo Energy AluCover - 70001-70013 PSK-Tür unten

Iglo Energy AluCover - 70001-70013 PSK-Tür unten

Iglo Energy AluCover - 70001-70013 PSK-Tür oben

Iglo Energy AluCover - 70001-70013 PSK-Tür oben

Zusatzprofile für Drutex Iglo Energy AluCover Querschnitte

Kunststoff Sprossenarten - Iglo Energy AluCover

Innenliegende SZR Sprossen / Helima Sprossen

Drutex Iglo SZR Sprosse 8mm

Innenliegende Sprosse 8mm

Drutex Iglo SZR Sprosse 18mm

Innenliegende Sprosse 18mm

Drutex Iglo SZR Sprosse 26mm

Innenliegende Sprosse 26mm

Drutex Iglo SZR Sprosse 45mm

Innenliegende Sprosse 45mm

Glasteilende Sprossen - Kämpfer

Iglo Energy Alucover - 70021 Kämpfer-Sprosse 104mm

Iglo Energy Alucover - 70021 Kämpfer-Sprosse 104mm

Kunststoff Anschlussprofile - Iglo Energy AluCover

Drutex Iglo Energy AluCover Fenster mit Bankanschluss 30mm Dichtung 54123

Iglo Energy AluCover Bankanschluss mit Dichtung - 54123

Drutex Iglo Energy AluCover Fenster mit Bankanschluss 30mm mit Dichtung und Zusatz 54113

Iglo Energy AluCover Bankanschluss mit Dichtung und Zusatz - 54113

Drutex Iglo Energy AluCover Fenster mit Bankanschluss 50mm 50114

Iglo Energy AluCover Bankanschluss 50mm - 50114

Kunststoff Steinbankanschlussprofile

Drutex Steinbankanschluss aus Kunststoff 25mm 120206

Steinbankanschluss 25mm - 120206

Drutex Steinbankanschluss aus Kunststoff 30mm 120208

Steinbankanschluss 30mm - 120208

Drutex Steinbankanschluss aus Kunststoff 40mm 120209

Steinbankanschluss 40mm - 120209

Drutex Steinbankanschluss aus Kunststoff 50mm 120210

Steinbankanschluss 50mm - 120210

Kunststoff Anschlussprofile

Drutex Anschlussprofil 15mm 120236

Anschlussprofil 15mm - 120236

Drutex Anschlussprofil 20mm L01350200

Anschlussprofil 20mm - L01350200

Drutex Anschlussprofil 30mm 50117

Anschlussprofil 30mm - 50117

Drutex Anschlussprofil 50mm L01100500

Anschlussprofil 50mm - L01100500

Drutex Iglo Anschlussprofil NL 50115

Fensterbank Anschlussprofil - 50115

Kunststoff Rahmenverbreiterung - Iglo Energy AluCover

Drutex Iglo Energy AluCover - 70001-70103 Fest Rahmenverbreiterung 15mm

Drutex Iglo Energy AluCover - 70001-70103 Fest Rahmenverbreiterung 15mm

Drutex Iglo Energy AluCover - 70001-70100 Fest Rahmenverbreiterung 35mm

Drutex Iglo Energy AluCover - 70001-70100 Fest Rahmenverbreiterung 35mm

Drutex Iglo Energy AluCover - 70001-70101 Fest Rahmenverbreiterung 60mm

Drutex Iglo Energy AluCover - 70001-70101 Fest Rahmenverbreiterung 60mm

Drutex Iglo Energy AluCover - 70001-70102 Fest Rahmenverbreiterung 100mm

Drutex Iglo Energy AluCover - 70001-70102 Fest Rahmenverbreiterung 100mm

Kunststoff Kopplungen - Iglo Energy AluCover

Drutex Iglo Energy AluCover - 70001-50124 Fest Kopplung Stahl

Drutex Iglo Energy AluCover - 70001-50124 Fest Kopplung Stahl

Drutex Iglo Energy AluCover - 70001-50124 Fest Kopplung

Drutex Iglo Energy AluCover - 70001-50124 Fest Kopplung

Drutex Iglo Energy AluCover - 70001-70103-70118 Fest Kopplung Stahl

Drutex Iglo Energy AluCover - 70001-70103-70118 Fest Kopplung Stahl

Drutex Iglo Energy AluCover - 70001-70103-70118 Fest Kopplung Stahl Fachleiste kurz

Drutex Iglo Energy AluCover - 70001-70103-70118 Fest Kopplung Stahl Fachleiste kurz

Kopplung von Eck-Elementen - 90° und Variabel

Drutex Iglo Energy AluCover - 70001-50120 Fest Eckkopplung variabel

Drutex Iglo Energy AluCover - 70001-50120 Fest Eckkopplung variabel

Drutex Iglo Energy AluCover - 70001-70122 Fest Eckkopplung 90°

Drutex Iglo Energy AluCover - 70001-70122 Fest Eckkopplung 90°

Kunststoff Abdeckleisten - Iglo Energy AluCover

Drutex Deckleisten mit Hohlkammerprofil Auswahl

Hohlkammerprofil Deckleiste Auswahl

Drutex Flachleisten mit Dichtlippe Auswahl

Flachleiste mit Dichtlippe Auswahl

Drutex Flachleisten aus Kunststoff Auswahl

Flachleiste aus Kunststoff Auswahl

Drutex Winkelprofile aus Kunststoff Auswahl

Winkelprofil aus Kunststoff Auswahl

Das könnte Sie auch interessieren:

Kunststofffenster Iglo Energy

Detailzeichnungen Kunststofffenster glo Energy

Kunststofffenster Iglo Energy besitzen eine Bautiefe (Rahmen) von 82mm.

Detailzeichnungen Iglo Energy

Kunststofffenster Iglo 5

Detailzeichnungen Kunststofffenster Iglo 5

Kunststofffenster Iglo 5 besitzen eine Bautiefe (Rahmen) von 70mm.

Detailzeichnungen Iglo 5