Detailzeichnungen Vorbaurollladen Aluprof SK-45

Inhaltsverzeichnis:

Vorbaurollladen SK-45 Kastenformen Querschnitte

Vorbaurollladen SK mit Kastenhöhe 125mm

Vorbaurollladen SK 125mm

Vorbaurollladen SK mit Kastenhöhe 137mm

Vorbaurollladen SK 137mm

Vorbaurollladen SK mit Kastenhöhe 150mm

Vorbaurollladen SK 150mm

Vorbaurollladen SK mit Kastenhöhe 165mm

Vorbaurollladen SK 165mm

Vorbaurollladen SK mit Kastenhöhe 180mm

Vorbaurollladen SK 180mm

Vorbaurollladen SK mit Kastenhöhe 205mm

Vorbaurollladen SK 205mm

Vorbaurollladen SK-45 Kastenformen mit Insektenschutz

Vorbaurollladen SK mit Insektenschutz 150mm

Vorbaurollladen SK mit Insektenschutz 150mm

Vorbaurollladen SK mit Insektenschutz 165mm

Vorbaurollladen SK mit Insektenschutz 165mm

Vorbaurollladen SK mit Insektenschutz 180mm

Vorbaurollladen SK mit Insektenschutz 180mm

Vorbaurollladen SK mit Insektenschutz 205mm

Vorbaurollladen SK mit Insektenschutz 205mm

Vorbaurollladen Aluprof SK-45 Einzelteile

Führungsschienen für Vorbaurollladen SK-45

Vorbaurollladen Führungsschiene PP 45mm

Vorbaurollladen Führungsschiene PP 45mm

Vorbaurollladen Führungsschiene PP 53mm

Vorbaurollladen Führungsschiene PP 53mm

Vorbaurollladen Führungsschiene PK 53mm mit Winkel

Vorbaurollladen Führungsschiene PK 53mm mit Winkel

Vorbaurollladen Führungsschiene PK 53mm mit Winkel 120mm

Vorbaurollladen Führungsschiene PK 53mm mit Winkel 120mm

Vorbaurollladen Führungsschiene 53mm ODS mit Absatz

Vorbaurollladen Führungsschiene 53mm ODS mit Absatz

Vorbaurollladen Führungsschiene PP 53mm mit Absatz 20mm

Vorbaurollladen Führungsschiene PP 53mm ODS mit Absatz 20mm

Vorbaurollladen Führungsschiene mit Insektenschutz 53mm PPDO

Vorbaurollladen Führungsschiene mit Insektenschutzgitter PPDO 53mm

Vorbaurollladen Führungsschiene mit Insektenschutz 53mm mit Absatz PPMO

Vorbaurollladen Führungsschiene mit Insektenschutzgitter PPMO mit Absatz 53mm

Vorbaurollladen Führungsschiene 66mm PP

Vorbaurollladen Führungsschiene PP 66mm

Vorbaurollladen Führungsschiene 68mm PP

Vorbaurollladen Führungsschiene PP 68mm

Vorbaurollladen Führungsschiene 79mm PPD doppelt

Vorbaurollladen Führungsschiene PPD 79mm doppelt

Vorbaurollladen Führungsschiene 79mm PPD ODS doppelt mit Absatz

Vorbaurollladen Führungsschiene PPD 79mm doppelt mit Absatz ODS

Vorbaurollladen Führungsschiene 66mm PPW verstärkt

Vorbaurollladen Führungsschiene PPW 66mm verstärkt

Vorbaurollladen Führungsschiene 80mm PPW verstärkt

Vorbaurollladen Führungsschiene PPW 80mm verstärkt

Vorbaurollladen Führungsschiene Schnappplatte PZO

Vorbaurollladen Führungsschiene Schnappplatte PZO

Rollladenpanzer Lamellen (Profile)

Lamelle PA37 Alu technische Zeichnung

Rollladenprofil PA 37mm (Alu)

Lamelle PA39 Alu technische Zeichnung

Rollladenprofil PA 39mm (Alu)

Lamelle PA40 Alu technische Zeichnung

Rollladenprofil PA 40mm (Alu)

Lamelle PA43 Alu technische Zeichnung

Rollladenprofil PA 43mm (Alu)

Lamelle PA45 Alu technische Zeichnung

Rollladenprofil PA 45mm (Alu)

Lamelle PA52 Alu technische Zeichnung

Rollladenprofil PA 52mm (Alu)

Lamelle PA55 Alu technische Zeichnung

Rollladenprofil PA 55mm (Alu)

Lamelle PT37 PVC technische Zeichnung

Rollladenprofil PT 37mm (PVC)

Lamelle PT52 PVC technische Zeichnung

Rollladenprofil PT 52mm (PVC)

Vorbaurollladen Endleisten (Abschlussleisten)

Rollladen Endleiste 40mm für Aluminium-Panzer Detail

Rollladenpanzer Endleiste LDG 40mm

Vorbaurollladen Endleiste LDG-E

Vorbaurollladen Endleiste LDG-E

Vorbaurollladen Endleiste LDG

Vorbaurollladen Endleiste LDG

Vorbaurollladen Endleiste LDG 52mm

Vorbaurollladen Endleiste LDG 52mm

Vorbaurollladen Endleiste LDG 52mm OPT

Vorbaurollladen Endleiste LDG 52mm OPT

Vorbaurollladen Endleiste LDG 55mm

Vorbaurollladen Endleiste LDG 55mm

Vorbaurollladen Endleiste LDG/S

Vorbaurollladen Endleiste LDG/S

Vorbaurollladen mit Insektenschutz Abschlussleiste LDSM MKT

Vorbaurollladen mit Insektenschutz Abschlussleiste LDSM MKT

Vorbaurollladen Montagearten

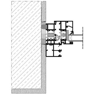
Vorbaurollladen SK-45 - Einbaubeispiel 1:

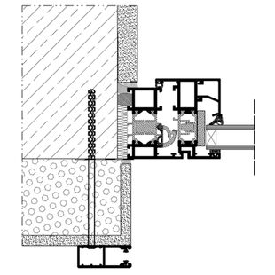
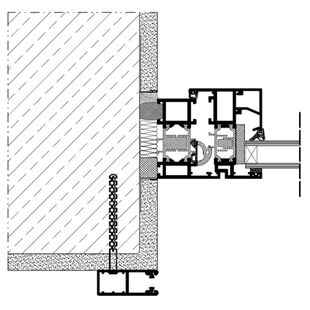
Vorbaurollladen SK-45 Einbaubeispiel 1 auf Mauerwerk

Vorbaurollladen SK Einbaubeispiel 1 auf Mauerwerk

Vorbaurollladen SK Einbaubeispiel 1 Führungsschiene auf Mauerwerk

Vorbaurollladen SK Einbaubeispiel 1 Führungsschiene auf Mauerwerk

Vorbaurollladen SK-45 MKT Einbaubeispiel 1 auf Mauerwerk

Vorbaurollladen SK MKT Einbaubeispiel 1 auf Mauerwerk

Vorbaurollladen SK MKT Einbaubeispiel 1 Führungsschiene auf Mauerwerk

Vorbaurollladen SK MKT Einbaubeispiel 1 Führungsschiene auf Mauerwerk

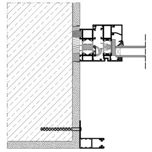
Vorbaurollladen SK-45 - Einbaubeispiel 2:

Vorbaurollladen SK-45 Einbaubeispiel 2 in der Laibung

Vorbaurollladen SK Einbaubeispiel 2 in der Laibung

Vorbaurollladen SK Einbaubeispiel 2 Führungsschiene auf Fensterrahmen

Vorbaurollladen SK Einbaubeispiel 2 Führungsschiene auf Fensterrahmen

Vorbaurollladen SK Einbaubeispiel 2 Führungsschiene zweiseititg auf Fensterrahmen

Vorbaurollladen SK Einbaubeispiel 2 Führungsschiene zweiseitig

Vorbaurollladen SK-45 MKT Einbaubeispiel 2 in der Laibung

Vorbaurollladen SK MKT Einbaubeispiel 2 in der Laibung

Vorbaurollladen SK MKT Einbaubeispiel 2 Führungsschiene auf Fensterrahmen

Vorbaurollladen SK MKT Einbaubeispiel 2 Führungsschiene auf Fensterrahmen

Vorbaurollladen SK-45 - Einbaubeispiel 3:

Vorbaurollladen SK-45 Einbaubeispiel 3 in der Laibung (rechtsroller)

Vorbaurollladen SK Einbaubeispiel 3 in der Laibung (Rechtsroller)

Vorbaurollladen SK Einbaubeispiel 3 Führungsschiene mit Winkel

Vorbaurollladen SK Einbaubeispiel 3 Führungsschiene mit Winkel

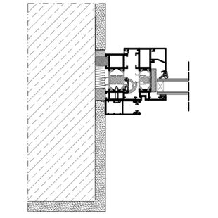
Vorbaurollladen SK-45 - Einbaubeispiel 4:

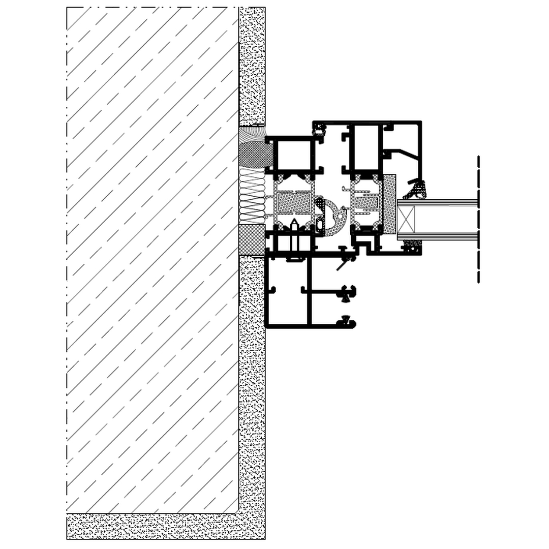
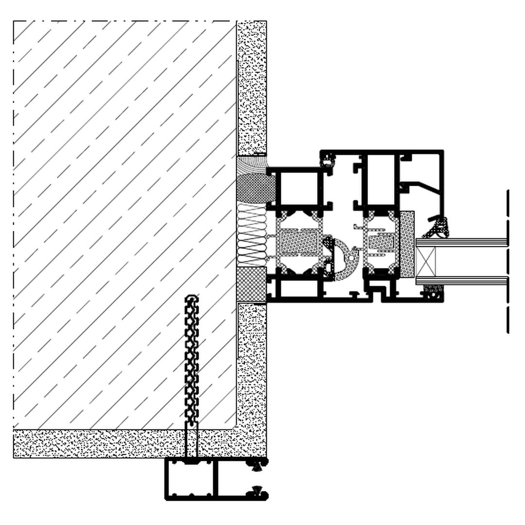
Vorbaurollladen SK-45 Einbaubeispiel 4 auf Mauerwerk mit Dämmung

Vorbaurollladen SK Einbaubeispiel 4 auf Mauerwerk mit Dämmung

Vorbaurollladen SK Einbaubeispiel 1 Führungsschiene auf Mauerwerk

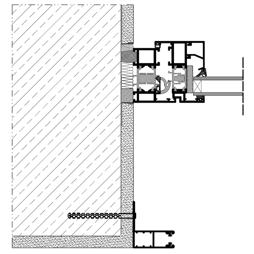
Vorbaurollladen SK Einbaubeispiel 4 Führungsschiene auf Mauerwerk

Vorbaurollladen SK-45 MKT Einbaubeispiel 4 auf Mauerwerk mit Dämmung

Vorbaurollladen SK MKT Einbaubeispiel 4 auf Mauerwerk mit Dämmung

Vorbaurollladen SK MKT Einbaubeispiel 4 Führungsschiene auf Mauerwerk

Vorbaurollladen SK MKT Einbaubeispiel 4 Führungsschiene auf Mauerwerk

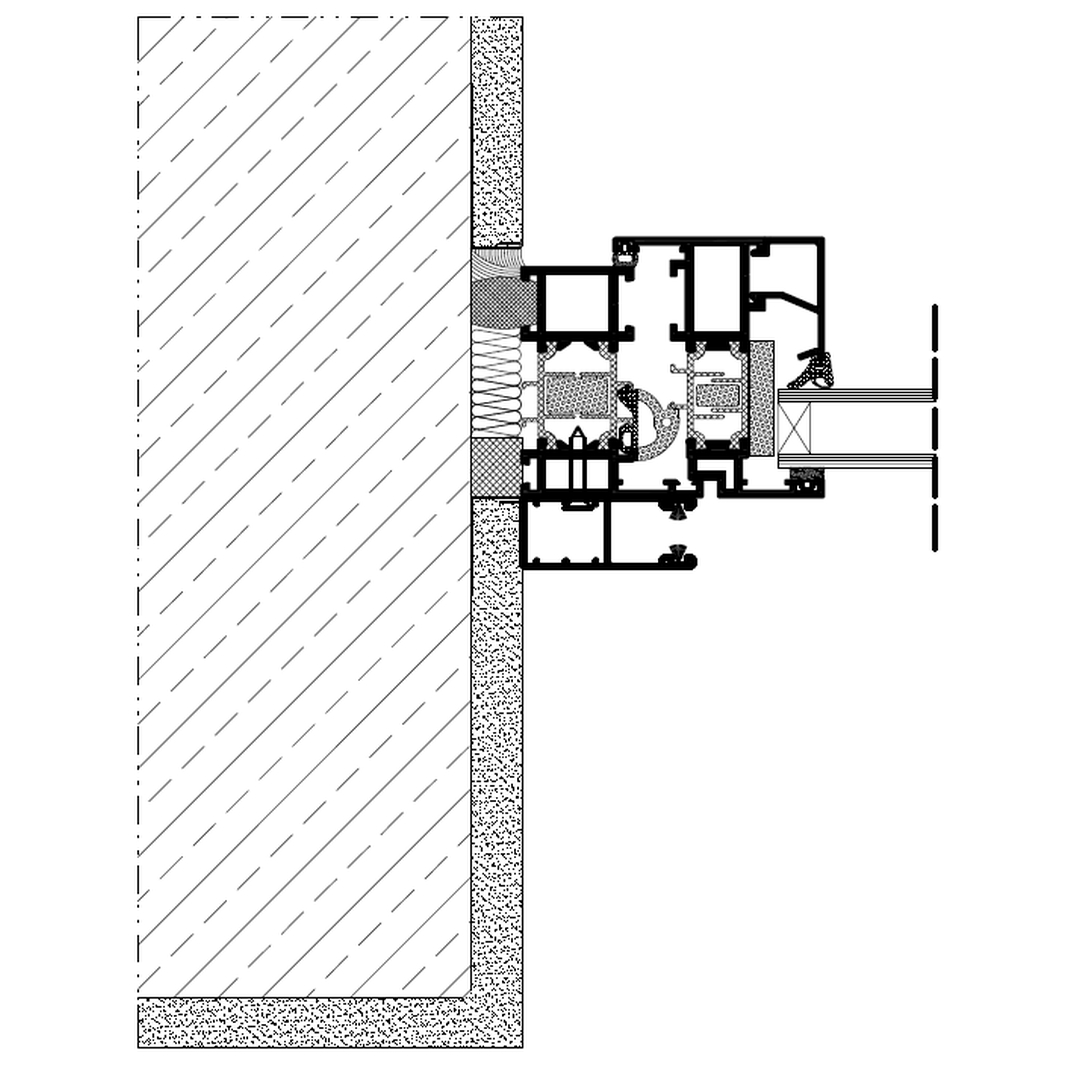
Vorbaurollladen SK-45 - Einbaubeispiel 5:

Vorbaurollladen SK-45 Einbaubeispiel 5a in der Laibung

Vorbaurollladen SK Einbaubeispiel 5a in der Laibung

Vorbaurollladen SK-45 Einbaubeispiel 5b in der Laibung mit RVB

Vorbaurollladen SK Einbaubeispiel 5b in der Laibung mit RVB

Vorbaurollladen SK Einbaubeispiel 5 Führungsschiene auf Fensterrahmen

Vorbaurollladen SK Einbaubeispiel 5 Führungsschiene auf Fensterrahmen

Vorbaurollladen SK-45 MKT Einbaubeispiel 5a in der Laibung

Vorbaurollladen SK MKT Einbaubeispiel 5a in der Laibung

Vorbaurollladen SK-45 MKT Einbaubeispiel 5b in der Laibung mit RVB

Vorbaurollladen SK MKT Einbaubeispiel 5b in der Laibung mit RVB

Vorbaurollladen SK MKT Einbaubeispiel 5 Führungsschiene auf Fensterrahmen

Vorbaurollladen SK MKT Einbaubeispiel 5 Führungsschiene auf Fensterrahmen

Technische Daten - Vorbaurollladen Aluprof SK
Weiter zur Produktseite Vorbaurollladen Aluprof SK-45

Drutex Fensterlieferung

Kostenlose Lieferung

Ab einer Bestellung von 10 Fenstern deutschlandweit!

Jetzt Angebot für Vorbaurollladen anfordern

Das könnte Sie auch interessieren:

Vorbaurollladen SP-E

Detailzeichnungen Vorbaurollladen Aluprof SP-E

Vorbaurollladen Aluprof SP-E sind als Unterputz-System ideal für Passivhäuser geeignet.

Detailzeichnungen Aluprof SP-E

Vorbaurollladen SKP

Detailzeichnungen Vorbaurollladen Aluprof SKP

Halbrunder Vorbaurollladen Aluprof SKP für eine für ästethische Optik mit starken Eigenschaften.

Detailzeichnungen Aluprof SKP