Detailzeichnungen Rollladen Exte Expert XT

Inhaltsverzeichnis:

Aufsatzrollladen Exte Expert XT

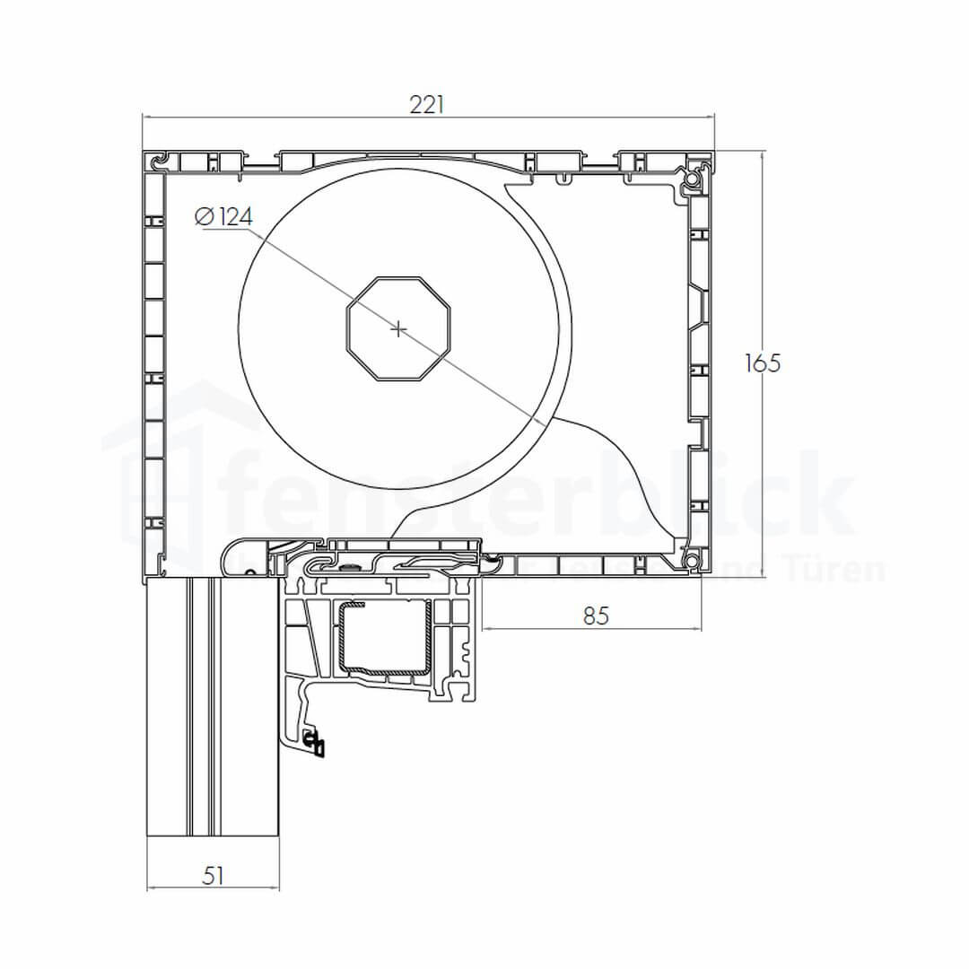
Aufsatzrollladen Expert XT mit Kastenhöhe 165mm

Aufsatzrollladen Exte Expert XT 165mm

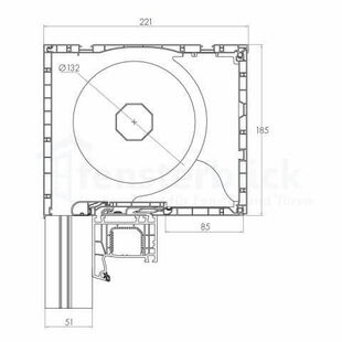
Aufsatzrollladen Expert XT mit Kastenhöhe 185mm

Aufsatzrollladen Exte Expert XT 185mm

Aufsatzrollladen Expert XT mit Kastenhöhe 220mm

Aufsatzrollladen Exte Expert XT 220mm

Aufsatzrollladen Exte Expert XT Einzelteile

Führungsschienen für Aufsatzrollladen Exte Expert XT

Aufsatzrollladen Führungsschiene Exte EX 5090 60mm

Aufsatzrollladen Führungsschiene Exte EX 5090 60mm

Aufsatzrollladen Führungsschiene Exte EX 5095 60mm beidseitig

Aufsatzrollladen Führungsschiene Exte EX 5095 60mm beidseitig

Aufsatzrollladen Führungsschiene Exte EX 5085 35mm (Schmal)

Aufsatzrollladen Führungsschiene Exte EX 5085 35mm (Schmal)

Aluminium Führungsschienen für Aufsatzrollladen Exte Expert XT

Aufsatzrollladen Aluminium Führungsschiene Exte EX 5432 60mm

Aufsatzrollladen Führungsschiene Exte EX 5432 Alu 60mm

Aufsatzrollladen Aluminium Führungsschiene Exte EX 5431 60mm beidseitig

Aufsatzrollladen Führungsschiene Exte EX 5431 Alu 60mm beidseitig

Rollladenpanzer Lamellen (Profile)

Lamelle PA39 Alu technische Zeichnung

Rollladenprofil PA 39mm (Alu)

Lamelle PA43 Alu technische Zeichnung

Rollladenprofil PA 43mm (Alu)

Lamelle PA52 Alu technische Zeichnung

Rollladenprofil PA 52mm (Alu)

Lamelle PT37 PVC technische Zeichnung

Rollladenprofil PT 37mm (PVC)

Lamelle PT52 PVC technische Zeichnung

Rollladenprofil PT 52mm (PVC)

Aufsatzrollladen Endleisten (Abschlussleisten)

Rollladen Endleiste 40mm für Aluminium-Panzer Detail

Rollladenpanzer Endleiste LDG 40mm

Aufsatzrollladen Endleiste LDG

Aufsatzrollladen Endleiste LDG

Gratis levering

Bij een bestelling van 10 ramen of meer in Nederland!

Nu een offerte aanvragen voor kozijnen met rolluiken

Das könnte Sie auch interessieren:

Aufsatzrollladen Exte Elite XT

Detailzeichnungen Aufsatzrollladen Exte Elite XT 240mm

Aufsatzrollladen Exte Elite XT: Ein System. Unzählige Möglichkeiten.

Detailzeichnungen Exte Elite XT

Aufsatzrollladen Exte Exakt

Detailzeichnungen Aufsatzrollladen Exte Exakt 155mm

Aufsatzrollladen Exte Exakt: System mit geringen Kastenhöhen.

Detailzeichnungen Exte Exakt