Detailzeichnungen Alu Hebeschiebetür MB-77hi HST

Hebeschiebetürprofil Aluprof MB-77hi Querschnitte

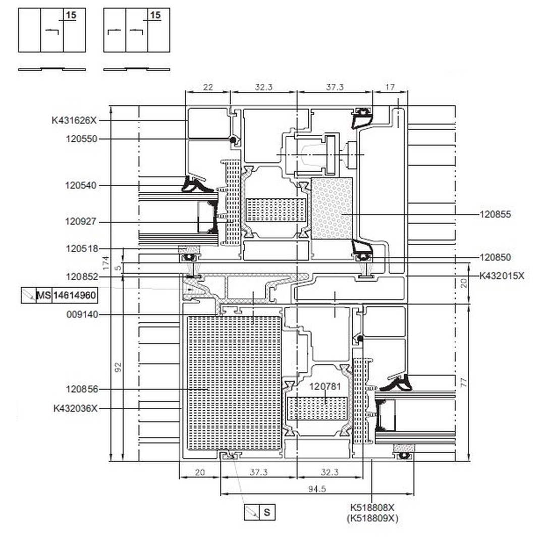
Hebeschiebetür Rahmenprofil Aluprof MB-77hi

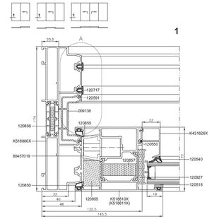
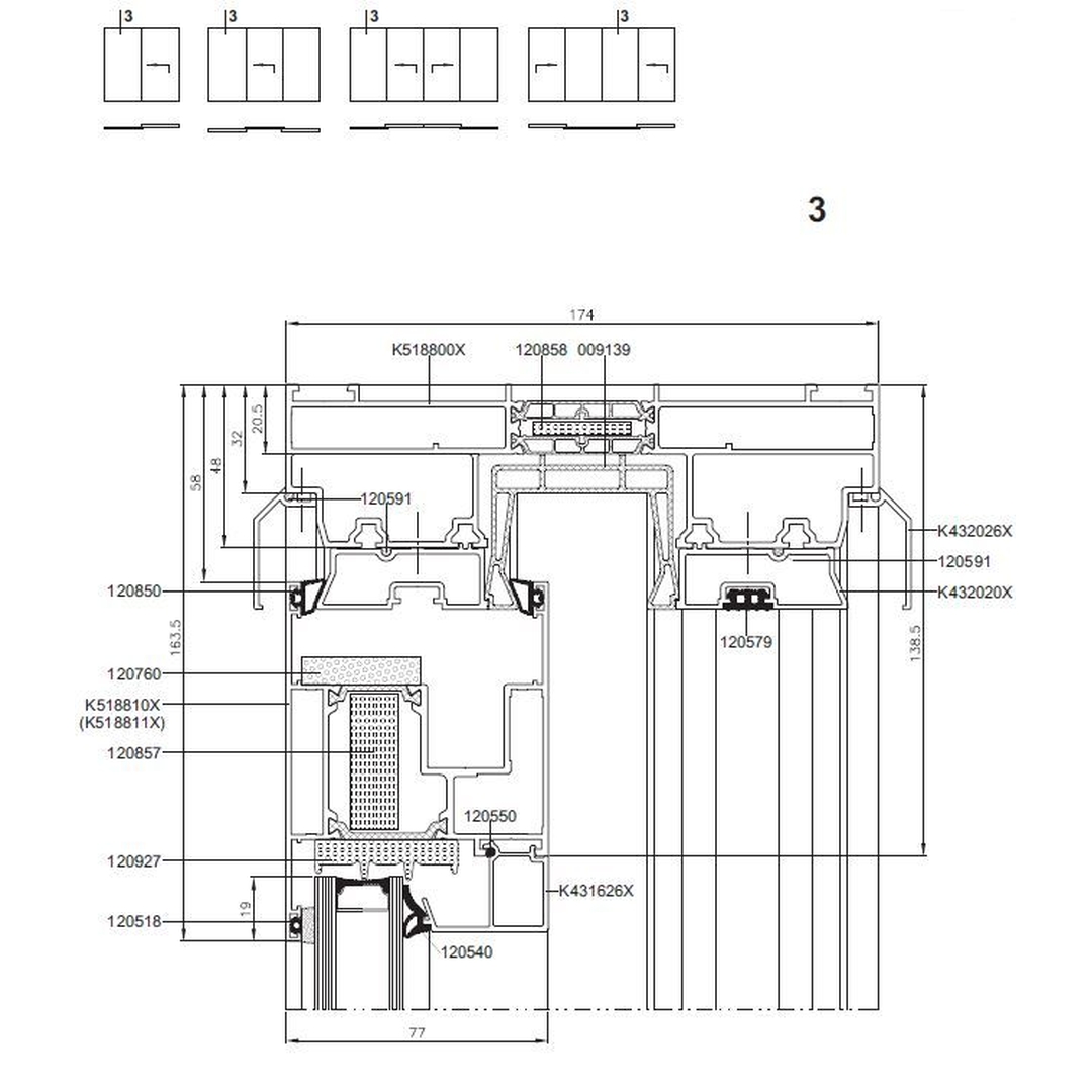
Aluplast MB-77hi HS Tür Rahmen mit Schiebeflügel Detailzeichnung

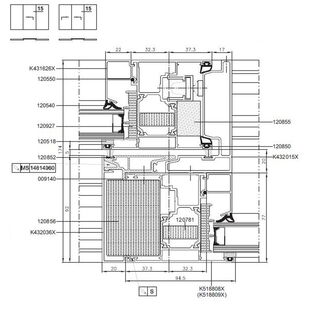
MB-77hi HS Tür Rahmen mit Schiebeflügel

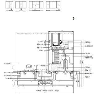
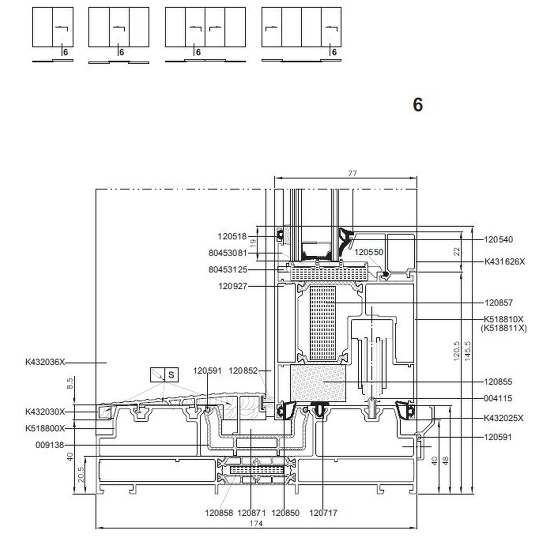
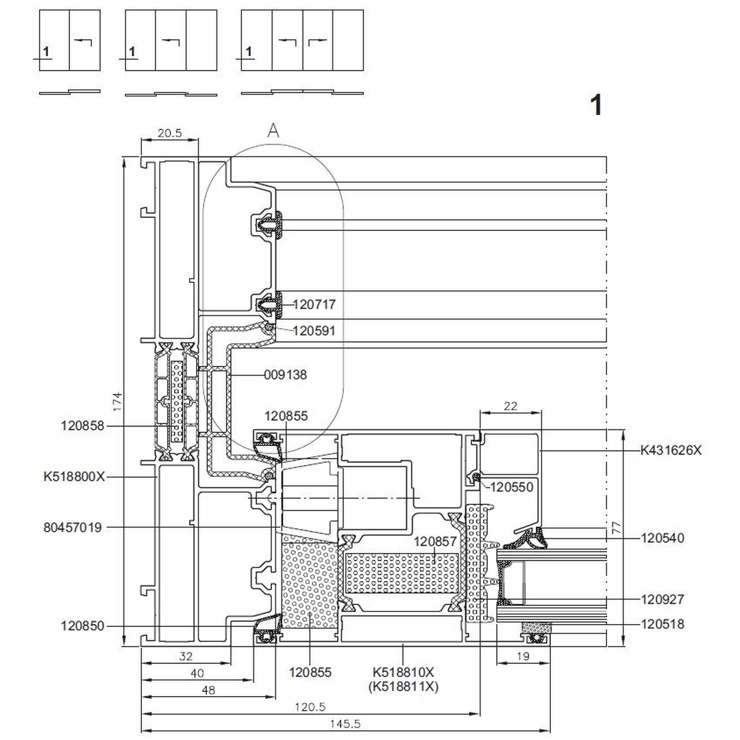
Aluprof MB-77hi Tür Rahmen mit Schiebeflügel oben

MB-77hi Tür Rahmen mit Schiebeflügel oben

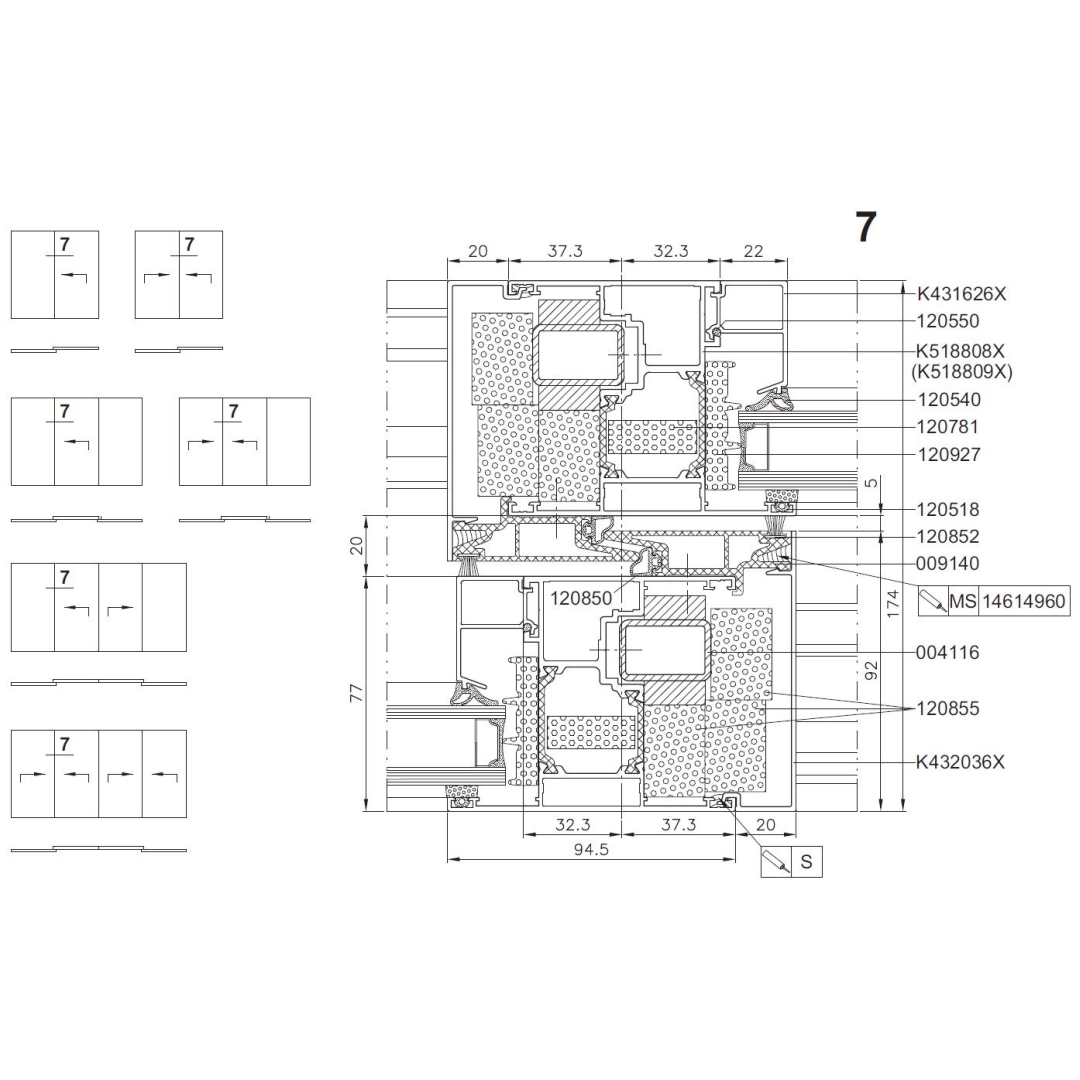
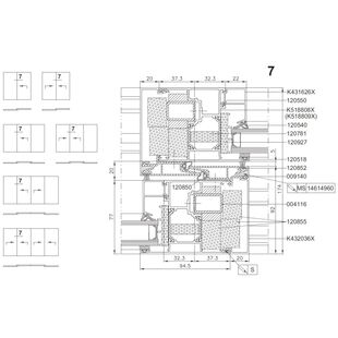
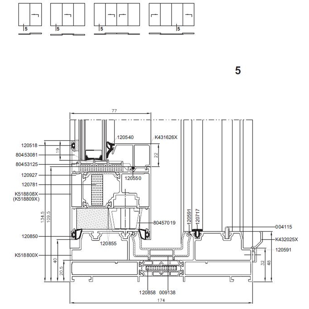
Aluprof MB-77hi HS Tür Rahmen mit Fest Flügel Detailzeichnung

MB-77hi Tür Rahmen mit festem Flügel

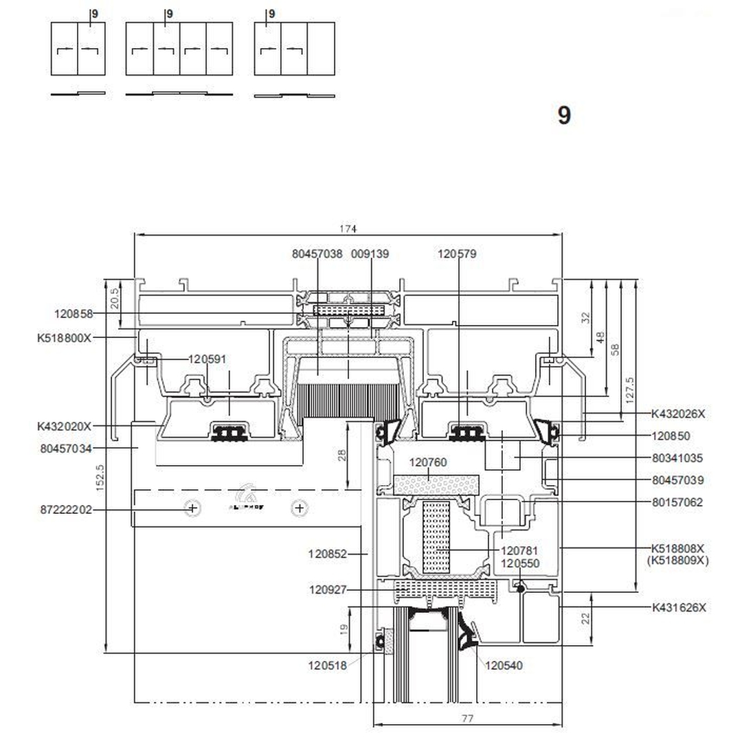
Aluprof MB-77hi HS Tür Rahmen mit Fest Flügel oben Detail

MB-77hi Tür Rahmen mit festem Flügel oben

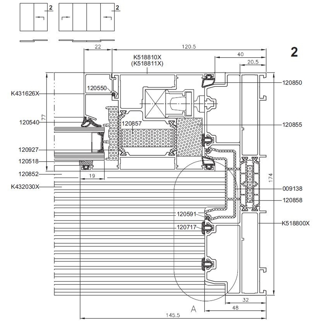
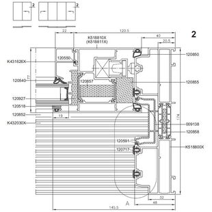
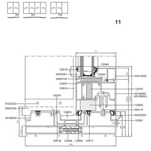
Hebeschiebetür Schwelle Aluprof MB-77hi HS

Aluprof MB-77hi HS Tür Schwelle mit Fest Flügel Detailzeichnung

MB-77hi Tür Schwelle mit festem Flügel

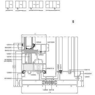
Aluprof MB-77hi HS Tür Schwelle mit Schiebeflügel dicher Lauf Detail

MB-77hi Tür Schwelle und Schiebeflügel

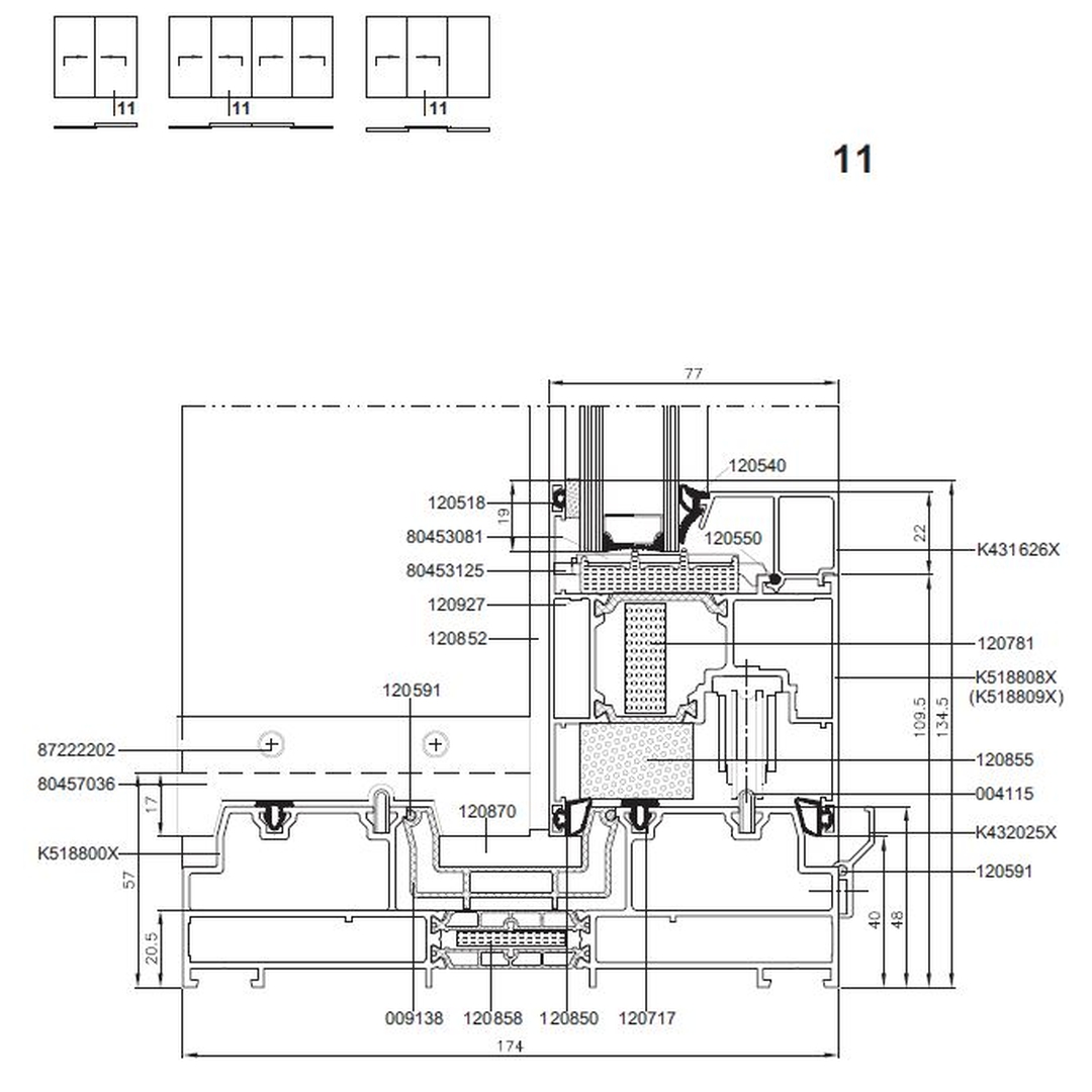
Aluprof MB-77hi HS Tür Schwelle mit zwei Schiebeflügeln

MB-77hi HS Tür Schwelle und zwei Schiebeflügel

Hebeschiebetür Flügelprofil Aluprof MB-77hi

Aluprof MB-77hi HS Tür Schiebeflügel

MB-77hi Tür Schiebeflügel

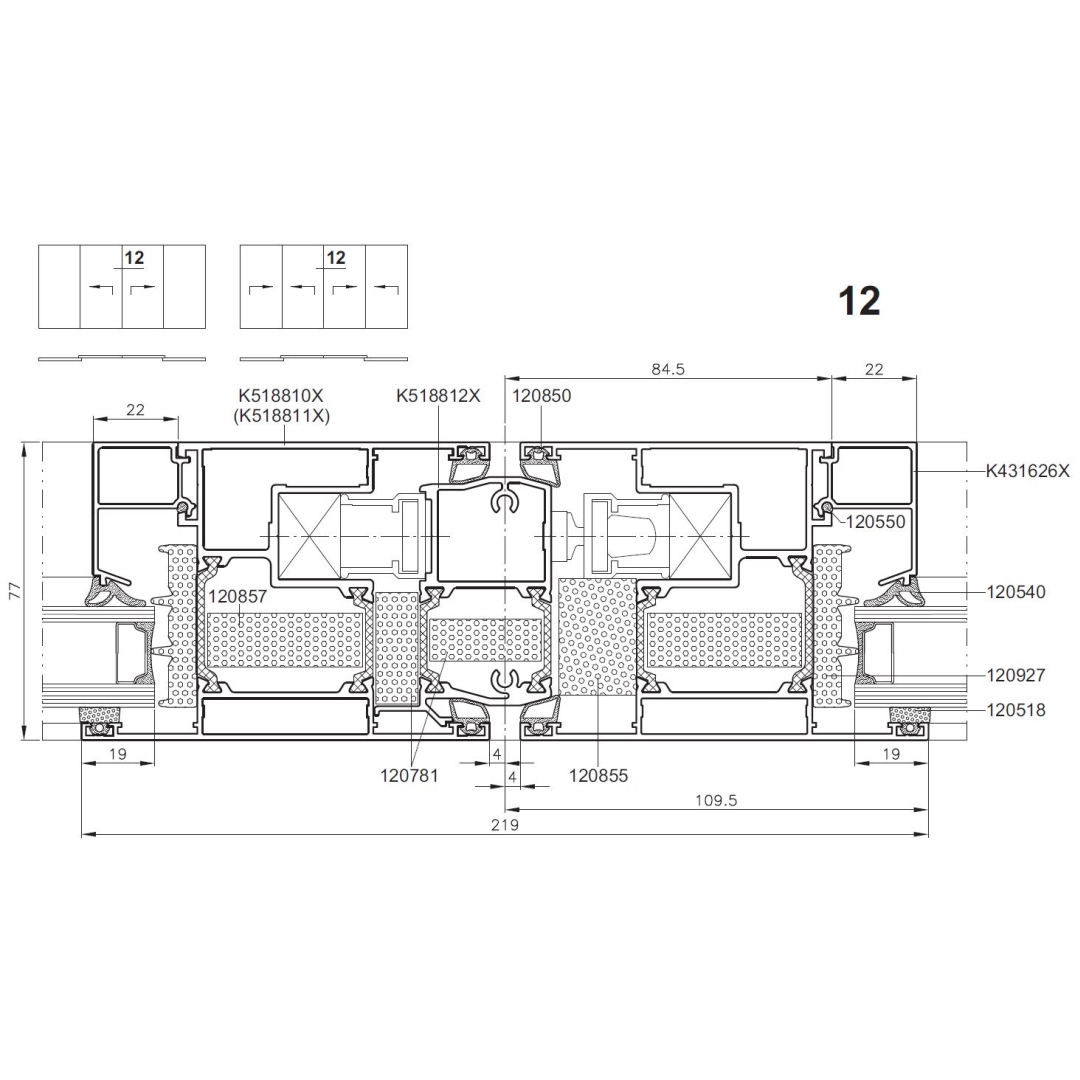
Aluprof MB-77hi HS Tür 2flg Treffpunkt der Schiebeflügel Detail

MB-77hi Tür 2flg Schiebeflügel Treffpunkt

Aluprof MB-77hi HS Tür 1flg Schiebeflügel und Fest Flügel Detail

MB-77hi Tür 1flg Schiebeflügel und fester Flügel

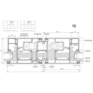
Aluminium Hebeschiebetür Aluprof MB-77hi Kopplungen

Aluprof MB-77hi HS Tür Kopplung mit Fenster Detailansicht

MB-77hi HS Tür Kopplung mit Fenster

Aluplast MB-77hi HS Tür Eckverbinder 90° mit Fenster Detail

MB-77hi HS Tür Eckkopplung 90° mit Fenster

Aluminium Hebeschiebetür MB-77hi Sprossenarten

Innenliegende SZR Sprossen / Helima Sprossen

Drutex Iglo SZR Sprosse 8mm

Innenliegende Sprosse 8mm

Drutex Iglo SZR Sprosse 18mm

Innenliegende Sprosse 18mm

Drutex Iglo SZR Sprosse 26mm

Innenliegende Sprosse 26mm

Drutex Iglo SZR Sprosse 45mm

Innenliegende Sprosse 45mm

Glasteilende Sprossen - Kämpfer

Aluprof MB-77hi Kämpfersprosse 75,5 mm Detailzeichnung

MB-77hi Glasteilende Sprosse/Kämpfer 75,5 mm

Aluprof MB-77hi Kämpfersprosse 83,5 mm Detailzeichnung

MB-77hi Glasteilende Sprosse/Kämpfer 83,5 mm

Aluprof MB-77hi Kämpfersprosse 94,5 mm Detailzeichnung

MB-77hi Glasteilende Sprosse/Kämpfer 94,5 mm

Aluprof MB-77hi Kämpfersprosse 105,5 mm Detailzeichnung

MB-77hi Glasteilende Sprosse/Kämpfer 105,5 mm

Weiter zur Produktseite Aluminium Hebeschiebetür MB-77hi HST

Gratis levering

Bij een bestelling van 10 ramen of meer in Nederland!

Nu hefschuifpuien online configureren

Das könnte Sie auch interessieren:

Aluminiumfenster MB-70

Detailzeichnungen Aluminiumfenster MB-70

Aluminiumfenster MB-70 besitzt den gleichen Aufbau nur ohne die Isolierschichten

Aluminiumfenster MB-86 SI

Detailzeichnungen Aluminiumfenster MB-86 SI

Aluminiumfenster MB-86 SI verfügen über eine sehr gute Wärmedämmung