Einfach und bequem online Aluplast IDEAL 8000 Nebeneingangstür nach Maß konfigurieren und bestellen bei fensterblick.de
Haustür Aluplast IDEAL 8000
Wärmeschutz mit dem Plus an Sicherheit
- 5-6-Kammersystem mit 85mm Bautiefe
- 3 Dichtungsebenen aus EPDM
- Glas- und Paneelstärken bis 51mm
- Nach innen oder nach außen öffnend
- Ausgezeichnete Stabilität und lange Lebensdauer
- Große Auswahl an Verglasungen und Zusätzen
ab 755,82 €
inkl. 19% MwSt. zzgl. Versand
Produktbeschreibung
aluplast-Haustürsysteme IDEAL 8000 bieten hervorragenden Wärmeschutz mit dem Plus an Sicherheit
Die Haustür Aluplast Ideal 8000 ist ein Profilsystem mit einer Bautiefe von 85 mm, das sowohl energetisch als auch ästhetisch überzeugt. Es bietet eine Vielzahl an Gestaltungsmöglichkeiten und Füllungen. Die Aluplast Haustür IDEAL 8000 besitzt im Rahmen ein 5-6-Kammer-System mit einer Bautiefe von 85 mm und 3 Dichtungsebenen (MD), das für einen hervorragenden Wärmeschutz sorgt und das Raumklima verbessert. Darüber hinaus sorgt die dritte Dichtung im Rahmen mit saftec inside für verbesserte Wärmedämmwerte und erschwert ein schnelles Aufhebeln des Flügels. Mit der Aluplast Haustür der IDEAL 8000-Reihe können moderne Haustüren optisch überzeugen, Schutz gegen Einbruch bieten sowie ein hohes Maß an Wärmedämmung gewährleisten.
Vorteile der Kunststoff-Haustür Aluplast IDEAL 8000:
Profil:
Hochwertiges 5-6-Kammerprofil mit 85 mm Einbautiefe für eine hervorragende Wärmedämmung und Stabilität. Große Verstärkungskammer mit Stahlarmierung.
Verglasung:
Die Verglasung mit Paketen bis maximal 51mm Breite. Optionaler Einsatz von speziellen Funktionsgläsern wie Wärme-, Schall-, Sicht- oder Einbruchschutzverglasungen.
Dichtungen:
Die Kunststoffprofile verfügen über 3 Anschlagsdichtungen (MD) aus EPDM, die einen optimalen Schutz bieten.
Schwelle:
Schwellen in diversen Ausführungen, wie die niedrige Schwelle, um Bewegungsfreiheit auf höchstem Niveau zu erreichen.
Große Auswahl an Farben für Aluplast Profile
Nebeneingangstür Aluplast IDEAL 8000 nach Maß
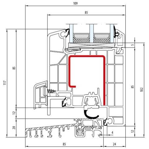
Technische Querschnitte und Detailzeichnungen
Sie nehmen es auch ganz genau? Dann planen Sie jetzt Ihr Bauvorhaben bis ins kleinste Detail mit den praktischen Profilschnitten und weiteren technischen Zeichnungen vom Profil aluplast IDEAL 8000. Hier werden Ihnen nicht nur vielfältige Möglichkeiten gezeigt, sondern Sie können auch die Mechanismen der Profilfunktionalität begutachten sowie Unterschiede zwischen verschiedenen Profilen beurteilen. Zudem werden die möglichen Zusatzprofile wie Bankanschlüsse, Rahmenverbreiterungen oder Kopplungen für das System aluplast easy-slide aufgelistet. Danit fügt sich das Fenstersystem ideal in jede Umgebung ein. Dank der vielfältigen Detailzeichnungen können Sie eine exakte Planung vornehmen und so ein optimales Montageergebnis erzielen.
Haustür Aluplast IDEAL 8000 nach Maß
Einfach und bequem online Aluplast IDEAL 8000 Haustür nach Maß konfigurieren und bestellen bei fensterblick.de
Weitere Kunststoff-Türen von Aluplast:
Aluplast Haustür | Aluplast Nebeneingangstür | Aluplast Haustür IDEAL 4000 | Aluplast Haustür IDEAL 5000 | Aluplast Haustür IDEAL 7000
Zusammenfassung: Produktinformationen
Kunststoff Haustür aluplast Ideal 8000
Die Haustür Ideal 8000 ist eine hochwertige Eingangstür, die speziell für den Einsatz in Wohngebäuden entwickelt wurde. Sie zeichnet sich durch eine robuste und langlebige Konstruktion aus. Die Aluplast Haustür IDEAL 8000 besitzt im Rahmen ein 5-6-Kammer-System mit einer Bautiefe von 85 mm und 3 Dichtungsebenen (MD).
- Marke: Aluplast
- Profil: Ideal 8000
- Material: Kunststoff
- Breite: ab 600 mm
- Höhe: ab 1700 mm
- Farbe: Weiß (weitere Farben möglich)
- Verfügbarkeit: Lieferbar
- Zustand: Neu
- Preis: Auf Anfrage
- Online-Shop: fensterblick.de

