Einfach und bequem online Aluplast IDEAL 5000 Nebeneingangstür nach Maß konfigurieren und bestellen bei fensterblick.de
Haustür Aluplast IDEAL 5000
Starke Wärmedämmung und Sicherheit
- 5-Kammersystem mit 70mm Bautiefe
- System mit 2 Anschlagsdichtungen und Mitteldichtung
- Glas- und Paneelstärken bis 41mm
- Nach innen oder nach außen öffnend
- Ausgezeichnete Stabilität und lange Lebensdauer
- Große Auswahl an Verglasungen und Zusätzen
ab 680,24 €
inkl. 19% MwSt. zzgl. Versand
Produktbeschreibung
aluplast-Haustürsysteme IDEAL 5000 bieten hochwertige Qualität mit dem Plus an Einbruchschutz
Die Haustür Ideal 5000 bieten hochwertige Qualität, hervorragende Wärmedämmung sowie ein Plus an Einbruchschutz durch safetec inside. Die Aluplast Haustür IDEAL 5000 besitzt im Rahmen ein 5-Kammer-System mit einer Bautiefe von 70 mm und 3 Dichtungsebenen (MD), das vor Witterungseinflüssen schützt und die Wärmedämmung verbessert. Zusammen mit der thermisch getrennten Bodenschwelle und dem Einsatz eines speziellen Stahls können eine herausragende Wärmedämmung und sehr gute statische Werte erreicht werden. Insgesamt ist die Haustür aluplast ID5000 eine hochwertige und sichere Wahl für jedes Wohngebäude. Sie bietet Schallschutz, Energieeinsparung und einen hohen Einbruchschutz, wodurch sie sowohl für den privaten als auch für den gewerblichen Einsatz geeignet ist.
Vorteile der Kunststoff-Haustür Aluplast IDEAL 5000:
Profil:
Hochwertiges 4-5-Kammerprofil mit 70 mm Einbautiefe für eine hervorragende Wärmedämmung und Stabilität. Große Verstärkungskammer mit Stahlarmierung.
Verglasung:
Die Verglasung mit Paketen bis maximal 41mm Breite. Optionaler Einsatz von speziellen Funktionsgläsern wie Wärme-, Schall-, Sicht- oder Einbruchschutzverglasungen.
Dichtungen:
Die Kunststoffprofile verfügen über 2 Anschlagsdichtungen (AD) aus EPDM, die einen optimalen Schutz bieten.
Schwelle:
Schwellen in diversen Ausführungen, wie die niedrige Schwelle, um Bewegungsfreiheit auf höchstem Niveau zu erreichen.
Große Auswahl an Farben für Aluplast Profile
Nebeneingangstür Aluplast IDEAL 5000 nach Maß
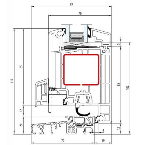
Technische Querschnitte und Detailzeichnungen
Sie nehmen es auch ganz genau? Dann planen Sie jetzt Ihr Bauvorhaben bis ins kleinste Detail mit den praktischen Profilschnitten und weiteren technischen Zeichnungen vom Profil aluplast IDEAL 5000. Hier werden Ihnen nicht nur vielfältige Möglichkeiten gezeigt, sondern Sie können auch die Mechanismen der Profilfunktionalität begutachten sowie Unterschiede zwischen verschiedenen Profilen beurteilen. Zudem werden die möglichen Zusatzprofile wie Bankanschlüsse, Rahmenverbreiterungen oder Kopplungen für das System aluplast easy-slide aufgelistet. Danit fügt sich das Fenstersystem ideal in jede Umgebung ein. Dank der vielfältigen Detailzeichnungen können Sie eine exakte Planung vornehmen und so ein optimales Montageergebnis erzielen.
Haustür Aluplast IDEAL 5000 nach Maß
Einfach und bequem online Aluplast IDEAL 5000 Haustür nach Maß konfigurieren und bestellen bei fensterblick.de
Weitere Kunststoff-Türen von Aluplast:
Aluplast Haustür | Aluplast Nebeneingangstür | Aluplast Haustür IDEAL 4000 | Aluplast Haustür IDEAL 7000 | Aluplast Haustür IDEAL 8000
Zusammenfassung: Produktinformationen
Kunststoff Haustür aluplast Ideal 5000
Die Haustür Ideal 5000 ist eine hochwertige Eingangstür, die speziell einen hervorragenden Wärmeschutz mit dem Plus an Sicherheit bietet. Die Aluplast Haustür IDEAL 4000 besitzt im Rahmen ein 5-Kammer-System mit einer Bautiefe von 70 mm und 3 Dichtungsebenen (MD).
- Marke: Aluplast
- Profil: Ideal 5000
- Material: Kunststoff
- Breite: ab 600 mm
- Höhe: ab 1700 mm
- Farbe: Weiß (weitere Farben möglich)
- Verfügbarkeit: Lieferbar
- Zustand: Neu
- Preis: Auf Anfrage
- Online-Shop: fensterblick.de

