Einfach und bequem online Aluplast IDEAL 4000 Nebeneingangstür nach Maß konfigurieren und bestellen bei fensterblick.de
Haustür Aluplast IDEAL 4000
Markenqualität zu günstigen Preisen
- 4-5-Kammersystem mit 70mm Bautiefe
- 2 Dichtungsebenen aus EPDM
- Glas- und Paneelstärken bis 41mm
- Nach innen oder nach außen öffnend
- Ausgezeichnete Stabilität und lange Lebensdauer
- Große Auswahl an Verglasungen und Zusätzen
ab 566,86 €
inkl. 19% MwSt. zzgl. Versand
Produktbeschreibung
aluplast-Haustürsysteme IDEAL 4000 bieten hochwertige Qualität sowie eine lange Lebensdauer
Die Haustür Ideal 4000 ist eine hochwertige Eingangstür, die speziell für den Einsatz in Wohngebäuden entwickelt wurde. Sie zeichnet sich durch eine robuste und langlebige Konstruktion aus. Die Aluplast Haustür IDEAL 4000 besitzt im Rahmen ein 5-Kammer-System mit einer Bautiefe von 70 mm und 2 Dichtungsebenen (AD), das vor Witterungseinflüssen schützt und das Raumklima verbessert. Es bietet eine große Designvielfalt und ist in vielen Farben und Dekoren erhältlich, die sich durch hervorragende Farbstabilität und hohe Beständigkeit gegen Umwelteinflüsse auszeichnen. Mit der Aluplast Haustür der IDEAL 4000-Reihe können moderne Haustüren optisch überzeugen, Schutz gegen Einbruch bieten sowie ein hohes Maß an Wärmedämmung gewährleisten.
Vorteile der Kunststoff-Haustür Aluplast IDEAL 4000:
Profil:
Hochwertiges 4-5-Kammerprofil mit 70 mm Einbautiefe für eine hervorragende Wärmedämmung und Stabilität. Große Verstärkungskammer mit Stahlarmierung.
Verglasung:
Die Verglasung mit Paketen bis maximal 41mm Breite. Optionaler Einsatz von speziellen Funktionsgläsern wie Wärme-, Schall-, Sicht- oder Einbruchschutzverglasungen.
Dichtungen:
Die Kunststoffprofile verfügen über 2 Anschlagsdichtungen (AD) aus EPDM, die einen optimalen Schutz bieten.
Schwelle:
Schwellen in diversen Ausführungen, wie die niedrige Schwelle, um Bewegungsfreiheit auf höchstem Niveau zu erreichen.
Große Auswahl an Farben für Aluplast Profile
Nebeneingangstür Aluplast IDEAL 4000 nach Maß
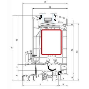
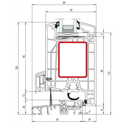
Technische Querschnitte und Detailzeichnungen
Sie nehmen es auch ganz genau? Dann planen Sie jetzt Ihr Bauvorhaben bis ins kleinste Detail mit den praktischen Profilschnitten und weiteren technischen Zeichnungen vom Profil aluplast IDEAL 4000. Hier werden Ihnen nicht nur vielfältige Möglichkeiten gezeigt, sondern Sie können auch die Mechanismen der Profilfunktionalität begutachten sowie Unterschiede zwischen verschiedenen Profilen beurteilen. Zudem werden die möglichen Zusatzprofile wie Bankanschlüsse, Rahmenverbreiterungen oder Kopplungen für das System aluplast easy-slide aufgelistet. Danit fügt sich das Fenstersystem ideal in jede Umgebung ein. Dank der vielfältigen Detailzeichnungen können Sie eine exakte Planung vornehmen und so ein optimales Montageergebnis erzielen.
Haustür Aluplast IDEAL 4000 nach Maß
Einfach und bequem online Aluplast IDEAL 4000 Haustür nach Maß konfigurieren und bestellen bei fensterblick.de
Weitere Kunststoff-Türen von Aluplast:
Aluplast Haustür | Aluplast Nebeneingangstür | Aluplast Haustür IDEAL 5000 | Aluplast Haustür IDEAL 7000 | Aluplast Haustür IDEAL 8000
Zusammenfassung: Produktinformationen
Kunststoff Haustür aluplast Ideal 4000
Die Haustür Ideal 4000 ist eine hochwertige Eingangstür, die speziell für den Einsatz in Wohngebäuden entwickelt wurde. Sie zeichnet sich durch eine robuste und langlebige Konstruktion aus. Die Aluplast Haustür IDEAL 4000 besitzt im Rahmen ein 5-Kammer-System mit einer Bautiefe von 70 mm und 2 Dichtungsebenen (AD).
- Marke: Aluplast
- Profil: Ideal 4000
- Material: Kunststoff
- Breite: ab 600 mm
- Höhe: ab 1700 mm
- Farbe: Weiß (weitere Farben möglich)
- Verfügbarkeit: Lieferbar
- Zustand: Neu
- Preis: Auf Anfrage
- Online-Shop: fensterblick.de

