Einfach und bequem online Aluplast IDEAL 7000 Nebeneingangstür nach Maß konfigurieren und bestellen bei fensterblick.de
Haustür Aluplast IDEAL 7000
Markenqualität zu günstigen Preisen
- 5-6-Kammersystem mit 85mm Bautiefe
- 2 Dichtungsebenen aus EPDM
- Glas- und Paneelstärken bis 51mm
- Nach innen oder nach außen öffnend
- Ausgezeichnete Stabilität und lange Lebensdauer
- Große Auswahl an Verglasungen und Zusätzen
ab 670,79 €
inkl. 19% MwSt. zzgl. Versand
Produktbeschreibung
aluplast-Haustürsysteme IDEAL 7000 bieten hochwertige Qualität, Funktionalität und Design
Die Haustür Ideal 7000 ist ein Profilsystem von aluplast mit einer Bautiefe von 85mm. Es bietet eine starke Isolierung und Wärmedämmung, was die Heizkosten senkt und ein angenehmes Wohngefühl schafft. Die Aluplast Haustür IDEAL 7000 besitzt im Rahmen ein 5-6-Kammer-System mit einer Bautiefe von 85 mm und 2 Dichtungsebenen (AD), das vor Witterungseinflüssen schützt und das Raumklima verbessert. Es ermöglicht auch die Verwendung breiterer und wärmerer Glaspakete bis zu 51 mm, was es ideal für moderne Architektur macht. Darüber hinaus bietet IDEAL 7000 auch Lärm-, Witterungs- und Einbruchschutz, was es zu einer vielseitigen Lösung macht.
Vorteile der Kunststoff-Haustür Aluplast IDEAL 7000:
Profil:
Hochwertiges 5-6-Kammerprofil mit 85 mm Einbautiefe für eine hervorragende Wärmedämmung und Stabilität. Große Verstärkungskammer mit Stahlarmierung.
Verglasung:
Die Verglasung mit Paketen bis maximal 51mm Breite. Optionaler Einsatz von speziellen Funktionsgläsern wie Wärme-, Schall-, Sicht- oder Einbruchschutzverglasungen.
Dichtungen:
Die Kunststoffprofile verfügen über 2 Anschlagsdichtungen (AD) aus EPDM, die einen optimalen Schutz bieten.
Schwelle:
Schwellen in diversen Ausführungen, wie die niedrige Schwelle, um Bewegungsfreiheit auf höchstem Niveau zu erreichen.
Große Auswahl an Farben für Aluplast Profile
Nebeneingangstür Aluplast IDEAL 7000 nach Maß
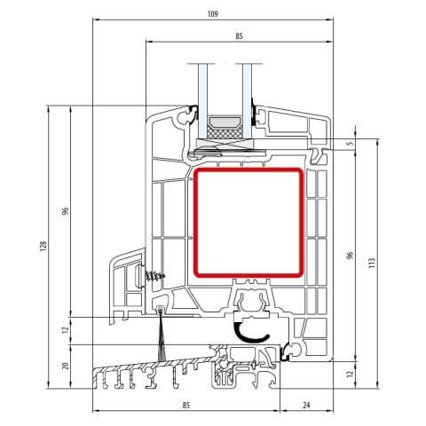
Technische Querschnitte und Detailzeichnungen
Sie nehmen es auch ganz genau? Dann planen Sie jetzt Ihr Bauvorhaben bis ins kleinste Detail mit den praktischen Profilschnitten und weiteren technischen Zeichnungen vom Profil aluplast IDEAL 7000. Hier werden Ihnen nicht nur vielfältige Möglichkeiten gezeigt, sondern Sie können auch die Mechanismen der Profilfunktionalität begutachten sowie Unterschiede zwischen verschiedenen Profilen beurteilen. Zudem werden die möglichen Zusatzprofile wie Bankanschlüsse, Rahmenverbreiterungen oder Kopplungen für das System aluplast easy-slide aufgelistet. Danit fügt sich das Fenstersystem ideal in jede Umgebung ein. Dank der vielfältigen Detailzeichnungen können Sie eine exakte Planung vornehmen und so ein optimales Montageergebnis erzielen.
Haustür Aluplast IDEAL 7000 nach Maß
Einfach und bequem online Aluplast IDEAL 7000 Haustür nach Maß konfigurieren und bestellen bei fensterblick.de
Weitere Kunststoff-Türen von Aluplast:
Aluplast Haustür | Aluplast Nebeneingangstür | Aluplast Haustür IDEAL 4000 | Aluplast Haustür IDEAL 5000 | Aluplast Haustür IDEAL 8000
Zusammenfassung: Produktinformationen
Kunststoff Haustür aluplast Ideal 7000
Die Haustür Ideal 7000 ist eine hochwertige Eingangstür, die speziell für den Einsatz in Wohngebäuden entwickelt wurde. Sie zeichnet sich durch eine robuste und langlebige Konstruktion aus. Die Aluplast Haustür IDEAL 7000 besitzt im Rahmen ein 5-6-Kammer-System mit einer Bautiefe von 85 mm und 2 Dichtungsebenen (AD).
- Marke: Aluplast
- Profil: Ideal 7000
- Material: Kunststoff
- Breite: ab 600 mm
- Höhe: ab 1700 mm
- Farbe: Weiß (weitere Farben möglich)
- Verfügbarkeit: Lieferbar
- Zustand: Neu
- Preis: Auf Anfrage
- Online-Shop: fensterblick.de

