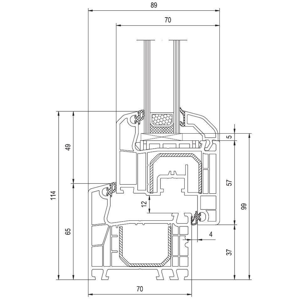
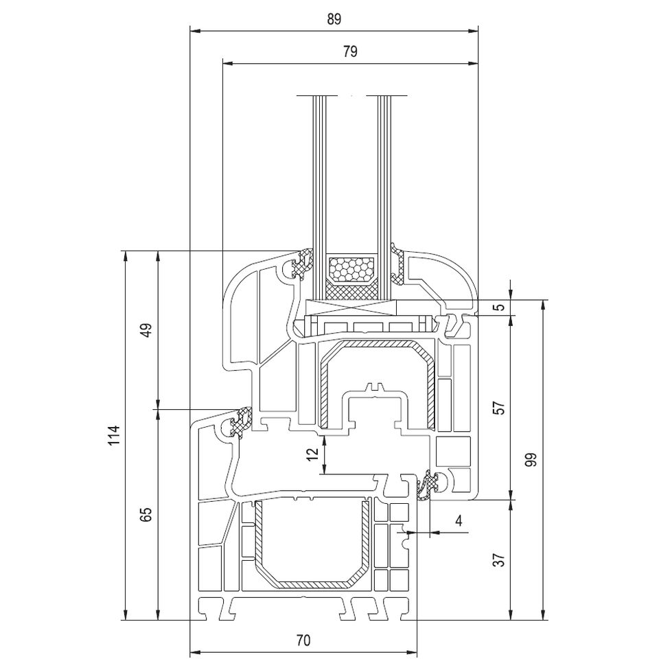
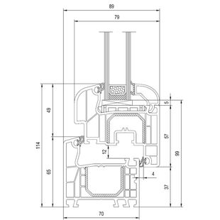
Aluminium kozijnen van Decalu 88 Hidden

Vlak profiel kozijn

Vlakprofiel kozijnen zijn bijzonder populaire constructies voor bouwheren die veel waarde hechten aan design. De vlakliggende uitvoering geeft het raam een strak en minimalistisch uiterlijk. Bij het sluiten ligt de vleugel perfect vlak in het kozijnprofiel. Vooral bij aluminium ramen komt deze vlakprofielconstructie zeer vaak voor. Onze aluminium profielen Decalu 88, MB 70 & MB 86 behoren tot de meest geliefde modellen en zijn ideaal voor iedere designliefhebber.

Wat is een vlakprofiel kozijn?

Bij een vlakprofiel raam sluit de raamvleugel volledig vlak aan op het kozijn. Er is dus geen hoogteverschil tussen de vleugel en het kozijnprofiel. Ter vergelijking zijn er ook vlakverspringende en half vlakverspringende raamprofielen verkrijgbaar. Vlakprofiel ramen worden echter steeds populairder. Deze constructie geeft uw raamgevel een strak en minimalistisch uiterlijk. Bij Kozijnenblik kunt u vlakprofiel kozijnen verkrijgen in verschillende materialen, zoals kunststof, aluminium, hout-aluminium of staal.

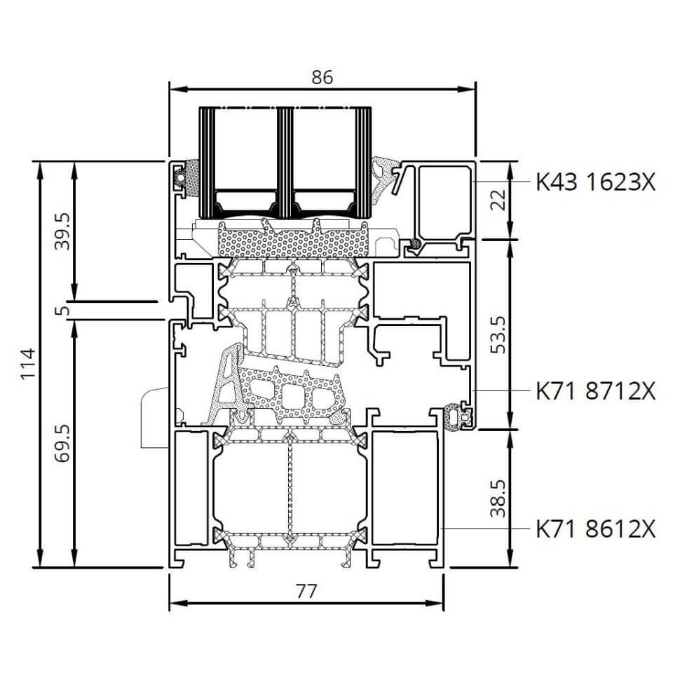
Vlakprofiel aluminium kozijnen voor buiten:

Vlakprofiel kozijn op maat

Eenvoudig en comfortabel een vlakprofiel kozijn tegen scherpe prijzen online configureren en bestellen bij kozijnenblik.nl.

Verschil tussen vlakprofiel, half vlakverspringend en vlakverspringend

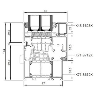
Aluplast IDEAL 4000 raamvleugel in Round Line

IDEAL 4000 Round Line – half vlakverspringend

Aluplast IDEAL 4000 raamvleugel in detail – Softline

IDEAL 4000 Soft Line – vlakverspringend

Vlakprofiel kozijnen – minimalistisch design in opkomst

Vlakprofiel kozijnen zijn nog niet volledig op de markt ingeburgerd. Vaak worden huiseigenaren pas via hun architect of aannemer gewezen op vlakprofiel raamprofielen. Een vlakprofiel kozijn oogt strak, minimalistisch en puristisch in de gevel en geniet daardoor een steeds grotere populariteit bij gebruikers.

Veelgestelde vragen over vlakprofiel kozijnen

Wat zijn vlakprofiel kozijnen?
Bij een vlakprofiel raam sluit het vleugelkozijn volledig vlak aan op het kozijn. Wanneer u het raam sluit, is er dus geen verspringing zichtbaar tussen de vleugel en het kozijn. Dit zorgt voor een strak en minimalistisch raamdesign. Vaak zijn de raamprofielen alleen aan de buitenzijde vlak uitgevoerd. Aan de binnenzijde is meestal een kleine verspringing zichtbaar.

Zijn vlakprofiel kozijnen mogelijk met horren?
Insecten- en horren zijn ook mogelijk bij vlakprofiel kozijnen. Bij kozijnenblik.nl kunt u kiezen tussen een insectenhor in een spanframe of een voorzetconstructie. Lees meer over dit onderwerp bij Insectenbescherming.

Vlakprofiel of vlakverspringende kozijnen kopen?
Of een vlakprofiel of vlakverspringend kozijn beter bij uw woning past, hangt volledig af van uw persoonlijke designvoorkeuren. Een vlakprofiel kozijn oogt doorgaans moderner dankzij de minimalistische en puristische uitstraling.

Gratis levering

Bij een bestelling van 10 ramen of meer in Nederland!

Vraag nu een offerte aan voor kunststof kozijnen