Einfach und bequem Fenster Aluplast IDEAL Nordline online konfigurieren und bestellen bei fensterblick.de
Kunststofffenster - Aluplast Nordline
Nach außen öffnendes Fenstersystem im skandinavischen Look
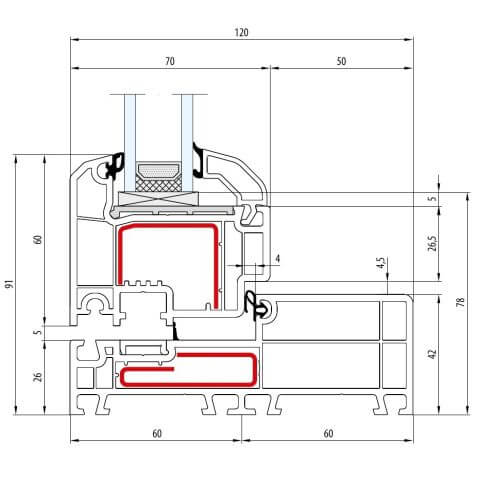
- Mehr-Kammersystem mit 120mm Einbautiefe
- Dichtungssystem mit 2 Dichtungen
- Scheibenpakete bis 42mm
- Nach außen öffnendes Fenster-System
- Öffnungsarten nach außen: Top-Hung und Side-Hung
vanaf 101,98 €
incl. 21% BTW excl. verzendkosten
Produktbeschreibung
Aluplast IDEAL Nordline – Nach außen öffnendes Fenstersystem im skandinavischen Look
Aluplast hat mit seinem IDEAL Nordline die IDEAL-Serie um ein weiteres Fenster erweitert, welches im skandinavischen Look speziell für Märkte in Skandinavien (Norwegen, Schweden, Dänemark) aber auch den nördlichen Teil von Deutschland und das stürmige Wetter an diesen Orten konzipiert wurde. Dieses Fenstersystem hat die charakteristische Eigenschaft, den Fensterflügel je nach Bedarf nach außen öffnen zu können. Die Option das Fenster nach außen hin zu öffnen, verschafft dem System den höchsten Dichtheitsgrad. Dadurch, dass bei geschlossenem Fenster der Wind gegen das Fenster drückt, wird das Fenster umso mehr an seinen Rahmen gedrückt.
Das Profil des Aluplast IDEAL Nordline hat 5 Kammern im Rahmen und 4 Kammern im Fensterflügel. Zusätzlich besitzt das System 2 Dichtungen. In Verbindung mit der Bautiefe (Rahmenbautiefe 120mm, Einbautiefe im Flügel 70mm) zeichnet sich das IDEAL Nordline durch gute wärmedämmende Parameter aus. Die maximale Verglasungsstärke liegt bei 42mm und lässt demnach eine 3-fach Verglasung zu, kommt serienmäßig allerdings mit einer 2-fach Verglasung. Darüber hinaus gibt es viele Zusätze und Accessoires wie eine verdeckte Entwässerung, Fenstergriffe mit Schlüssel oder Insektenschutzgitter zu günstigen Preisen. Werfen Sie umgehend ein Blick auf unseren Konfigurator und stellen Sie sich Ihre neuen Aluplast IDEAL Nordline Fenster preistransparent nach Wunsch zusammen. Wenn Sie Fragen haben, zögern Sie bitte nicht Kontakt zu unserem Team aufzunehmen, wir helfen gerne!
Vorteile vom Kunststofffenster Aluplast IDEAL Nordline:
Profil:
Nach außen öffnendes Fenster-System. Hochwertiges 5-Kammersystem mit 120mm Rahmenbautiefe und 70mm Einbautiefe im Flügel, damit eine gute Wärmedämmung und Sicherheit gewährleistet werden kann.
Verglasung:
Die Verglasung kann aus einer Vielzahl von Spezialgläsern mit einer Glasstärke von bis zu 41mm ausgewählt werden. Große Auswahl von Wärmeschutz-, Schallschutz-, Sichtschutz- und Einbruchschutzverglasungen.
Öffnungsarten:
Nach außen öffnende Fenstersysteme: Klapp (Top-Hung) oder Dreh nach außen öffnend (Side-Hung).
Dichtungen:
Die Kunststoffprofile verfügen über ein Dichtungssystem mit 2-Dichtungen. Die Anschlagsdichtung ist aus EPDM.
Kunststofffenster Aluplast IDEAL Nordline - Profilansichten
Große Auswahl an Farben für Aluplast Fensterprofile
Fenster Aluplast IDEAL Nordline nach Maß
Technische Querschnitte und Detailzeichnungen
Sie nehmen es auch ganz genau? Dann planen Sie jetzt Ihr Bauvorhaben bis ins kleinste Detail mit den praktischen Profilschnitten und weiteren technischen Zeichnungen vom Profil IDEAL Nordline. Hier werden Ihnen nicht nur vielfältige Möglichkeiten gezeigt, sondern Sie können auch die Mechanismen der Profilfunktionalität begutachten sowie Unterschiede zwischen verschiedenen Profilen beurteilen. Zudem werden die möglichen Zusatzprofile wie Bankanschlüsse, Rahmenverbreiterungen oder Kopplungen für das System IDEAL Nordline aufgelistet. Danit fügt sich das Fenstersystem ideal in jede Umgebung ein. Dank der vielfältigen Detailzeichnungen können Sie eine exakte Planung vornehmen und so ein optimales Montageergebnis erzielen.
Fenster Aluplast IDEAL Nordline nach Maß
Einfach und bequem Fenster Aluplast IDEAL Nordline online konfigurieren und bestellen bei fensterblick.de
Weitere Kunststoff-Produkte von Aluplast:
Aluplast Fenster | Aluplast IDEAL 4000 NL | Aluplast IDEAL 5000 | Aluplast IDEAL 6000 | Aluplast energeto 8000
Zusammenfassung: Produktinformationen



