Einfach und bequem Fenster Aluplast IDEAL 6000 online konfigurieren und bestellen bei fensterblick.de
Kunststofffenster - Aluplast IDEAL 6000
Premium-Profil aus Kunststoff
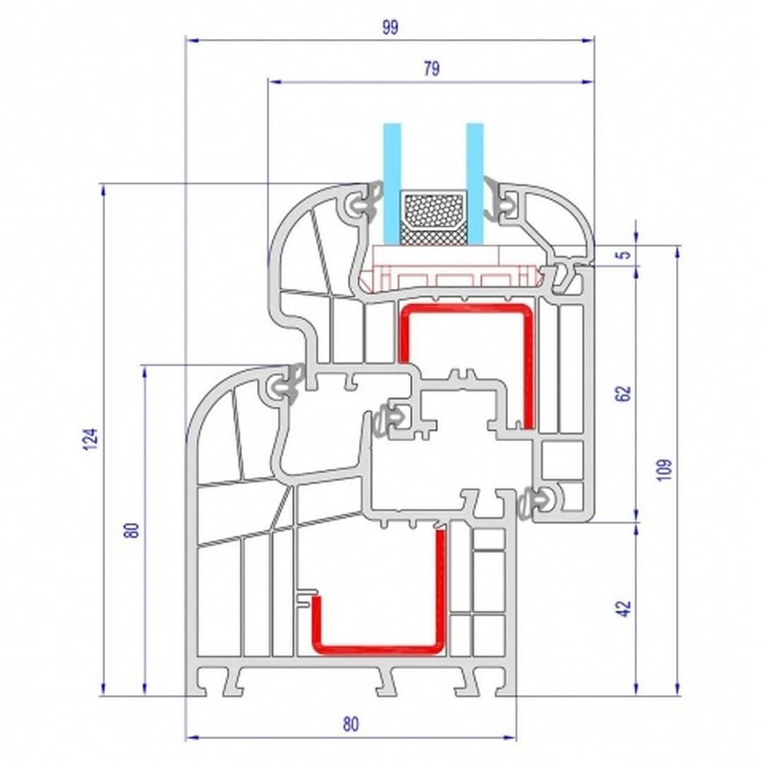
- 6-Kammersystem für hervorragende Isolierwerte
- 3 Dichtungen (MD) für höhere Wärme- und Schallisolierung
- Bautiefe von 80mm
- Passivhaus-tauglich
- Verglasungsstärke bis 44mm
- Austauschbare Dichtungen
Das aluplast IDEAL 6000 bieten wir aktuell nicht an. Im Sortiment finden Sie dafür aluplast Fenster der Serie IDEAL 2000 bis 8000 sowie der Serie energeto.
Produktbeschreibung
Dieses Fenstersystem ist nicht nur ideal, sondern genial – Aluplast IDEAL 6000
Hervorragende Isolierwerte erreicht das Aluplast IDEAL 6000 durch sein 6-Kammersystem mit einer außergewöhnlichen Bautiefe von 80mm und dem Mitteldichtungssystem bestehend aus 3 Dichtungen für höhere Wärme- und Schallisolierung. Abgesehen von der hervorragenden Schall- und Wärmeisolation, beweist sich das Aluplast IDEAL 6000 außerdem bei den Themen Sicherheit und Design. Wählen Sie zwischen verschiedenen Designvarianten (classic line, round line, soft line) und zahlreichen Dekoren aus, damit sich Ihre neuen Fenster mühelos an Innenraum- und Fassadendesign anpassen. Verschiedene Anschlussprofile für verschiedene Anschlusssituationen sind bereits integriert.
Serienmäßig kommt das IDEAL 6000 mit einer geschützt liegenden Beschlagskammer, welche bereits einen verbesserten Einbruchssicherheit gewährleistet. Für mehr Schutz und Sicherheit wählen Sie in unserem Konfigurator einfach eine höhere Sicherheitsstufe aus, welche dann z.B. zusätzliche Pilzkopfverriegelungen aufweist. Durch die große mit Stahl verstärkte Aussteifungskammer sind die Beschläge fest verankert und das Fenstersystem garantiert gute Statikwerte. Bei fensterblick.de erhalten Sie stets ausgezeichnete Qualität starker Marken, praxisnahe Beratung von unserem Expertenteam und einen preistransparenten Kostenvoranschlag in unserem Konfigurator.
Vorteile vom Kunststofffenster Aluplast IDEAL 6000:
Profil:
Edles 6-Kammersystem mit 80mm Einbautiefe für eine überragende Wärmeisolation und Sicherheit. Große Verstärkungskammer mit Stahlarmierung für gute Statikwerte.
Verglasung:
2-fach und 3-fach Verglasung möglich. Es kann aus einer Vielzahl an Spezialgläsern mit einer Glasstärke bis zu 44mm ausgewählt werden. Zu den Spezialgläsern gehören Wärme-, Schall-, Sicht-, und Einbruchschutzverglasungen.
Dichtungen:
Die Kunststoffprofile verfügen über 3 Dichtungsebenen mit einer Mitteldichtung (MD) aus EPDM für höhere Wärme- und Schallisolierung. Ebenfalls sind die Dichtungen für maximale Langlebigkeit austauschbar.
Beschlag:
Sicherheitsbeschläge mit Pilzkopfverriegelung. Die im Kunststoffprofil verbaute Stahlarmierung sorgt zudem für die feste Verschraubung der Beschlagstechnik.
Große Auswahl an Farben für Aluplast Fensterprofile
Fenster Aluplast IDEAL 6000 nach Maß
Weitere Kunststoff-Produkte von Aluplast:
Aluplast Fenster | Aluplast IDEAL Neo | Aluplast IDEAL 5000 | Aluplast IDEAL 7000 | Aluplast IDEAL 8000 | Aluplast energeto 8000
