Detailzeichnungen Aufsatzrollladen PTL

Inhaltsverzeichnis:

Aufsatzrollladen PTL Explosionszeichnung

Aufsatzrollladen PTL Explosionszeichnung

Explosionszeichnung PTL

  1. Blendklappe
  2. Adapterprofil universal
  3. Anschlussprofil
  4. Oberprofil des Kastens
  5. Seitenprofil des Kastens
  6. Revisionsklappe des Kastens
  7. Doppelführungsschiene
  8. Gurtführung
  9. Mittel-Einlauftrichter des Profils
  10. Putzleiste
  11. Aluminiumeinsatz für Adapter
  1. Styroporeinsatz für Kasten
  2. Stahl-Seitenhalterungen
  3. Stahlmontageanker
  4. Kugellager
  5. Walzenkapsel
  6. Adapterring
  7. Achtkant-Stahlwelle
  8. Gurtscheibe für Kasten
  9. Kastenarmierung Stahl klein
  10. Kastenarmierung Stahl groß

Aufsatzrollladen PTL Kastenformen mit Revisionsklappen

Aufsatzrollladen PTL 160mm mit Revision

Aufsatzrollladen PTL 160mm mit Revision

Aufsatzrollladen PTL 200mm mit Revision

Aufsatzrollladen PTL 200mm mit Revision

Aufsatzrollladen PTL Konsole und Montageanker

Aufsatzrollladen PTL Stahlkonsole KNS-160 KNS-200

Aufsatzrollladen Stahlkonsole KNS-160 / KNS-200

Aufsatzrollladen PTL Stahlkonsole KNS-WSP-160 mit Armierung

Aufsatzrollladen Stahlkonsole KNS-WSP-160 mit Armierung

Aufsatzrollladen PTL Stahlkonsole KNSK-WSP-200 mit Verbinder

Aufsatzrollladen Stahlkonsole KNSK-WSP-200 mit Verbinder

Aufsatzrollladen PTL Stahlkonsole SKM Montageanker

Aufsatzrollladen Stahlkonsole SKM Montageanker

Aufsatzrollladen PTL Einzelteile

Adapterprofile für Aufsatzrollladen PTL

Aufsatzrollladen Adapterprofil RN 1-70 B universal

Aufsatzrollladen Adapterprofil RN 1-70 B universal

Aufsatzrollladen Adapterprofil RN 1-70 universal

Aufsatzrollladen Adapterprofil RN 1-70 universal

Aufsatzrollladen Adapterprofil RN 1 universal

Aufsatzrollladen Adapterprofil RN 1 universal

Aufsatzrollladen Adapterprofil RN 5

Aufsatzrollladen Adapterprofil RN 5

Aufsatzrollladen Adapterprofil RN 10

Aufsatzrollladen Adapterprofil RN 10

Aufsatzrollladen Adapterprofil RN 14

Aufsatzrollladen Adapterprofil RN 14

Führungsschienen für Aufsatzrollladen PTL

Aufsatzrollladen Führungsschiene RK 16mm einzeln

Aufsatzrollladen Führungsschiene RK 16mm einzeln

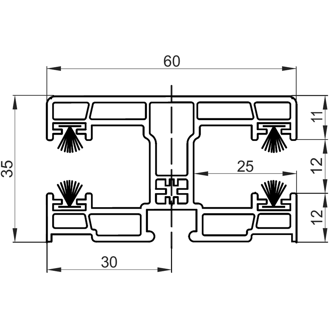
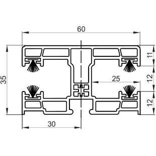
Aufsatzrollladen Führungsschiene RK 18 mm doppelt

Aufsatzrollladen Führungsschiene RK 18mm doppelt

Aufsatzrollladen Führungsschiene DP PVC 20mm Distanzstück

Aufsatzrollladen Führungsschiene DP PVC 20mm Distanzstück

Aufsatzrollladen Führungsschiene RK 18 mm Maxi einzeln

Aufsatzrollladen Führungsschiene RK 18mm Maxi einzeln

Aufsatzrollladen Führungsschiene RK 18 mm Maxi doppelt

Aufsatzrollladen Führungsschiene RK 18mm Maxi doppelt

Rollladenpanzer Lamellen (Profile)

Lamelle PA39 Alu technische Zeichnung

Rollladenprofil PA 39mm (Alu)

Lamelle PA45 Alu technische Zeichnung

Rollladenprofil PA 45mm (Alu)

Lamelle PA52 Alu technische Zeichnung

Rollladenprofil PA 52mm (Alu)

Aufsatzrollladen Endleisten (Abschlussleisten)

Rollladen Endleiste 35mm Mini für Aluminium-Panzer Detail

Rollladenpanzer Endleiste LD 35mm Mini

Rollladen Endleiste 37mm für Aluminium-Panzer Detail

Rollladenpanzer Endleiste LD 37mm

Aufsatzrollladen PTL Antriebsbohrungen

Aufsatzrollladen PTL Antriebsbohrungen Gurtausgang

Aufsatzrollladen Gurtausgang Kasten 160mm Typ A

Aufsatzrollladen Gurtausgang Kasten 160mm Typ A

Aufsatzrollladen Gurtausgang Kasten 160mm Typ B

Aufsatzrollladen Gurtausgang Kasten 160mm Typ B

Aufsatzrollladen Gurtausgang Kasten 200mm Typ A

Aufsatzrollladen Gurtausgang Kasten 200mm Typ A

Aufsatzrollladen Gurtausgang Kasten 200mm Typ B

Aufsatzrollladen Gurtausgang Kasten 200mm Typ B

Aufsatzrollladen PTL Antriebsbohrungen Kurbelausgang

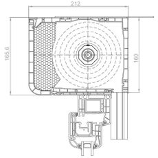
Aufsatzrollladen PTL Kurbelgetriebe Kasten 160mm

Aufsatzrollladen PTL Kurbelgetriebe Kasten 160mm

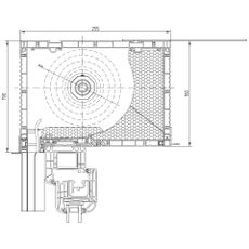
Aufsatzrollladen PTL Kurbelgetriebe Kasten 200mm

Aufsatzrollladen PTL Kurbelgetriebe Kasten 200mm

Aufsatzrollladen PTL Antriebsbohrungen mit Nothandkurbel

Aufsatzrollladen PTL Motor Kasten 160mm mit Nothandkurbel

Aufsatzrollladen PTL Motor Kasten 160mm mit Nothandkurbel

Aufsatzrollladen PTL Motor Kasten 200mm mit Nothandkurbel

Aufsatzrollladen PTL Motor Kasten 200mm mit Nothandkurbel

Aufsatzrollladen PTL Montagearten

Aufsatzrollladen Führungsschienen PTL - Einbaubeispiel:

Aufsatzrollladen Führungsschiene RK 16mm einzeln Montage

Aufsatzrollladen Führungsschiene RK 16mm einzeln Montage

Aufsatzrollladen Führungsschiene RK 18mm doppelt Montage

Aufsatzrollladen Führungsschiene RK 18mm doppelt Montage

Drutex Fensterlieferung

Kostenlose Lieferung

Ab einer Bestellung von 10 Fenstern deutschlandweit!

Jetzt Angebot für Aufsatzrollladen anfordern

Das könnte Sie auch interessieren:

Aufsatzrollladen PMX

Detailzeichnungen Aufsatzrollladen PMX 160mm

Der Aufsatzrollladen PMX wurde für Renovierungs- und Monoblockfenster entwickelt.

Detailzeichnungen Aufsatzrollladen PMX

Aufsatzrollladen PTP

Detailzeichnungen Aufsatzrollladen PTP 180mm

Der Aufsatzrollladen PTP überzeugt mit seiner hochwertigen Verarbeitung und hohen Wärmedämmung.

Detailzeichnungen Aufsatzrollladen PTP