Detailzeichnungen Aufsatzrollladen PMX

Inhaltsverzeichnis:

Aufsatzrollladen PMX Explosionszeichnung

Aufsatzrollladen PTL Explosionszeichnung

Explosionszeichnung PMX

  1. Blendklappe
  2. Anpassungsprofil
  3. Unterprofil des Kastens
  4. Oberprofil des Kastens
  5. Revisionsklappe des Kastens
  6. Außenprofil des Kastens
  7. Führungsschiene
  8. Styroporeinsatz des Kastens
  9. unterer Styroporeinsatz des Kastens
  10. Seitenblende
  11. Stahhalterung des Kastens
  1. Montageanker aus Stahl
  2. Innere Seitenabseckung für Walzenkapsel oben
  3. Innere Seitenabseckung für Walzenkapsel unten
  4. Lager
  5. Walzenkapsel für PVC mit Schaft
  6. Vergößerungsring
  7. Achtkantwelle
  8. Gurtscheibe für den Kasten
  9. Gurteinführung

Aufsatzrollladen PMX Kastenformen Querschnitte

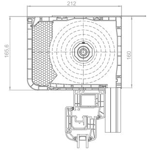
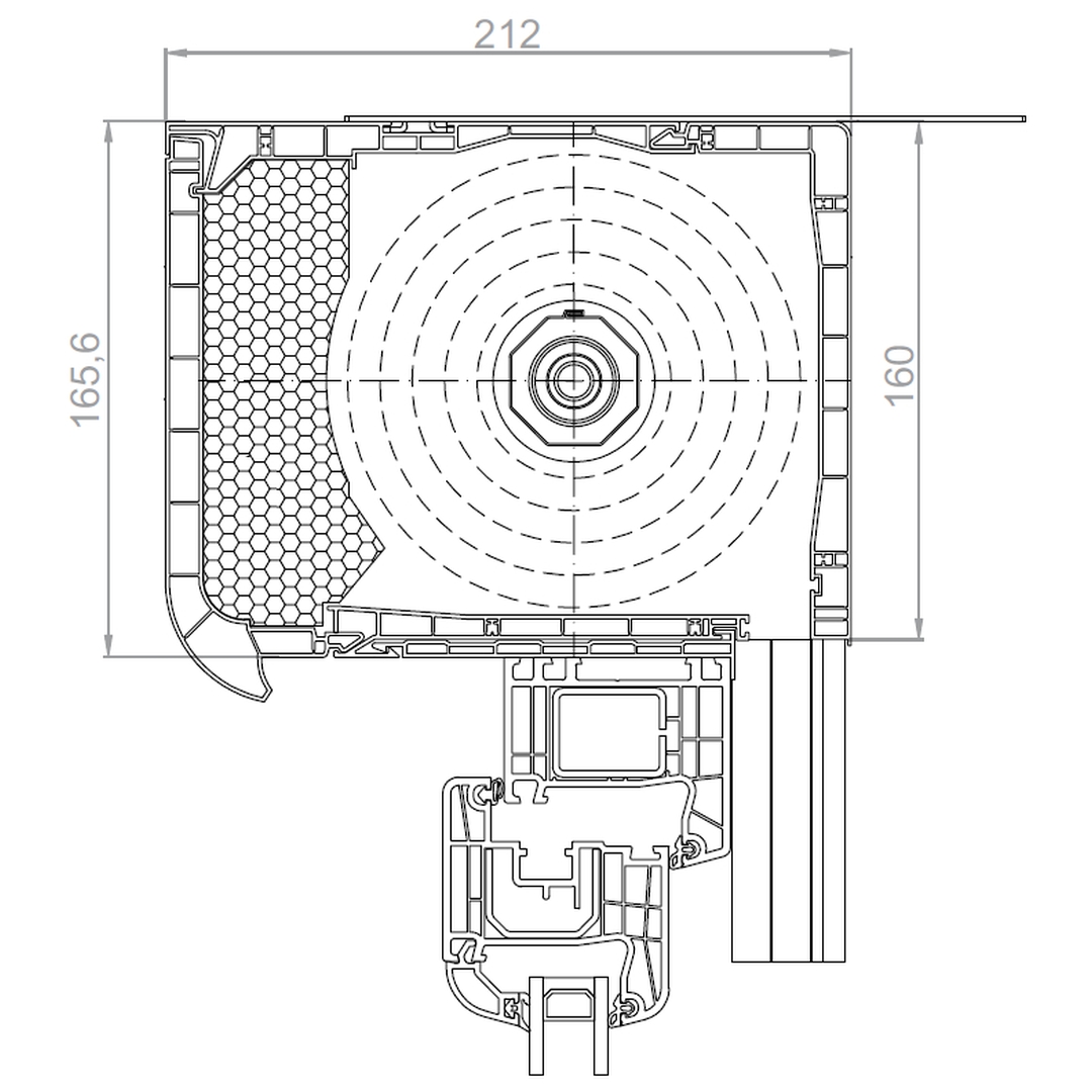
Aufsatzrollladen PMX mit Kastenhöhe 160mm

Aufsatzrollladen PMX 160mm

Aufsatzrollladen PMX mit Kastenhöhe 200mm

Aufsatzrollladen PMX 200mm

Aufsatzrollladen PMX mit Kastenhöhe 160mm mit Griff

Aufsatzrollladen PMX 160mm mit Griff

Aufsatzrollladen PMX mit Kastenhöhe 200mm mit Griff

Aufsatzrollladen PMX 200mm mit Griff

Aufsatzrollladen PMX Kastenformen mit Revisionsklappen

Aufsatzrollladen PMX mit Kastenhöhe 160mm mit Revision

Aufsatzrollladen PMX 160mm mit Revision

Aufsatzrollladen PMX mit Kastenhöhe 200mm mit Revision

Aufsatzrollladen PMX 200mm mit Revision

Aufsatzrollladen PMX mit Kastenhöhe 160mm mit Revision mit Griff

Aufsatzrollladen PMX 160mm mit Revision mit Griff

Aufsatzrollladen PMX mit Kastenhöhe 200mm mit Revision mit Griff

Aufsatzrollladen PMX 200mm mit Revision mit Griff

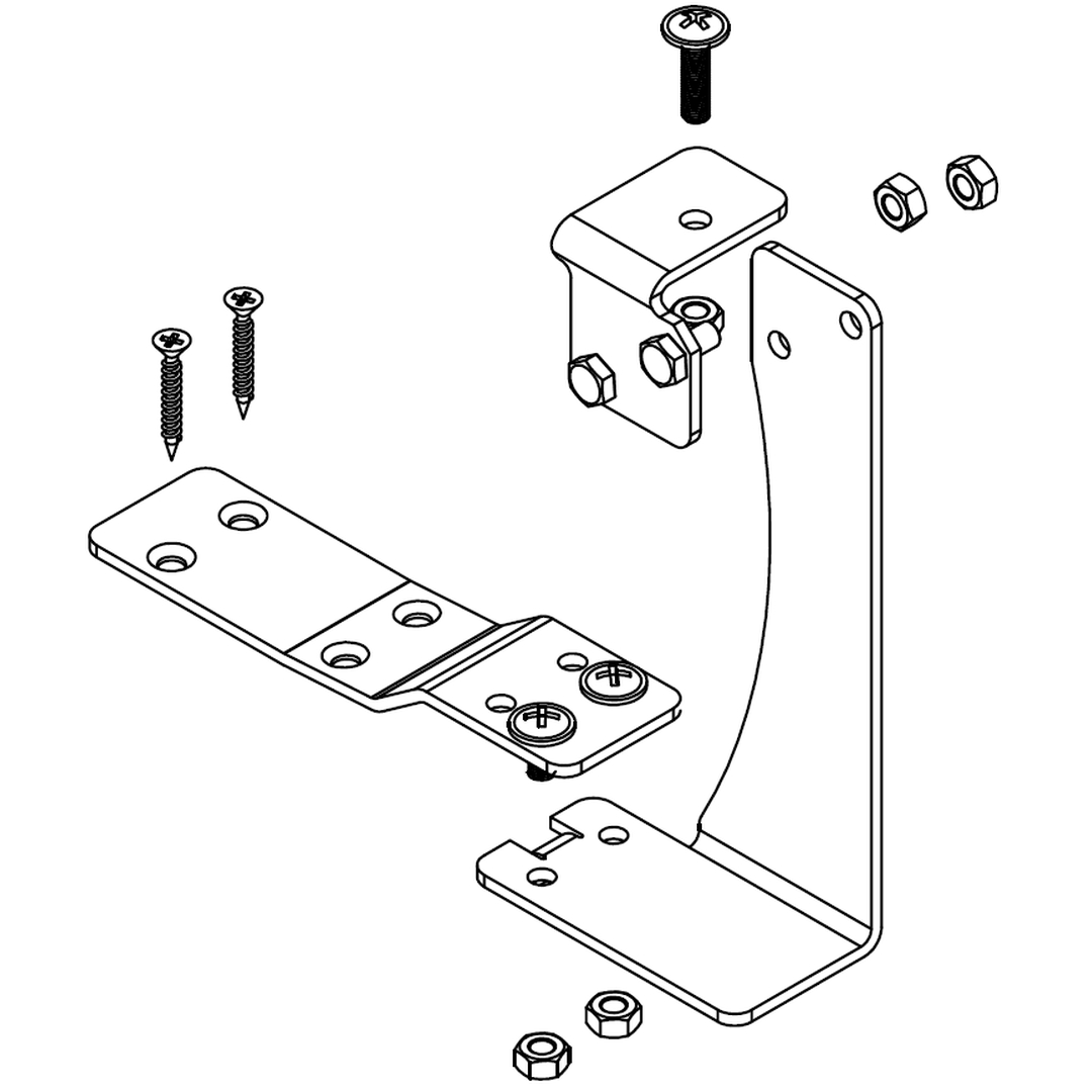
Aufsatzrollladen PMX Konsole und Montageanker

Aufsatzrollladen PMX Konsole NRTK-010

Aufsatzrollladen PMX Konsole NRTK-010

Aufsatzrollladen PMX Konsole NRTK-030

Aufsatzrollladen PMX Konsole NRTK-030

Aufsatzrollladen NPT-050 Montageanker

Aufsatzrollladen NPT-050 Montageanker

Aufsatzrollladen PMX Einzelteile

Adapterprofile für Aufsatzrollladen PMX

Aufsatzrollladen PMX Adapterprofil NRS-010 universal

Aufsatzrollladen PMX Adapterprofil NRS-010 universal

Aufsatzrollladen PMX Adapterprofil NRS-110 universal

Aufsatzrollladen PMX Adapterprofil NRS-110 universal

Führungsschienen für Aufsatzrollladen PMX

Aufsatzrollladen Führungsschiene NRR-010 schmal mit Flansch

Aufsatzrollladen Führungsschiene NRR-010 schmal mit Flansch

Aufsatzrollladen Führungsschiene NRR-020 schmal

Aufsatzrollladen Führungsschiene NRR-020 schmal

Aufsatzrollladen Führungsschiene RK 16 einzeln

Aufsatzrollladen Führungsschiene RK 16 einzeln

Aufsatzrollladen Führungsschiene RK 18 doppelt

Aufsatzrollladen Führungsschiene RK 18 doppelt

Aufsatzrollladen Führungsschiene DP PVC 20 Distanzstück

Aufsatzrollladen Führungsschiene DP PVC 20 Distanzstück

Aufsatzrollladen Führungsschiene NRD-110 mit Keil Monoblock

Aufsatzrollladen Führungsschiene NRD-110 mit Keil Monoblock

Blenden für Führungsschienen

Aufsatzrollladen Führungsschiene NRR-010 mit Blende

Aufsatzrollladen Führungsschiene NRR-010 mit Blende

Aufsatzrollladen Führungsschiene NRR-020 mit Blende

Aufsatzrollladen Führungsschiene NRR-020 mit Blende

Aufsatzrollladen Führungsschiene RK 16 mit Blende

Aufsatzrollladen Führungsschiene RK 16 mit Blende

Aufsatzrollladen Führungsschiene RK 16 mit Blende doppelt

Aufsatzrollladen Führungsschiene RK 16 mit Blende doppelt

Aufsatzrollladen Führungsschiene RK 18 mit Blende

Aufsatzrollladen Führungsschiene RK 18 mit Blende

Rollladenpanzer Lamellen (Profile)

Lamelle PA39 Alu technische Zeichnung

Rollladenprofil PA 39mm (Alu)

Lamelle PA45 Alu technische Zeichnung

Rollladenprofil PA 45mm (Alu)

Lamelle PA52 Alu technische Zeichnung

Rollladenprofil PA 52mm (Alu)

Aufsatzrollladen Endleisten (Abschlussleisten)

Rollladen Endleiste 35mm Mini für Aluminium-Panzer Detail

Rollladenpanzer Endleiste LD 35mm Mini

Rollladen Endleiste 37mm für Aluminium-Panzer Detail

Rollladenpanzer Endleiste LD 37mm

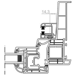
Aufsatzrollladen PMX Antriebsbohrungen

Aufsatzrollladen PMX Antriebsbohrungen Gurtausgang

Aufsatzrollladen PMX Gurtausgang Kasten 160mm Typ B

Aufsatzrollladen PMX Gurtausgang Kasten 160mm Typ B

Aufsatzrollladen Gurtausgang Kasten 200mm Typ A B C

Aufsatzrollladen PMX Gurtausgang Kasten 200mm Typ A B C

Aufsatzrollladen PMX Antriebsbohrungen Kurbelausgang

Aufsatzrollladen PMX Kurbelgetriebe Kasten 160mm

Aufsatzrollladen PMX Kurbelgetriebe Kasten 160mm

Aufsatzrollladen PMX Kurbelgetriebe Kasten 160mm mit Griff

Aufsatzrollladen PMX Kurbelgetriebe Kasten 160mm mit Griff

Aufsatzrollladen PMX Kurbelgetriebe Kasten 160mm unten

Aufsatzrollladen PMX Kurbelgetriebe Kasten 160mm unten

Aufsatzrollladen PMX Kurbelgetriebe Kasten 200mm

Aufsatzrollladen PMX Kurbelgetriebe Kasten 200mm

Aufsatzrollladen PMX Kurbelgetriebe Kasten 200mm mit Griff

Aufsatzrollladen PMX Kurbelgetriebe Kasten 200mm mit Griff

Aufsatzrollladen PMX Kurbelgetriebe Kasten 200mm unten

Aufsatzrollladen PMX Kurbelgetriebe Kasten 200mm unten

Aufsatzrollladen PMX Kurbelgetriebe Kasten 200mm mit Griff unten

Aufsatzrollladen PMX Kurbelgetriebe Kasten 200mm mit Griff unten

Aufsatzrollladen PMX Antriebsbohrungen mit Nothandkurbel

Aufsatzrollladen PMX Motor Kasten 160mm mit Nothandkurbel

Aufsatzrollladen PMX Motor Kasten 160mm mit Nothandkurbel

Aufsatzrollladen PMX Motor Kasten 160mm mit Nothandkurbel mit Griff

Aufsatzrollladen PMX Motor Kasten 160mm mit Nothandkurbel mit Griff

Aufsatzrollladen PMX Motor Kasten 160mm mit Nothandkurbel unten

Aufsatzrollladen PMX Motor Kasten 160mm mit Nothandkurbel unten

Aufsatzrollladen PMX Motor Kasten 200mm mit Nothandkurbel

Aufsatzrollladen PMX Motor Kasten 200mm mit Nothandkurbel

Aufsatzrollladen PMX Motor Kasten 160mm mit Nothandkurbel mit Griff

Aufsatzrollladen PMX Motor Kasten 200mm mit Nothandkurbel mit Griff

Aufsatzrollladen PMX Motor Kasten 200mm mit Nothandkurbel unten

Aufsatzrollladen PMX Motor Kasten 200mm mit Nothandkurbel unten

Aufsatzrollladen PMX Motor Kasten 160mm mit Nothandkurbel mit Griff unten

Aufsatzrollladen PMX Motor Kasten 200mm mit Nothandkurbel mit Griff unten

Aufsatzrollladen PMX Montagearten

Aufsatzrollladen Führungsschienen PMX - Einbaubeispiel:

Aufsatzrollladen Führungsschiene NRR-10 einzeln Montage

Aufsatzrollladen Führungsschiene NRR-10 einzeln Montage

Aufsatzrollladen Führungsschiene NRR-20 einzeln Montage

Aufsatzrollladen Führungsschiene NRR-20 einzeln Montage

Aufsatzrollladen Führungsschiene RK-16 einzeln Montage

Aufsatzrollladen Führungsschiene RK-16 einzeln Montage

Aufsatzrollladen Führungsschiene NRR-10 Montage-Beispiel

Aufsatzrollladen Führungsschiene NRR-10 Montage-Beispiel

Aufsatzrollladen Führungsschiene NRR-20 Montage-Beispiel

Aufsatzrollladen Führungsschiene NRR-20 Montage-Beispiel

Aufsatzrollladen Führungsschiene RK-16 und RK-18 Montage-Beispiel

Aufsatzrollladen Führungsschiene RK-16 und RK-18 Montage-Beispiel

Drutex Fensterlieferung

Kostenlose Lieferung

Ab einer Bestellung von 10 Fenstern deutschlandweit!

Jetzt Angebot für Aufsatzrollladen anfordern

Das könnte Sie auch interessieren:

Aufsatzrollladen PTP

Detailzeichnungen Aufsatzrollladen PTP 180mm

Der Aufsatzrollladen PTP überzeugt mit seiner hochwertigen Verarbeitung und hohen Wärmedämmung.

Detailzeichnungen Aufsatzrollladen PTP

Aufsatzrollladen PCC

Detailzeichnungen Aufsatzrollladen PCC 160mm

Der Aufsatzrollladen PCC ist eine kostengünstige Lösung mit niedriger Wärmedämmung.

Detailzeichnungen Aufsatzrollladen PCC