Alu Fensterprofile

Elegant und schlicht – Aluminium Fensterprofile im zeitlosen Design! Aluminium gehört zu den beständigsten und flexibelsten Werkstoffen unserer Zeit, daher ist es nicht verwunderlich, dass eine Vielzahl von Fensterrahmen aus Alu gefertigt werden. Im Unterschied zu Holz oder Kunststoff weisen Fensterprofile aus Alu eine besonders hohe Widerstandsfähigkeit auf und sind sehr robust gegenüber äußeren Einflüssen. Daher sind Alu Fensterrahmen auch so leicht zu reinigen. Vor allem die hervorragende Stabilität bei gleichzeitig vergleichbar leichtem Gewicht überzeugen die Architekten moderner Gebäude. So sind Alu Fenster mit schmalen Rahmen möglich, die dennoch eine riesige Glasfläche bieten können. Zur Anpassung an Ihren individuellen Stil werden Alu Fenster eloxiert oder pulverbeschichtet, dadurch erhalten sie genau die Farbe, die Sie sich für Ihre Fenster wünschen.

Charakteristik von Aluminiumsystem Aluprof MB-Profilen

Aluminiumfenster MB-45 technische Zeichnung
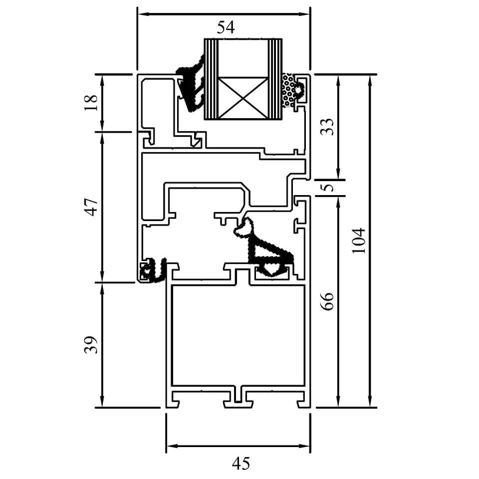
  • Ein-Kammerprofil aus Aluminium
  • Große Hohlverstärkungskammer
  • Dichtungssystem mit 2 Anschlagsdichtungen
  • Sicherheitsbeschlag MACO Multi Matic KS
  • Rahmenbautiefe 45 mm; Flügeltiefe 54 mm
  • Glasleiste im Standard eckig
  • Maximale Glasstärke bis 24,5 mm
  • Profile eloxiert oder lackiert (200 RAL-Farben)
  • Optional: Lasuren mit Holzoptik von Decoral

weiter zu Aluminiumfenster MB-45

Aluminiumfenster MB-60 technische Zeichnung
  • 3-Kammerprofil aus Aluminium mit speziellen Isoliereinlagen
  • Möglicher Einsatz zusätzlicher Isolierstege: MB-60 HI
  • Zentrale Mitteldichtung aus EPDM
  • Sicherheitsbeschlag MACO Multi Matic KS
  • Rahmenbautiefe 60 mm; Flügeltiefe 69 mm
  • Glasleiste im Standard eckig
  • Maximale Glasstärke bis 50 mm
  • Profile eloxiert oder lackiert (200 RAL-Farben)
  • Optional: Lasuren mit Holzoptik von Decoral

weiter zu Aluminiumfenster MB-60

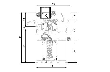
Aluminiumfenster MB-70 technische Zeichnung
  • 3-Kammerprofil aus Aluminium mit thermischer Trennung
  • Thermische Trennung (Glasfaser verstärkt mit Polyamid)
  • Zentraldichtung aus synthetischem Zweikomponenten-EPDM
  • Sicherheitsbeschlag MACO Multi Matic KS
  • Rahmenbautiefe 70 mm; Flügeltiefe 79 mm
  • Glasleiste im Standard eckig
  • Maximale Glasstärke bis 50,5 mm
  • Profile eloxiert oder lackiert (200 RAL-Farben)
  • Optional: Lasuren mit Holzoptik von Decoral

weiter zu Aluminiumfenster MB-70

Aluminiumfenster MB-70 HI technische Zeichnung
  • 3-Kammerprofil aus Aluminium mit speziellen Isoliereinlagen
  • Thermische Trennung (Glasfaser verstärkt mit Polyamid)
  • Zentraldichtung aus synthetischem Zweikomponenten-EPDM
  • Sicherheitsbeschlag MACO Multi Matic KS
  • Rahmenbautiefe 70 mm; Flügeltiefe 79 mm
  • Glasleiste im Standard eckig
  • Maximale Glasstärke bis 50,5 mm
  • Profile eloxiert oder lackiert (200 RAL-Farben)
  • Optional: Lasuren mit Holzoptik von Decoral

weiter zu Aluminiumfenster MB-70HI

Aluminiumfenster MB-79N SI technische Zeichnung
  • 3-Kammerprofil aus Aluminium
  • Thermische Trennung (Glasfaser verstärkt mit Polyamid)
  • 3 thermische Varianten der Konstruktion (MB-79N E, MB-79N ST, MB-79N SI)
  • MB-79N SI mit Zweikomponenten-Zentraldichtung aus EPDM
  • Sicherheitsbeschlag MACO Multi Matics KS
  • Rahmenbautiefe 70 mm; Flügeltiefe 79 mm
  • Glasleiste im Standard eckig
  • Maximale Glasstärke bis 63 mm
  • Profile eloxiert oder lackiert (200 RAL-Farben)
  • Optional: Lasuren mit Holzoptik von Decoral

weiter zu Aluminiumfenster MB-79N SI

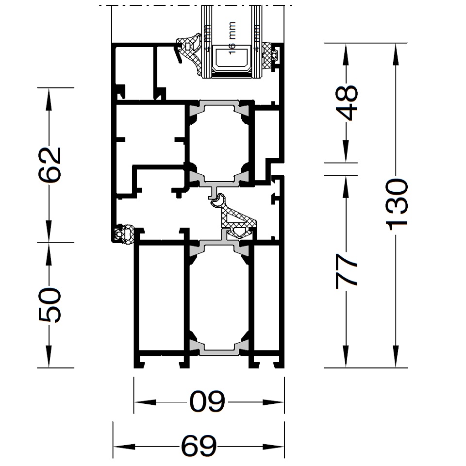
Aluminiumfenster MB-86 technische Zeichnung
  • 3-Kammerprofil aus Alu mit hoher thermischer Trennung
  • Thermische Trennung (Glasfaser verstärkt mit Polyamid)
  • Zentraldichtung aus synthetischem Zweikomponenten-EPDM
  • Sicherheitsbeschlag MACO Multi Matic KS
  • Rahmenbautiefe 77 mm; Flügeltiefe 86 mm
  • Glasleiste im Standard eckig
  • Maximale Glasstärke bis 65 mm
  • Profile eloxiert oder lackiert (200 RAL-Farben)
  • Optional: Lasuren mit Holzoptik von Decoral

weiter zu Aluminiumfenster MB-86

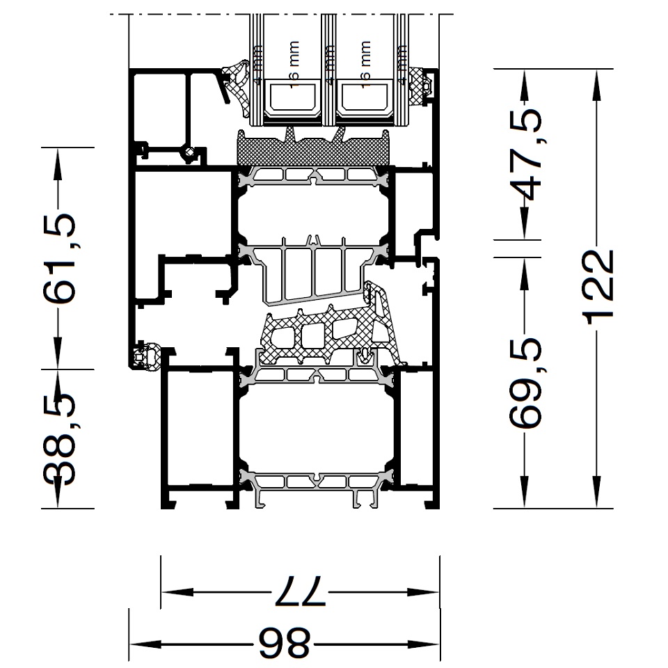
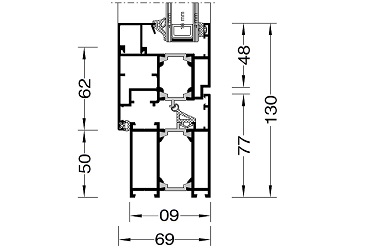
Aluminiumfenster MB-86 SI technische Zeichnung
  • 3-Kammerprofil aus Alu mit hoher thermischer Trennung
  • Thermische Trennung (Glasfaser verstärkt mit Polyamid)
  • Zusätzlicher Isoliersteg in den mittleren Profilkammern
  • Zentraldichtung aus synthetischem Zweikomponenten-EPDM
  • Sicherheitsbeschlag MACO Multi Matics KS
  • Rahmenbautiefe 77 mm; Flügeltiefe 86 mm
  • Glasleiste im Standard eckig
  • Maximale Glasstärke bis 65 mm
  • Profile eloxiert oder lackiert (200 RAL-Farben oder Holzoptik)

weiter zu Aluminiumfenster MB-86 SI

Aluminiumfenster MB-104 Passiv technische Zeichnung
  • 3-Kammerprofil aus Alu mit hoher thermischer Trennung
  • Thermische Trennung (Glasfaser verstärkt mit Polyamid)
  • Optional: System Aero mit wärmedämmenden Zwischenlagen
  • Hocheffizientes Dichtungssystem starke Parameter
  • Sicherheitsbeschlag MACO Multi Matic KS
  • Rahmenbautiefe 95 mm; Flügeltiefe 104 mm
  • Glasleiste im Standard eckig
  • Maximale Glasstärke bis 81 mm
  • Profile eloxiert oder lackiert (200 RAL-Farben oder Holzoptik)

weiter zu Aluminiumfenster MB-104

Aluminiumfenster MB-Ferroline technische Zeichnung
  • 3-Kammerprofil aus Alu mit hohem Wärmeschutz
  • Optional SI: Isoliersteg in den mittleren Profilkammern
  • Mehrebenendichtung für hohe Dichtigkeit
  • Sicherheitsbeschlag MACO Multi Matic KS
  • Rahmenbautiefe von 77 bis 110 mm
  • Flügelbautiefe von 86 bis 93,5 mm
  • Glasleiste im Standard eckig
  • Maximale Glasstärke bis 61,5 mm
  • Profile eloxiert oder lackiert (200 RAL-Farben oder Holzoptik)

weiter zu Aluminiumfenster MB-Ferroline

Charakteristik von Aluminiumsystem Aliplast-Profilen

Aliplast Alu-Fenster Ecofutural

Aliplast Alu-Fenster Ecofutural

Aliplast Alu-Fenster Genesis 75

Aliplast Alu-Fenster Genesis 75

Aliplast Alu-Fenster Superial

Aliplast Alu-Fenster Superial

Charakteristik von Aluminiumsystem Blyweert-Profilen

Blyweert Alu-Fenster Hercules

Blyweert Alu-Fenster Hercules

Blyweert Alu-Fenster Triton

Blyweert Alu-Fenster Triton

Blyweert Alu-Fenster Triton HI

Blyweert Alu-Fenster Triton HI

Alu Fensterprofile mit verschiedenem Aufbau und Bautiefen

Aluminium Fensterprofil MB-86SI in Anthrazit
Das besonders hochwertige Alufensterprofil MB-86SI

Bei fensterblick.de haben Sie die Wahl zwischen diversen Fensterprofilen aus hochwertigem Aluminium. Diese unterscheiden sich vor allem in der Bautiefe des Rahmens, der Flügeltiefe und auch der maximalen Glasstärke, die aufgrund der Profilbreite möglich ist.

Weitere Unterschiede finden sich im Aufbau des Kammersystems und in der Verwendung von thermischen Trennungen in diesem.

Das MB-45 System gehört zur Kategorie der kalten Aluminiumfenster. Es handelt sich dabei um ein 1-Kammerprofil das durch günstige Preise glänzt und sich ideal für Orte eignet, welche keine zusätzliche Wärmedämmung benötigen, wie z.B. Windfänge oder Wintergärten.

Für eine bessere und verlässliche Energieeffizient entscheiden Sie sich zwischen den 3-Kammerprofil wie dem MB-70. Dieses ist optional mit einer thermischen Trennung versehen, sodass die Wärme noch effektiver im Haus gehalten wird. Noch höhere Wärmedämmung bietet das Profilsystem MB-86-SI.

Alle Systeme verfügen über ein hervorragendes Dichtungssystem und sind mit den Alu-Fenster-Beschlägen von MACO MULTI MATICS KS ausgestattet. Je nach Ausführung ist eine Glasstärke von bis zu 65 mm möglich.

Unsere Aluminiumprofile im Überblick:

Profil Bautiefe Flügeltiefe Max. Glasstärke Dichtung
MB-45 45mm 54mm 23,5mm EPDM Dichtungssystem
MB-70 70mm 79mm 50,5mm Zweikomponenten EPDM
MB-70HI 70mm 79mm 50,5mm Zweikomponenten EPDM
MB-86SI 77mm 86mm 65mm Zweikomponenten EPDM

Vielfältige Gestaltungsmöglichkeiten für Ihre Aluminiumfenster

Alufenster 2-flüglig Farbe Elfenbein RAL 1014
2 flügliges Alufenster in Elfenbein-Farbe

Unabhängig vom Hersteller der Alu Fensterprofile sind oft auch die gestalterischen Aspekte wichtig bei der Kaufentscheidung. Dazu gehört natürlich die Alufenster Farbe, aber auch die Art des Fensters, die Verwendung von Sprossen oder die Form der Glasleisten.

In unserem Online-Konfigurator können Sie jedes Detail der Alu Fenster ganz in Ruhe und bequem von zu Hause aus planen. Klicken Sie dazu einfach das gewünschte Profil an und geben Sie die Fenstergröße ein. Die Gestaltung kann sofort starten.

Alu Fenster werden eloxiert oder pulverbeschichtet, sodass Sie die Wahl haben zwischen metallischen Tönen oder deckenden Lacken, die von verspielt, über dezent bis hin zu knalligen Tönen reichen. Optional sind auch Alu-Fenster in Holzoptik von Decoral möglich. Schöpfe Sie aus dem Vollen und verleihen Sie Ihren Alu Fensterprofilen ein umwerfendes Design!

Gratis levering

Bij een bestelling van 10 ramen of meer in Nederland!

Vraag nu een offerte aan voor aluminium kozijnen