Hier bei fensterblick.de wurde das Profil MB-60 aus dem Sortiment genommen. Als Alternative empfehlen wir das Fenster-System MB-70.
Alufenster - Aluprof MB-60 und MB-60 HI
Modernes Design mit Wärmedämmung
- Hochwertiges 3-Kammer-System
- Rahmenbautiefe von 60 mm
- Flügelbautiefe von 69 mm
- Maximale Glasstärke bis 50 mm
- Möglicher Einsatz zusätzlicher Isolierstege: MB-60 HI
Produktbeschreibung
MB-60 Aluminiumfenster – Schlanke Konstruktion für Wärmeschutz und Sicherheit
Das Aluminiumsystem Aluprof MB-60 ist die ästhetische und funktionelle Lösung für architektonische Elemente mit Wärmedämm- und Schallschutzbedarf. Trotz des schlanken Designs ist das Profil äußerst stabil und kann vielfältig eingesetzt werden, z.B. für Windfänge, Schaufenster oder als Wohnraumfenster. Sie haben die Wahl zwischen einem breiten Portfolio an RAL-Farben und können so Akzente in der Gestaltung setzen. Das Aluprof MB-60 System verfügt über profilierte Isolierstege in „Omega“-Form aus glasfaserverstärktem Polyamid, wodurch die Steifheit der Profile erhöht und damit die Wärmedämmen verbessert wird. Um die thermische Barriere des Systems weiter zu verbessern können spezielle Isolierstege im inneren der Profile eingesetzt werden (MB-60 HI). Dank der kompositionellen Nähe zum Aluprof MB-45 und MB-70-System ist es möglich, kompatible Elemente auszutauschen und beispielsweise Bänder oder Schlösser anderer Systeme zu nutzen. Entdecken Sie jetzt das Basismodell und viele Erweiterungsmöglichkeiten für Ihr Projekt!
Vorteile vom Aluminium Fenster MB-60:
Profil:
3-Kammersystem aus stabilem Aluminium für flexible Konstruktionen und flächenbündiger Optik. Rahmenbautiefe von 60 mm; Flügelbautiefe von 69 mm
Verglasung:
2-fach bis 3-fach Verglasung; Optionale Ausstattung mit Funktionsgläsern: Wärmeschutz-, Schallschutz-, Sichtschutz- und Einbruchschutzverglasungen.
Dichtungen:
Dichtungen aus EPDM für gute Wärmedämmung sowie Schlagregen- und Luftdichtheit.
Beschläge:
Hochwertige MACO MULTI MATIC KS Beschläge für eine verlässliche Sicherheit, sowie einer Fehlbediensperre für mehr Komfort.
Alu-Fenster Aluprof MB-60 - Unterschied thermische Varianten MB-60 und MB-60HI
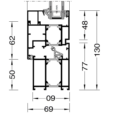
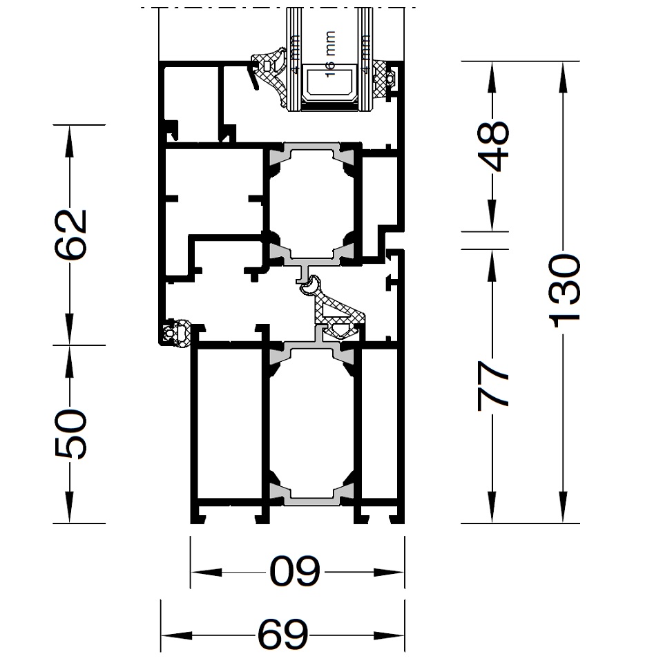
Aluminiumsystem Aluprof MB-60 - Profilansichten:
Aluminiumsystem Aluprof MB-60 HI - Profilansichten:
Alu-Fenster Farbkonfigurator für mehr Farbspielraum
Die präsentierten Farben und Maserungen können von der Realität abweichen. (Klicken Sie auf Ihre Wunschfarbe)
Fenster Aluprof MB-60 nach Maß
Einfach und bequem Fenster Aluprof MB-60 online konfigurieren und bestellen bei fensterblick.de
Technische Querschnitte und Detailzeichnungen
Das Basismodell mit vielen Möglichkeiten zur Weiterentwicklung! Das flexible MB-60-Profil ist ein absoluter Allrounder und lässt sich ideal mit Elementen der Serien MB-45 und MB-70 verbinden. Das ermöglicht Ihnen umfangreiche Gestaltungsvarianten, die Ihnen die Vorzüge verschiedener Profilsysteme bieten. In den technischen Zeichnungen finden Sie alle Details rund um Maße, Aufbau und Kombinationsmöglichkeiten – da bleiben keine Wünsche offen. Hier finden Sie das Mehrkammersystem, einzelne Dichtungsebenen sowie Kopplungsprofile und ggf. Sprosseneinsätze in unterschiedlichen Größendimensionen. Je nach Konstruktion und Präferenz können Sie die Fenster mit einem Stulp oder Pfosten ausstatten. Die jeweiligen Maßangaben sind in den Detailzeichnungen hinterlegt, sodass Sie präzise Ihr Bauvorhaben entwickeln und auf die jeweiligen Begebenheiten abstimmen können.
Aluminiumsysteme Aluprof MB-60 auf einem Blick:
Gratis levering
Bij een bestelling van 10 ramen of meer in Nederland!
Meer producten van Aluprof:
Aluprof Kozijnen | Aluprof Voordeuren | Aluprof Rolluiken | Aluprof MB-45 | Aluprof MB-70 | Aluprof MB-79N | Aluprof MB-86 | Aluprof MB-86N
Zusammenfassung: Produktinformationen
Aluminiumfenster MB-60
Ein schlankes Aluminiumprofil mit optional zusätzlicher Wärmedämmung (HI) bietet Ihnen das Aluprof MB-60 System. Die stabile Konstruktion erlaubt auch gewagte Formen und lässt großen Spielraum bei der individuellen, farblichen Gestaltung.
- Marke: Aluprof
- Profil: MB-60
- Material: Aluminium
- Breite: ab 300 mm
- Höhe: ab 300 mm
- Farbe: Weiß (weitere RAL Farben möglich)
- Verfügbarkeit: Lieferbar
- Zustand: Neu
- Preis: Auf Anfrage
- Online-Shop: fensterblick.de



