Hier bij kozijnenblik.nl bieden wij momenteel geen Brügmann bluEvolution 73 Kozijnen aan. In de praktische kozijnenconfigurator kunt u echter wel andere Salamander-profielen samenstellen.
Kunststof kozijnen - Salamander bluEvolution 73
Rondom aantrekkelijk en modern.
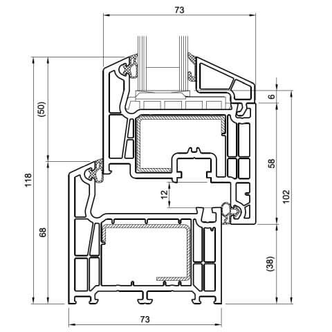
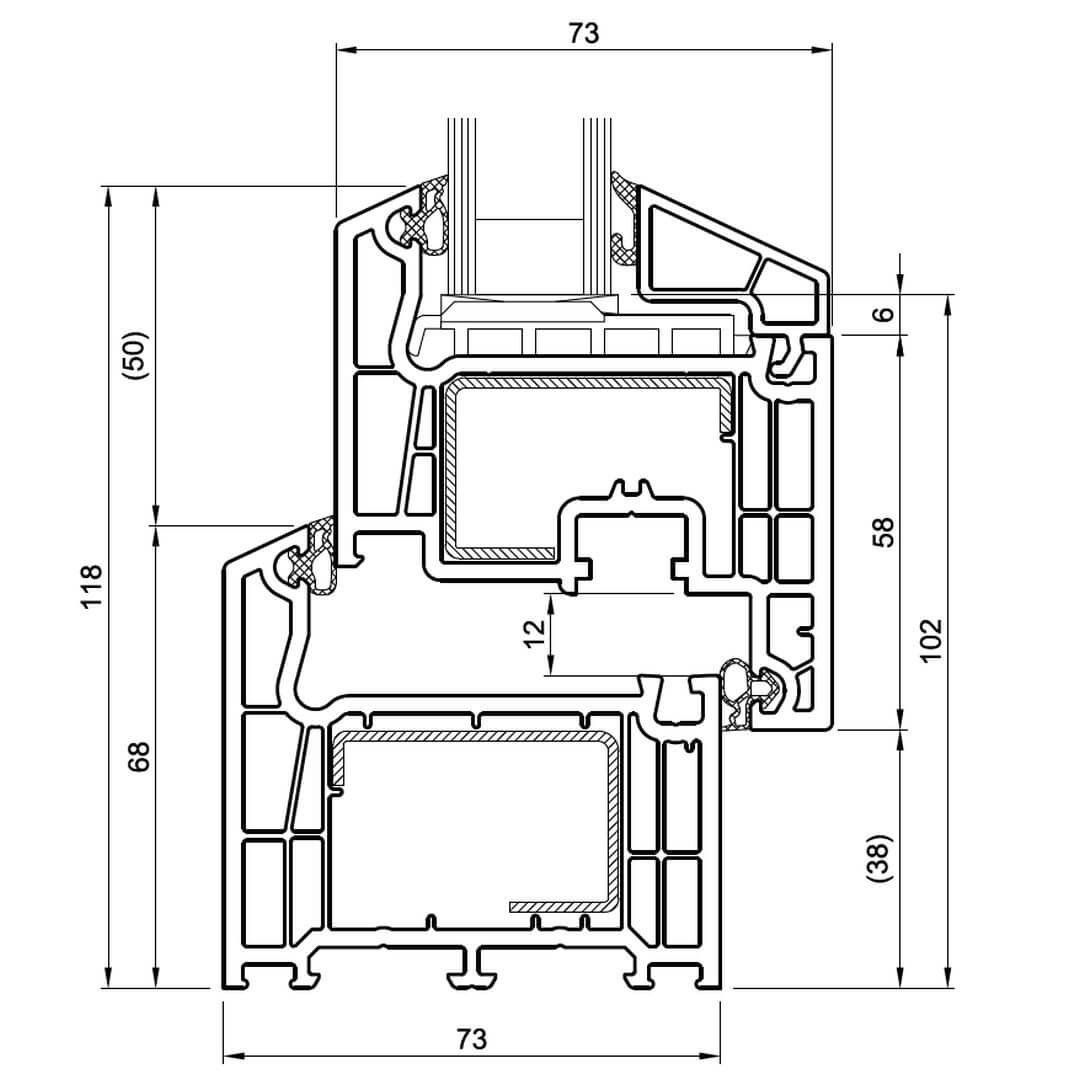
- 5-kamersysteem met 73 mm bouwdiepte
- 2 afdichtingsniveaus van EPDM
- 2-voudige / 3-voudige beglazing
- Geluidsisolatie tot 46 dB
- Inbraakwerend tot RC2
- Veiligheidsbeslag met paddenstoelvergrendeling
- 2 designvarianten
Productbeschrijving
Salamander bluEvolution 73 - hoogwaardige kozijnvormgeving eenvoudig gemaakt
Het kozijnsysteem bluEvolution 73 is een uitstekende keuze als u hoogwaardige kozijnvormgeving wilt realiseren. Het profiel is bijzonder onderhoudsvriendelijk dankzij de sterk verdichte oppervlakken en biedt een uitzonderlijk lange levensduur. Maar dat is nog lang niet alles wat Brügmann bluEvolution 73 te bieden heeft.
Dankzij de intelligente profielopbouw met grote stalen versterkingen biedt het kozijnsysteem uitstekende stabiliteit en betrouwbare functionele veiligheid. Het systeem voorkomt koudebruggen en verlaagt daardoor de energiekosten aanzienlijk. Met waarden tot Uw = 0,73 W/(m²K) behoort het kozijnsysteem tot de meest energie-efficiënte oplossingen op de markt. Een extra voordeel van bluEvolution 73 is de mogelijkheid om te kiezen uit twee vleugelgeometrieën. De vlakverzette uitstraling of half vlakverzette uitstraling met ronde vleugel sluit daarbij perfect aan op uw wensen.
Met talrijke decoroppervlakken en een optionele aluminium afdekschaal zijn Kozijnen uit het systeem bluEvolution 73 rondom aantrekkelijk. Of u nu op zoek bent naar draai-, kiep-, Draaikiepraam, Achterdeur, vouw- of Kiepschuifpui, het systeem is geschikt voor alle toepassingsgebieden. Maakt u zich zorgen over geluidsisolatie en inbraakwerendheid, dan kunt u gerust zijn: het kozijnsysteem bluEvolution 73 biedt geluidsisolatie tot 46 dB en inbraakwerendheid tot RC2.
Kozijnen Salamander bluEvolution 73 op maat
Eenvoudig en comfortabel Brügmann bluEvolution 73 online configureren en bestellen bij kozijnenblik.nl
Grote kleurkeuze voor de kozijnprofielen
Gratis levering
Bij een bestelling van 10 ramen of meer in Nederland!
Meer kunststofproducten van Salamander:
Salamander Kozijnen | Salamander bluEvolution 82 | Salamander bluEvolution 92 | Salamander evolutionDrive 82 | Salamander greenEvolution Kozijnen | greenEvolution free | greenEvolution flex | greenEvolution box | greenEvolution curve | Salamander Streamline 76 | Salamander Streamline 60
Samenvatting: Productinformatie



