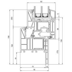
Kunststof raam Iglo 5 met renovatiekozijn

Renovatiekozijnen

Een renovatiekozijn is een bijzonder tijd- en kostenbesparend kunststof raam dat speciaal ontwikkeld is voor renovatieprojecten. Hierbij worden de vleugels van het oude raam verwijderd, terwijl het bestaande kozijn als dragend element behouden blijft voor het nieuwe raam.

Het kozijn van het nieuwe renovatieraam is zeer slank en wordt eenvoudig over het bestaande kozijn geplaatst. Daarnaast beschikt het nieuwe kozijn over een afdekrand die het oude kozijn netjes afdekt. Deze montagemethode wordt veel toegepast in Italiaanstalige en Franstalige regio’s.

Snel kozijnen renoveren zonder moeite

Kunststofffenster mit Renovierungsrahmen
Kunststofffenster mit Renovationsrahmen

Wanneer oude ramen versleten zijn, moeten ze meestal worden vervangen. Veel huiseigenaren associëren dit echter met veel tijd, inspanning en een grote hoeveelheid vuil en bouwafval. Bij een klassieke vervanging moet het oude raam namelijk zorgvuldig worden uitgehangen en uit de muur worden verwijderd.

Met innovatieve renovatiekozijnen hoeft u zich hierover geen zorgen meer te maken. Een renovatiekozijn bestaat net als standaard ramen uit een meerkamerprofiel. Het enige verschil is dat het renovatieraam eenvoudig op het bestaande kozijnkader wordt geplaatst. Het oude kozijn hoeft daardoor niet ingrijpend te worden gedemonteerd.

Daarom wordt dit type raam ook vaak een saneringsraam of snelwisselraam genoemd. Renovatiekozijnen vormen voor veel klanten een tijd- en kostenbesparende oplossing. Kosten voor ingrijpende metsel-, stuc- en schilderwerken kunnen zo worden vermeden. Bovendien kunt u eenvoudig kiezen voor een nieuwe kozijnkleur om uw woning een frisse uitstraling te geven.

Alternatieven voor renovatiekozijnen in verschillende materialen

Voor- en nadelen van renovatiekozijnen

  • Kunststof is duurzaam, weerbestendig en onderhoudsvriendelijk
  • Minder bijkomende werkzaamheden zoals metsel-, breek- of stucwerk
  • Geen afvoer van bouwpuin nodig
  • De gevelpleister en vloeren blijven schoner
  • Snelle vervanging van het raam
  • Individueel design en vrije kleurkeuze
  • Het glasoppervlak van het raam wordt met enkele centimeters verkleind
  • Het oude kozijnkader kan mogelijk niet volledig luchtdicht zijn en minder goed isoleren
  • De raamvleugels van het oude raam moeten meestal alsnog worden afgevoerd

Renovatiekozijnen op maat

Vraag nu eenvoudig en voordelig renovatiekozijnen online aan en bestel direct bij kozijnenblik.nl

Drutex renovatieprofielen

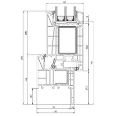
Kunststof raam Iglo 5 renovatiekozijn 50004

Iglo 5 Renovatiekozijn 50004

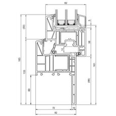
Kunststof raam Iglo 5 renovatiekozijn 50005

Iglo 5 renovatiekozijn 50005

Kunststof raam Iglo Energy renovatiekozijn 70004

Iglo Energy renovatiekozijn 70004

Raam Iglo 5 renovatiekozijn 50004 vast glas

Iglo 5 renovatiekozijn 50004 vast glas

Raam Iglo 5 renovatiekozijn 50005 vast glas

Iglo 5 renovatiekozijn 50005 vast glas

Raam Iglo Energy renovatiekozijn 70004 vast glas

Iglo Energy renovatiekozijn 70004 vast glas

Aluplast renovatieprofielen

Aluplast IDEAL 4000 profielen:

Aluplast IDEAL 4000 Italiaans Reno-profiel in Round-Line

Ideal 4000 Reno 40 mm (Round-Line)

Aluplast IDEAL 4000 Italiaans Reno-profiel in Soft-Line

Ideal 4000 Reno 40mm (Soft-Line)

Aluplast IDEAL 4000 Frans Reno-profiel in Round-Line

Ideal 4000 Reno 65mm (Round-Line)

Aluplast IDEAL 5000 profielen:

Aluplast IDEAL 5000 Reno-profiel 65 met dubbele beglazing

Reno-profiel 65 met dubbele beglazing (Soft-Line)

Aluplast IDEAL 5000 Reno-profiel 65 Round-Line

Reno-profiel 65 met dubbele beglazing (Round-Line)

Aluplast IDEAL 5000 Reno-profiel 65 met driedubbele beglazing

Reno-profiel 65 met driedubbele beglazing

Salamander renovatieprofielen

Streamline 76 profielen:

Salamander Streamline 76 met Reno Classic profiel met dubbele beglazing

Reno Classic profiel met dubbele beglazing

Salamander Streamline 76 met Reno Classic profiel met driedubbele beglazing

Reno Classic profiel met driedubbele beglazing

Salamander Streamline 76 met Reno Round profiel met dubbele beglazing

Reno Round profiel met dubbele beglazing

Salamander Streamline 76 met Reno Round profiel met driedubbele beglazing

Reno Round profiel met driedubbele beglazing

Renovatieprofielen van aluminium

Aluminium raam MB 60 in Reno-profiel

Reno-profiel MB 60

Aluminium raam MB 70 in Reno-profiel

Reno-profiel MB 70

Aluminium raam MB 86 in Reno-profiel

Reno-profiel MB 86

Aluminium raam MB Ferroline in Reno-profiel

Reno-profiel MB Ferroline

Aluminium raam Hercules in Reno-profiel

Reno-profiel Hercules

Aluminium raam Triton in Reno-profiel

Reno-profiel Triton

Renovatiekozijnen op maat

Vraag nu eenvoudig en voordelig renovatiekozijnen online aan en bestel direct bij kozijnenblik.nl

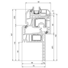
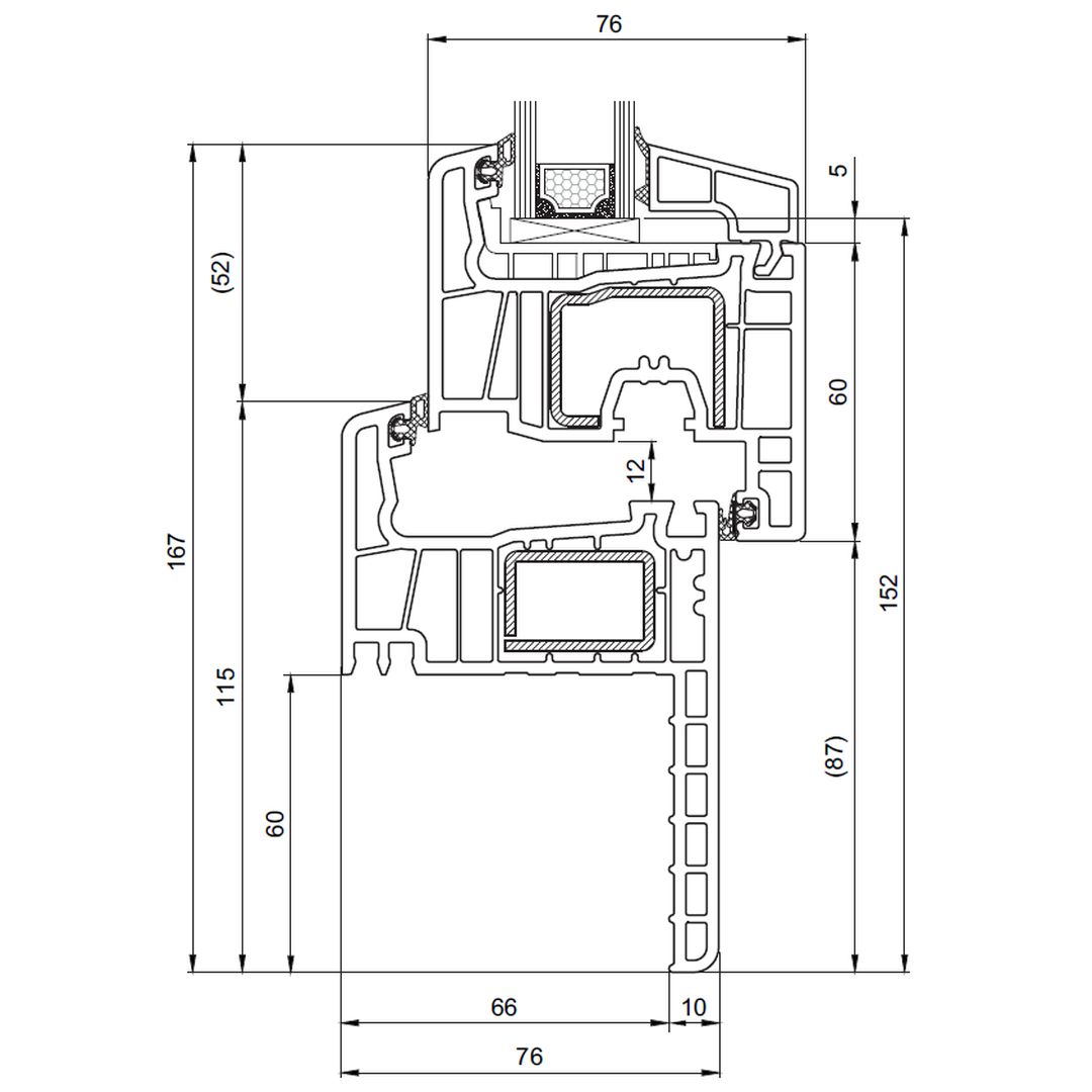
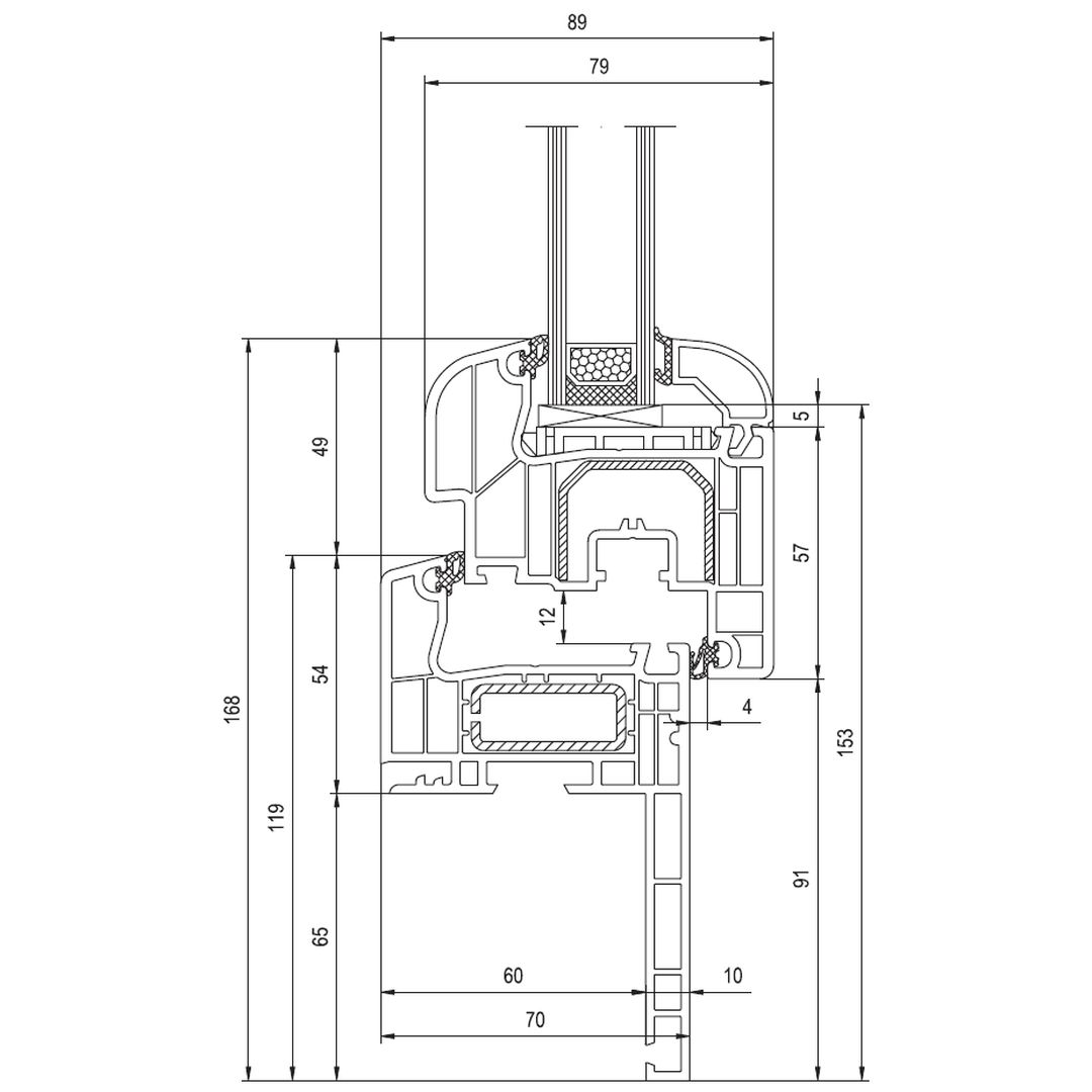
Detailtekeningen van de profielen

IDEAL 4000 profielen:

20 mm lange afdekrand:

Aluplast Ideal 4000 raam als renovatiekozijn in Round-Line

Reno-profiel (Round-Line) - 20 mm

Aluplast Ideal 4000 raam als renovatiekozijn in Soft-Line

Reno-profiel (Soft-Line) - 20 mm

40 mm lange afdekrand:

Aluplast Ideal 4000 raam als renovatiekozijn in Round-Line

Reno-profiel (Round Line) - 40 mm

Aluplast Ideal 4000 raam als renovatiekozijn in Soft-Line

Reno-profiel (Soft Line) - 40 mm

65 mm lange afdekrand:

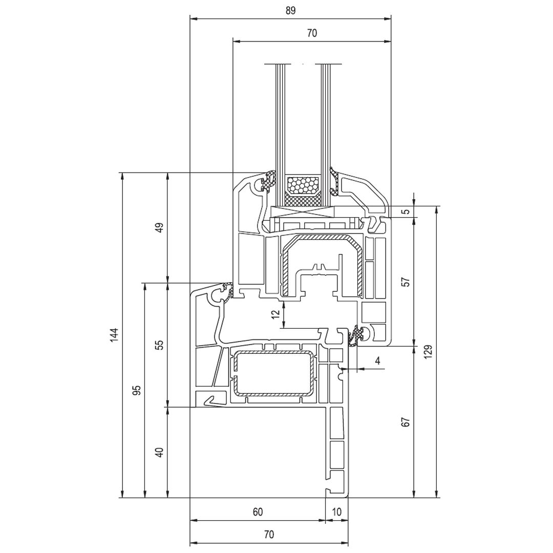
Aluplast Ideal 4000 raam als renovatiekozijn in Round-Line

Reno-profiel (Round Line) - 65 mm

Aluplast Ideal 4000 raam als renovatiekozijn in Soft-Line

Reno-profiel (Round Line) - 65 mm

IDEAL 5000 profielen:

65 mm lange afdekrand:

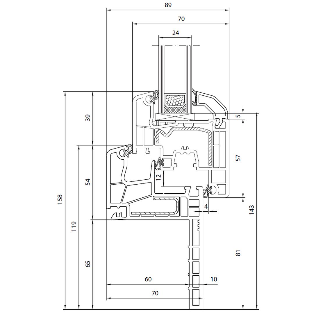
Aluplast Ideal 5000 raam als renovatiekozijn

Reno-profiel (Round Line) - 65 mm

Aluplast Ideal 5000 raam als renovatiekozijn met vleugel in Classic-Line

Reno-profiel (Classic-Line) – met vleugel – 65 mm

Aluplast Ideal 5000 raam als renovatiekozijn met vleugel in Round-Line

Reno-profiel (Round-Line) – met vleugel – 65 mm

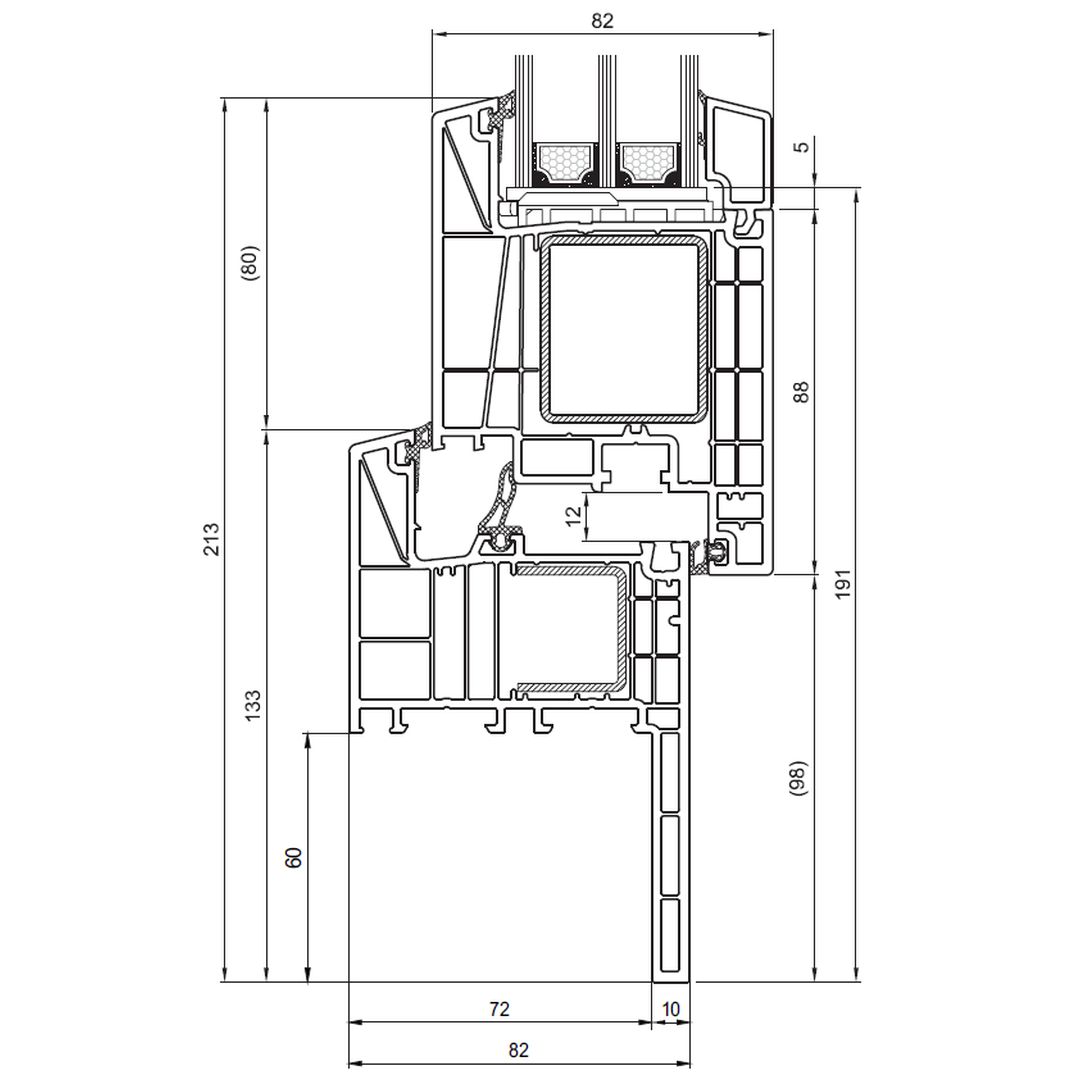
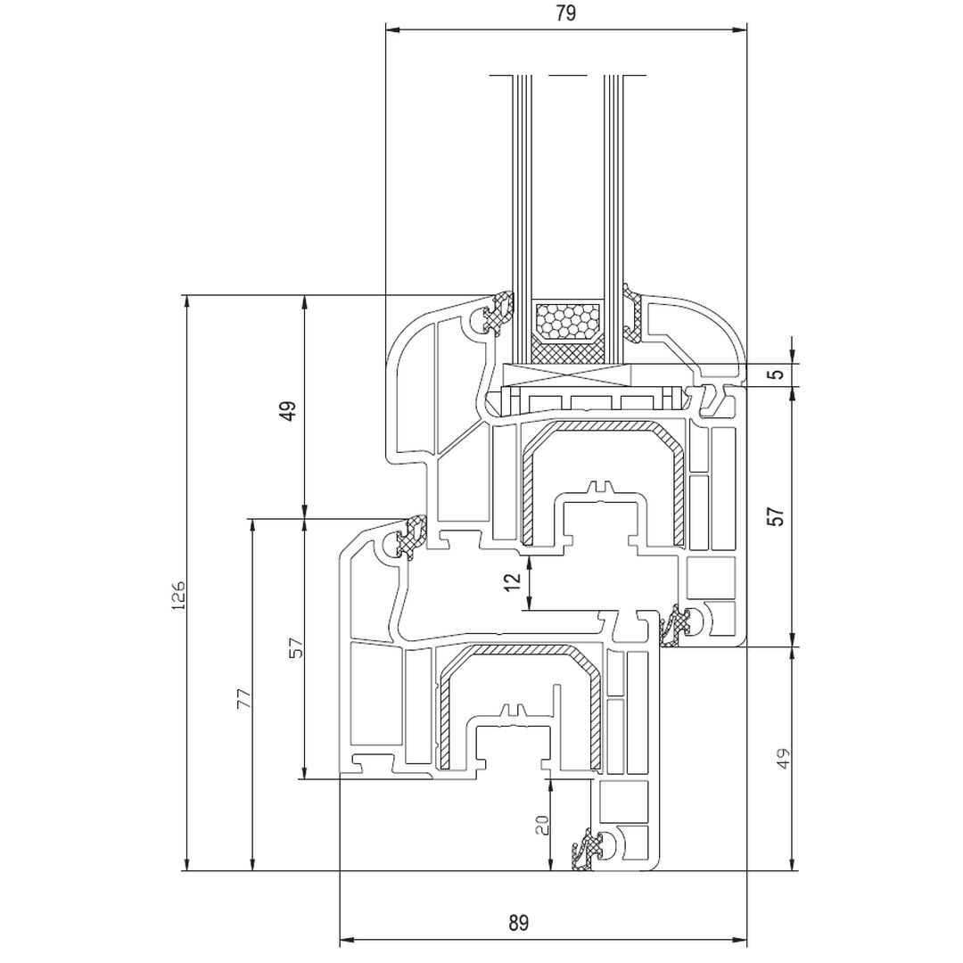
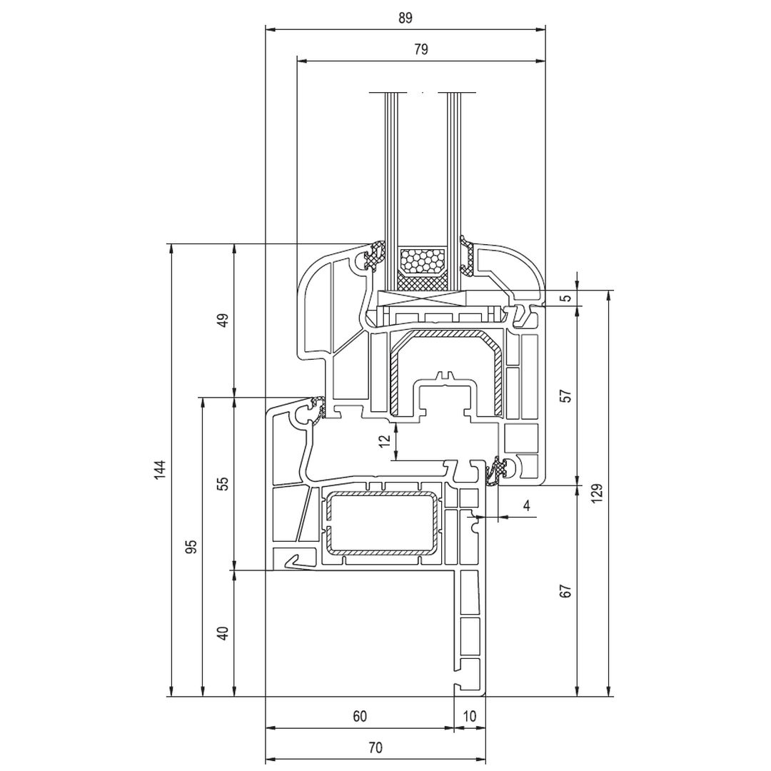
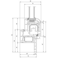
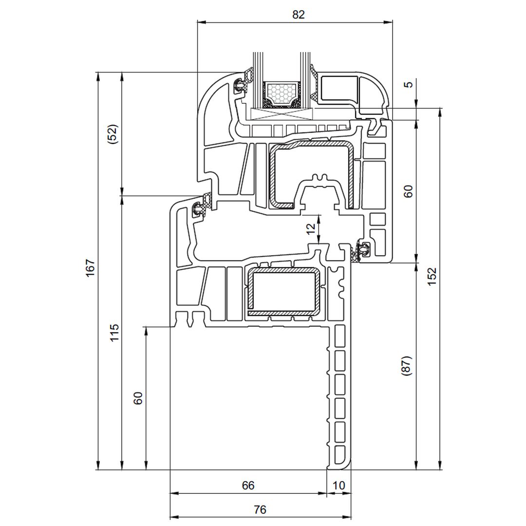
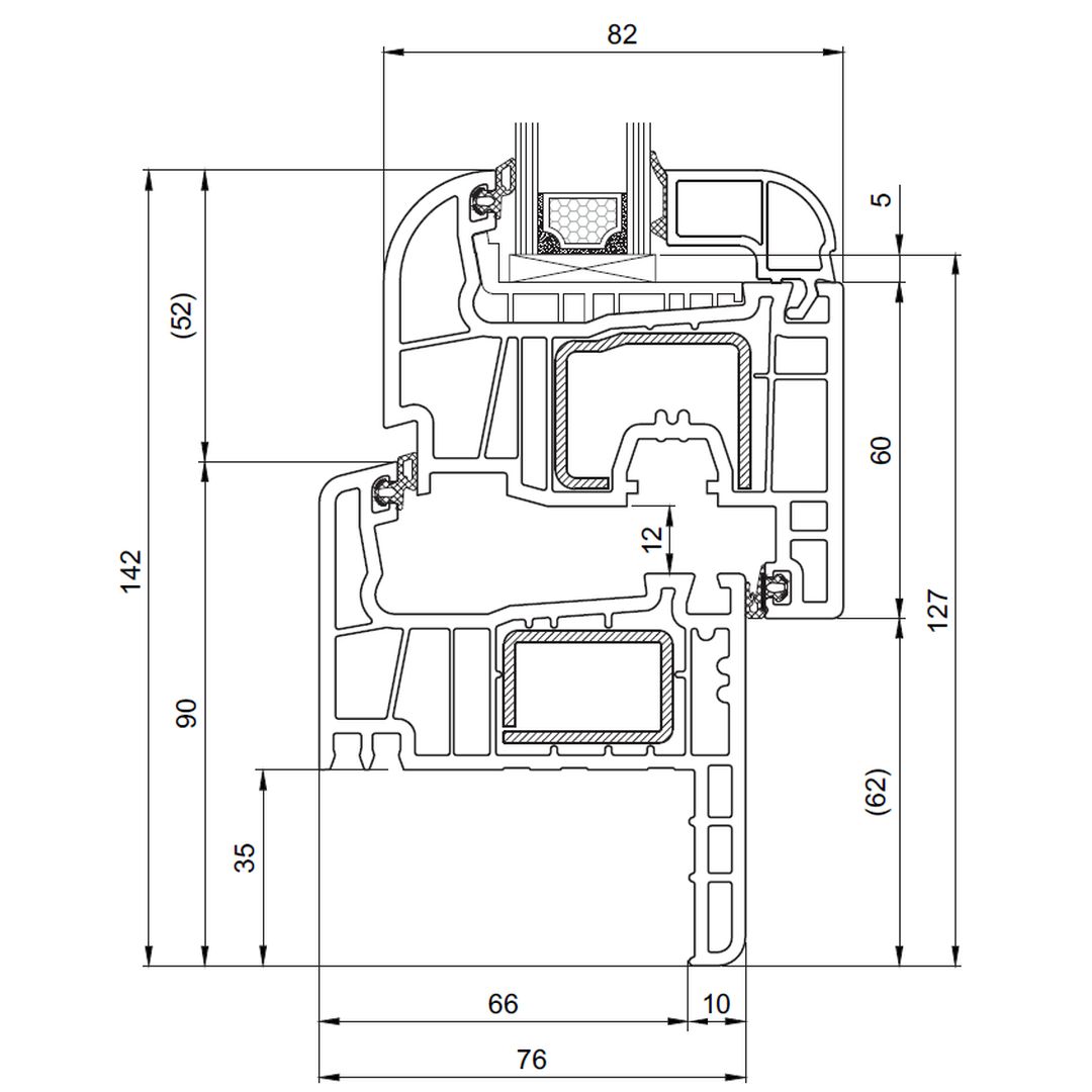
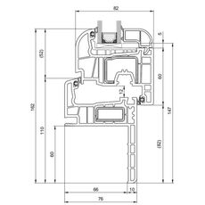
Salamander BluEvolution 82 profielen:

35 mm lange afdekrand:

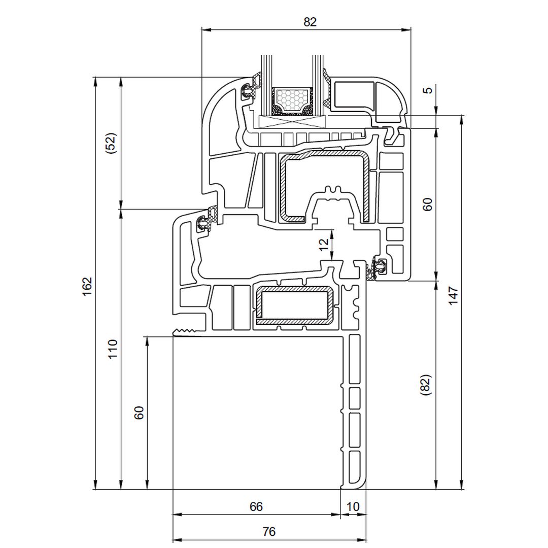
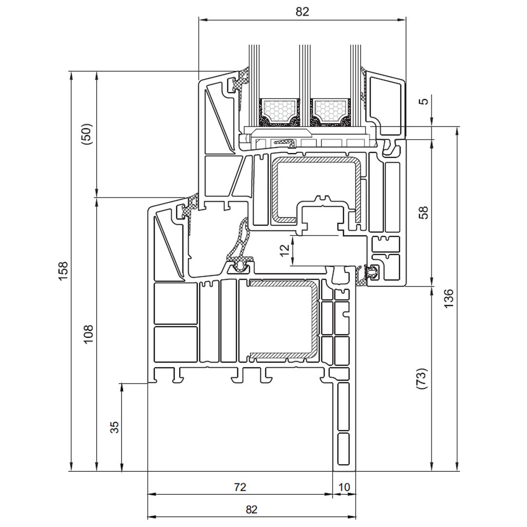
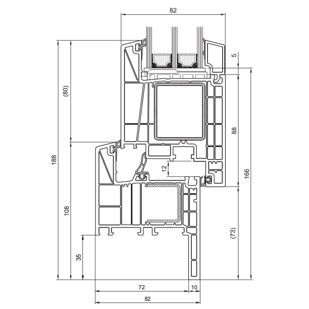
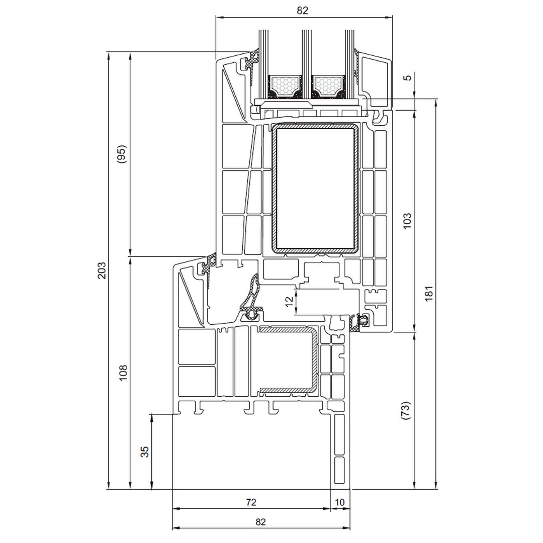
Salamander BlueEvolution 82 renovatiekozijn

Reno-profiel – alleen kozijnkader – 35 mm afdekrand – totale lengte 108 mm

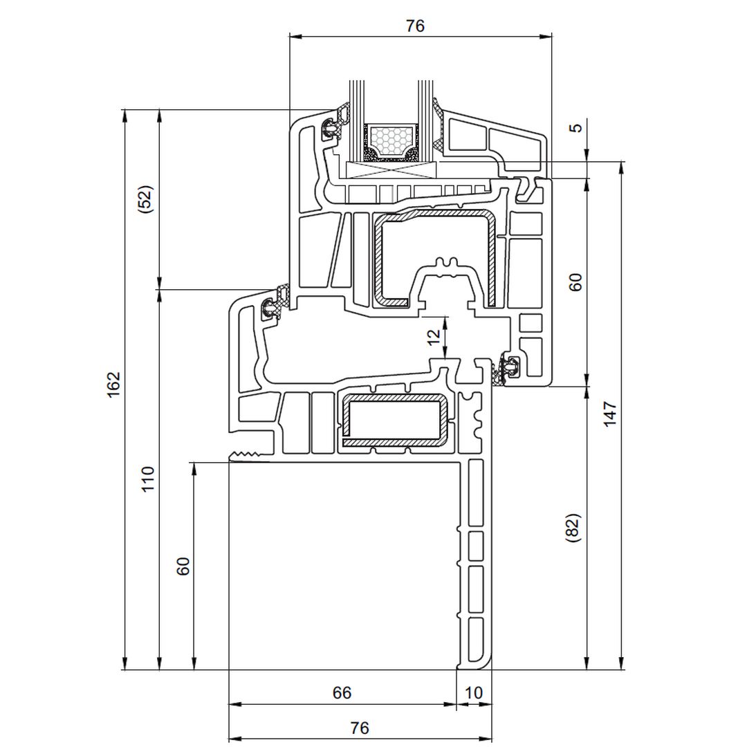
Salamander BlueEvolution 82 renovatiekozijn Classic-Line

Reno-profiel (Classic-Line) – 35 mm afdekrand

Salamander BlueEvolution 82 renovatiekozijn voor terrasdeuren

Reno-profiel voor terrasdeuren – 35 mm afdekrand

Salamander BlueEvolution 82 renovatiekozijn voor naar binnen openslaande terrasdeuren

Reno-profiel voor naar binnen openslaande terrasdeuren – 35 mm afdekrand

60 mm lange afdekrand:

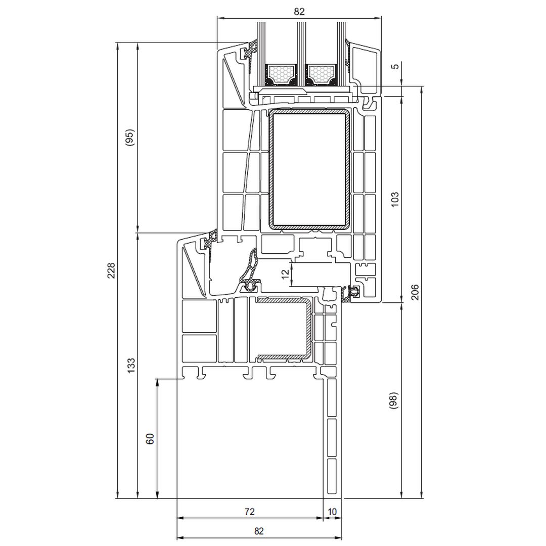
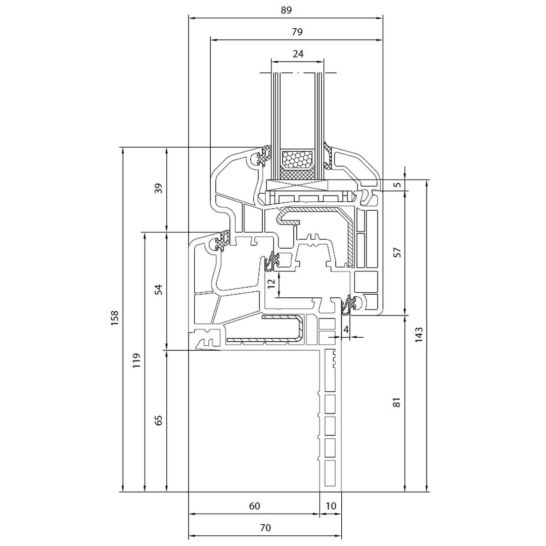
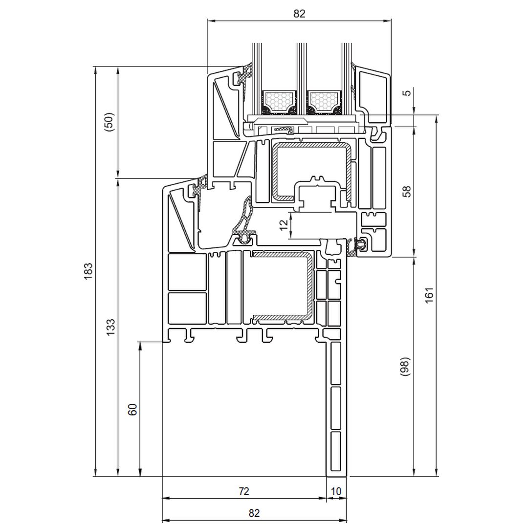
Salamander BlueEvolution 82 renovatiekozijn alleen kozijnkader

Reno-profiel – alleen kozijnkader – 60 mm afdekrand – totale lengte 133 mm

Salamander BlueEvolution 82 renovatiekozijn Classic-Line

Reno-profiel (Classic-Line) – 60 mm afdekrand

Salamander BlueEvolution 82 renovatiekozijn voor terrasdeuren

Reno-profiel voor terrasdeuren – 60 mm afdekrand

Salamander BlueEvolution 82 renovatiekozijn voor naar binnen openslaande terrasdeuren

Reno-profiel voor naar binnen openslaande terrasdeuren – 60 mm afdekrand

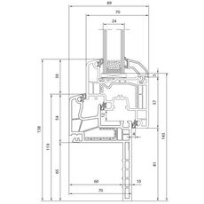
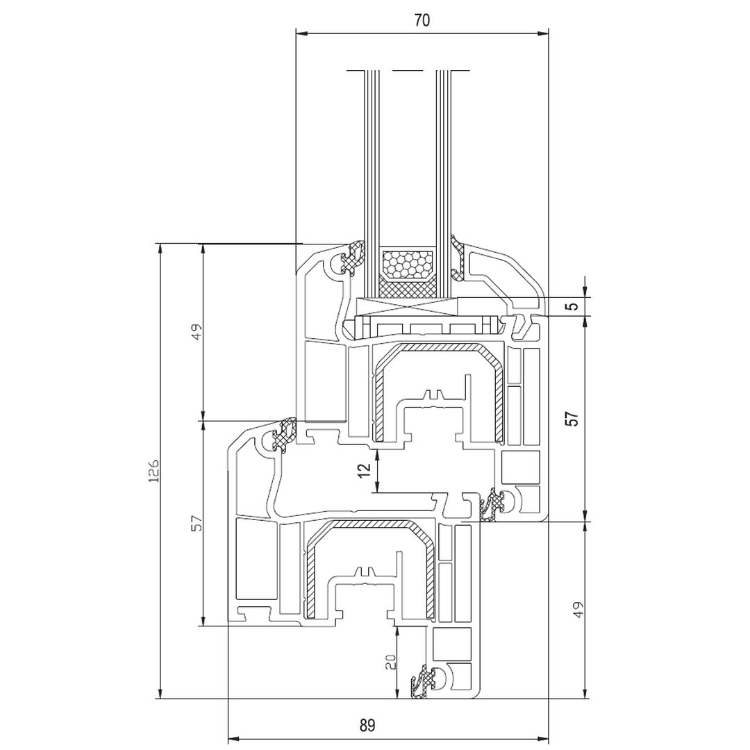
Salamander Streamline 76 profielen:

35 mm lange afdekrand:

Salamander Streamline 76 renovatiekozijn alleen kozijnkader

Reno-profiel – alleen het kozijnkader – 35 mm afdekrand – totale lengte 90 mm

Salamander Streamline 76 renovatiekozijn Classic-Line

Reno-profiel (Classic-Line) – 35 mm afdekrand

Salamander Streamline 76 renovatiekozijn Round-Line

Reno-profiel (Round-Line) – 35 mm afdekrand

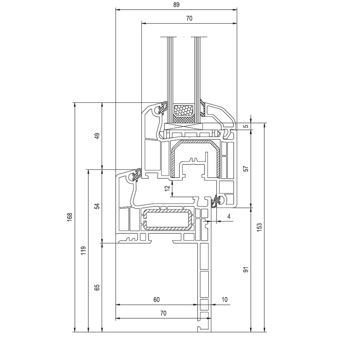
60 mm lange afdekrand:

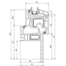
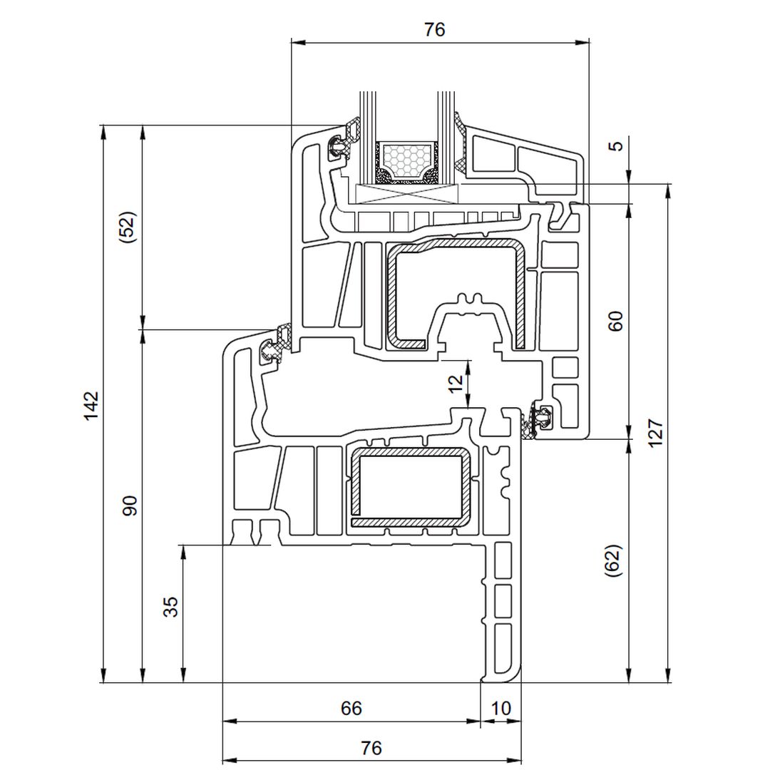
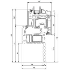
Salamander Streamline 76 renovatiekozijn alleen kozijnkader

Reno-profiel – alleen het kozijnkader – 60 mm afdekrand – totale lengte 110 mm

Salamander Streamline 76 renovatiekozijn

Reno-profiel – alleen het kozijnkader – 60 mm afdekrand – totale lengte 115 mm

Salamander Streamline 76 renovatiekozijn Classic-Line

Reno-profiel (Classic-Line) – 60 mm afdekrand – met 110 mm kozijnkader

Salamander Streamline 76 renovatiekozijn Classic-Line

Reno-profiel (Classic-Line) – 60 mm afdekrand – met 115 mm kozijnkader

Salamander Streamline 76 renovatiekozijn Round-Line

Reno-profiel (Round-Line) – 60 mm afdekrand – met 110 mm kozijnkader

Salamander Streamline 76 renovatiekozijn Round-Line

Reno-profiel (Round-Line) – 60 mm afdekrand – met 115 mm kozijnkader

Veelgestelde vragen over renovatiekozijnen

Wat is een renovatiekozijn?
Een renovatiekozijn is een raamconstructie die snel en zonder veel moeite kan worden vervangen. Hierbij worden de nieuwe raamprofielen eenvoudig op het kozijnkader van het bestaande raam geplaatst. Dit bespaart veel werk en stof, omdat het oude kozijn niet uit de muur hoeft te worden verwijderd en opnieuw geplaatst. Metsel- en stucwerk zijn daardoor niet nodig en uw kozijnen zien er weer als nieuw uit. De gevelpleister en de vloer blijven schoon. Bovendien verloopt de vervanging van het raam bijzonder snel. Alleen het glasoppervlak van het raam wordt met enkele centimeters verkleind.

Gratis levering

Bij een bestelling van 10 ramen of meer in Nederland!

Vraag nu een offerte aan voor kunststof kozijnen

Dit kan u ook interesseren:

Boogramen | Vaste ramen | Buitenkozijn | Erker kozijn | Speciale kozijnen