Einfach und bequem Fenster mit Aufsatzrollladen PTP online konfigurieren und bestellen bei fensterblick.de
Aufsatzrollladen PTP
Vielseitiges Premiumprodukt
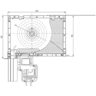
- Kastenhöhen: 180mm, 220mm und 250mm
- Kastentiefe: 255mm
- Optional mit Insektenschutz
- Maximale Bautiefe (Rahmenstärke): 202mm
- Kastenverbreiterung um 62mm möglich (Maximale Bautiefe: 264 mm)
ab 85,06 €
inkl. 19% MwSt. zzgl. Versand
Produktbeschreibung
Der Aufsatzrollladen PTP überzeugt mit seiner hochwertigen Verarbeitung, seinen vielfältigen Funktionen und seiner hohen Wärmedämmung. Für den Aufsatzkasten stehen die Maße 180x252mm, 220x252mm und 250x252mm zur Verfügung. Das System ist für Fensterprofile mit den Bautiefen (Rahmenstärke) bis 202mm geeignet. Zusätzlich kann die Kastentiefe mit Verbreiterungen um 31mm oder 62mm vergrößert werden. Damit sind Profile mit maximalen Bautiefen von bis zu 262mm möglich. Dies hat den Vorteil, dass auch große Hebeschiebetüren mit dem Rollladensystem versehen werden können. Bei dem PTP Aufsatzkasten gibt es mehrere Möglichkeiten, wie der Rollladen eingebaut werden kann. Falls der Aufsatzkasten nicht verputzt werden soll, sind die Kastenwände außen und innen glatt. Falls der Aufsatzrollladen verputzt und somit optisch nicht sichtbar sein soll, ist die jeweilige Kastenwand geriffelt und mit einer Putzleiste versehen. Optional kann der Aufsatzrollladen auch mit einem Insektenschutz ausgestattet werden. Die Ausführung mit dem Insektenschutzgitter schützt effektiv nicht nur vor Insekten, sondern auch vor Blättern und Verschmutzungen, lässt jedoch gleichzeitig frische Luft und Sonnenlicht durch. Der Rollladen kann sowohl manuell, mit einem Gurt, als auch elektrisch, mit einem Schalter bzw. Handsender bedient werden.
Eigenschaften und Systembeschreibung des Aufsatzrollladen PTP
- Kastenhöhe in 180mm, 220mm und 250mm
- Möglichkeit der Verputzung von innen und außen
- Große Auswahl an Farben und Dekoren
- Geeignet für Fenster-Systeme mit einer maximalen Bautiefe von 202mm (Mit Verbreiterung bis 264mm)
- Hochwertige Qualität mit hoher Wärmedämmung
- Stabile Verbindung der Bestandteile des Kastens
- Optional mit Insektenschutzgitter möglich
- Leichter Zugang zu Antriebselementen durch Revisionsklappe
Vorteile vom Aufsatzrollladen PTP
Rollladenkasten:
Das Aufsatzrollladen-System ist in 3 verschiedenen Kastenhöhen: 180mm, 220mm und 250mm erhältlich.
Panzerlamellen:
Stabile Panzerlamellen PA 39, PA 45 und PA 52 mit PUR-Schaum gefüllt für besonders gute Wärmedämmung.
Nutzungskomfort:
Optional mit Putzleiste innen und außen sowie Insektenschutzgitter möglich.
Bedienungskomfort:
Manuelle oder automatisch öffnende Mechanismen erhältlich sowie intelligente Steuerungssysteme via Smartphone oder Tablet.
Aufsatzrollladen PTP Kastenformen Querschnitte
Rollladenpanzer Lamellen (Profile)
Aufsatzrollladen Farben, Optik und Ästhetik
Der Rollladenpanzer besteht aus hochwertigem Aluminium. Die Hohlräume der Lamellen werden mit PUR-Schaum gefüllt, um eine noch bessere Wärmedämmung zu bieten. Damit der Vorbaurollladen perfekt zu Ihrem Zuhause passt, stellen wir eine große Auswahl von Farben für Sie bereit. So können Sie mit Ihrem Rollladen einen aufregenden Kontrast setzen, oder den Rollladen an Ihre Fensterfarbe anpassen.
Intelligente Rollladen-Steuerungssysteme
Wir bieten Ihnen mehrere Arten für das komfortable Öffnen und Schließen Ihrer Rollläden:
- Manuell mit Gurt, Kurbel oder Riemenkurbel
- Automatisch mit Fernbedienung oder durch Steuerung per Schlüssel oder Schalter
- Fernbedienung mit Kabel
- Individuelle Steuerung jedes Rollladens möglich
- Aufrüstung zu Fernsteuerung möglich
- Fernbedienung ohne Kabel
- RTS-Steuerungssystem
- Aufrüstung des bestehenden Systems möglich
Der Aufsatzrollladen PTP verspricht neben Effizienz, Eleganz und Sicherheit auch einen hohen Nutzungskomfort. Es werden verschiedene Methoden zum Öffnen des Rollladenkastens angeboten. Das Bedienen mithilfe einer Kurbel oder einem Gurtwickler ist die klassische Methode. Des weiteren gibt es die Möglichkeit, den Rollladen durch ein Funk-System zu steuern. Durch eine rundum elektrische Fernsteuerung kann der Rollladen bequem mithilfe einer Fernbedienung oder einer App bedient werden. Außerdem kann das automatische Öffnen oder Schließen zu bestimmten Uhrzeiten programmiert werden. Informieren Sie sich über die verschiedenen Möglichkeiten. Wir beraten Sie gerne.





