Einfach und bequem Fenster mit Aufsatzrollladen PPC online konfigurieren und bestellen bei fensterblick.de
Aufsatzrollladen PCC
Günstiges Aufsatz-System mit niedriger Wärmedämmung
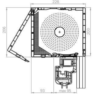
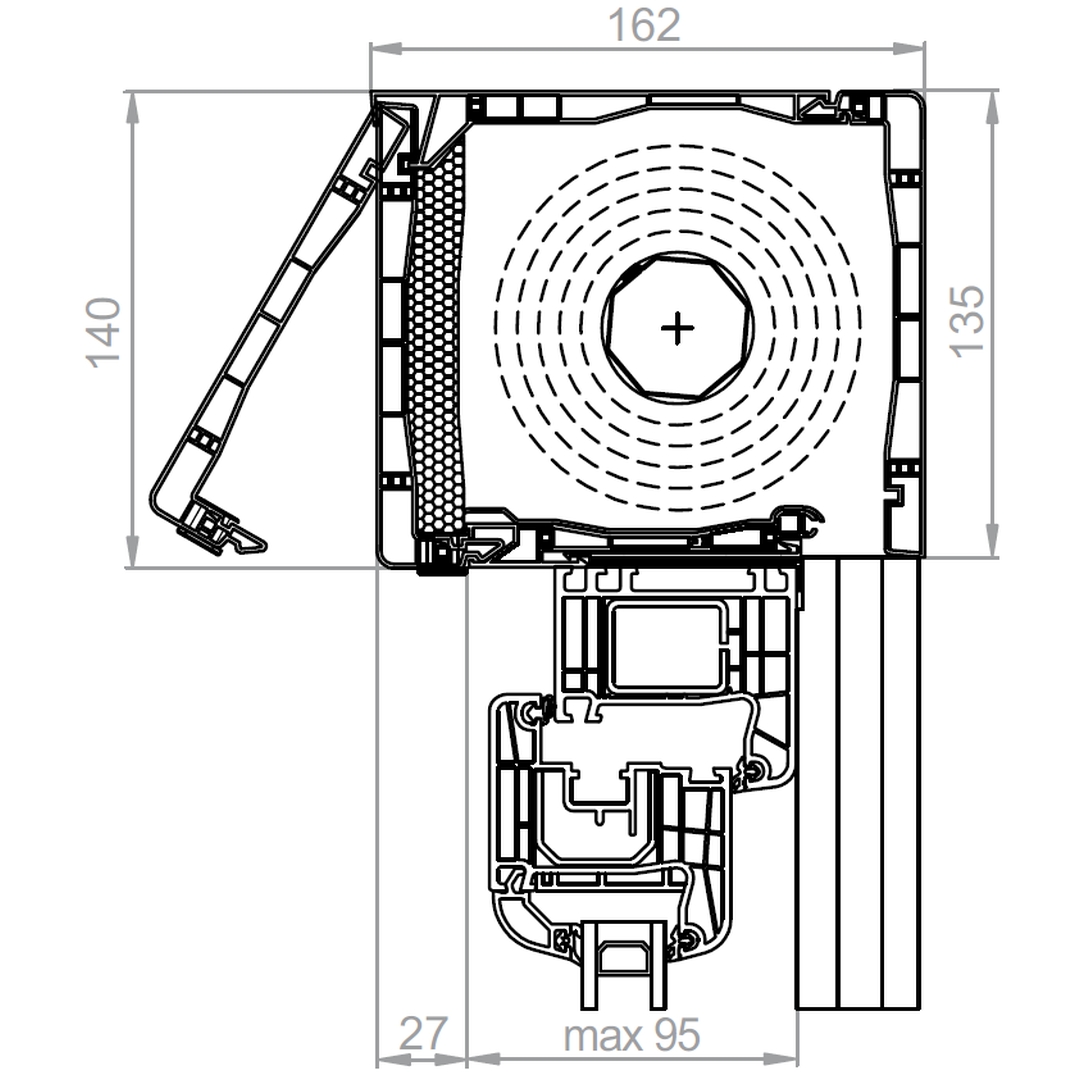
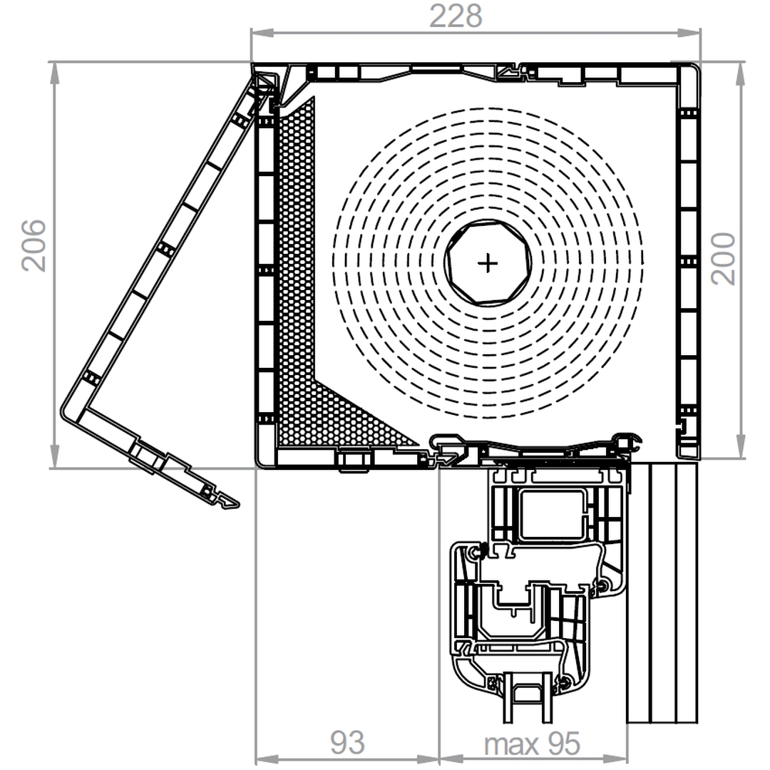
- Kastenhöhen: 135mm, 160mm und 200mm
- Maximale Bautiefe (Rahmenstärke): 95mm
- Geringe Tiefe für ein schlankes Design
- Revisionsklappe von der Seite
- Preisgünstiges Modell für Industriegebäude
- Manuelle oder elektrische Bedienung möglich
ab 85,06 €
inkl. 19% MwSt. zzgl. Versand
Produktbeschreibung
Der Aufsatzrollladen PCC dient als günstige Lösungen ohne hohe Anforderungen an die Wärmedämmung. Das Rollladen-System ist daher besonders passend für Industriegebäude. Der Aufsatzkasten PCC ist für Fensterprofile mit einer maximalen Bautiefe (Rahmenstärke) von 95mm geeignet. Zusätzlich besitzt das System eine Revisionsklappe von der Seite des Kastens, daher kann der Kasten nur von außen verputzt werden. Bei dieser Montagevariante ist der Rollladenkasten von außen nicht zu sehen. Somit wirkt die Außenfassade besonders edel und clean. Das Innere des Kastens ist jedoch vom Zimmer aus zugänglich, was etwaige Wartungsarbeiten erheblich vereinfacht. Somit werden eine hohe Lebensdauer und ein guter Nutzungskomfort ermöglicht. Überzeugen auch Sie sich von den Vorteilen des Aufsatz-Systems PCC.
Eigenschaften und Systembeschreibung des Aufsatzrollladen PCC
- Einfache Lösung zu günstigen Preisen
- Drei verschiedene Kastenhöhen zur Auswahl
- Geringe Kastenhöhen für mehr Lichteinfall
- Geeignet für Fenster-Systeme mit einer maximalen Bautiefe von 95mm
- Möglichkeit der Verputzung von außen
- Stabile Verbindung der Bestandteile des Kastens
- Einfache Montage durch Adapterprofil mit Fenster
- Leichter Zugang zu Antriebselementen durch Revisionsklappe
Vorteile vom Aufsatzrollladen PCC
Rollladenkasten:
Das Aufsatzrollladen-System ist in 3 verschiedenen Kastenhöhen: 135mm, 160mm und 200mm erhältlich.
Panzerlamellen:
Stabile Panzerlamellen PA 39, PA 45 und PA 52 mit PUR-Schaum gefüllt für besonders gute Wärmedämmung.
Nutzungskomfort:
Passende Adapterprofile für Fenster-Systeme mit einer maximalen Bautiefe von 95mm.
Bedienungskomfort:
Manuelle oder automatisch öffnende Mechanismen erhältlich sowie intelligente Steuerungssysteme via Smartphone oder Tablet.
Aufsatzrollladen PCC Kastenformen Querschnitte
Rollladenpanzer Lamellen (Profile)
Aufsatzrollladen Farben, Optik und Ästhetik
Der Rollladenpanzer besteht aus hochwertigem Aluminium. Die Hohlräume der Lamellen werden mit PUR-Schaum gefüllt, um eine noch bessere Wärmedämmung zu bieten. Damit der Vorbaurollladen perfekt zu Ihrem Zuhause passt, stellen wir eine große Auswahl von Farben für Sie bereit. So können Sie mit Ihrem Rollladen einen aufregenden Kontrast setzen, oder den Rollladen an Ihre Fensterfarbe anpassen.
Intelligente Rollladen-Steuerungssysteme
Wir bieten Ihnen mehrere Arten für das komfortable Öffnen und Schließen Ihrer Rollläden:
- Manuell mit Gurt, Kurbel oder Riemenkurbel
- Automatisch mit Fernbedienung oder durch Steuerung per Schlüssel oder Schalter
- Fernbedienung mit Kabel
- Individuelle Steuerung jedes Rollladens möglich
- Aufrüstung zu Fernsteuerung möglich
- Fernbedienung ohne Kabel
- RTS-Steuerungssystem
- Aufrüstung des bestehenden Systems möglich
Der Aufsatzrollladen PCC verspricht neben Effizienz, Eleganz und Sicherheit auch einen hohen Nutzungskomfort. Es werden verschiedene Methoden zum Öffnen des Rollladenkastens angeboten. Das Bedienen mithilfe einer Kurbel oder einem Gurtwickler ist die klassische Methode. Des weiteren gibt es die Möglichkeit, den Rollladen durch ein Funk-System zu steuern. Durch eine rundum elektrische Fernsteuerung kann der Rollladen bequem mithilfe einer Fernbedienung oder einer App bedient werden. Außerdem kann das automatische Öffnen oder Schließen zu bestimmten Uhrzeiten programmiert werden. Informieren Sie sich über die verschiedenen Möglichkeiten. Wir beraten Sie gerne.


