Einfach und bequem Fenster mit Aufsatzrollladen BeClever CleverBox online konfigurieren und bestellen bei fensterblick.de
BeClever Aufsatzrollladen CleverBox
Energieeffizient, dicht und schalldämmend
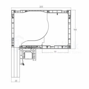
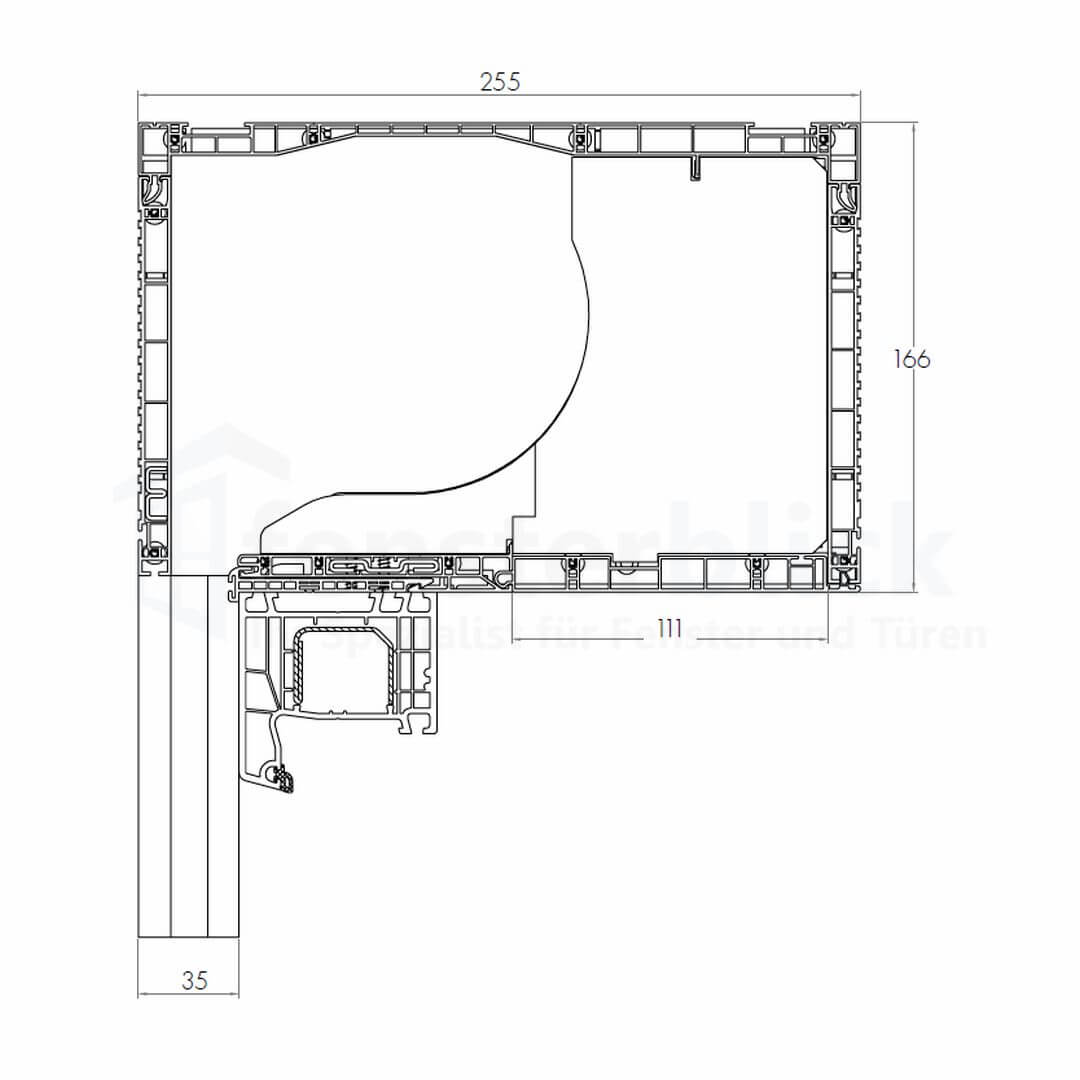
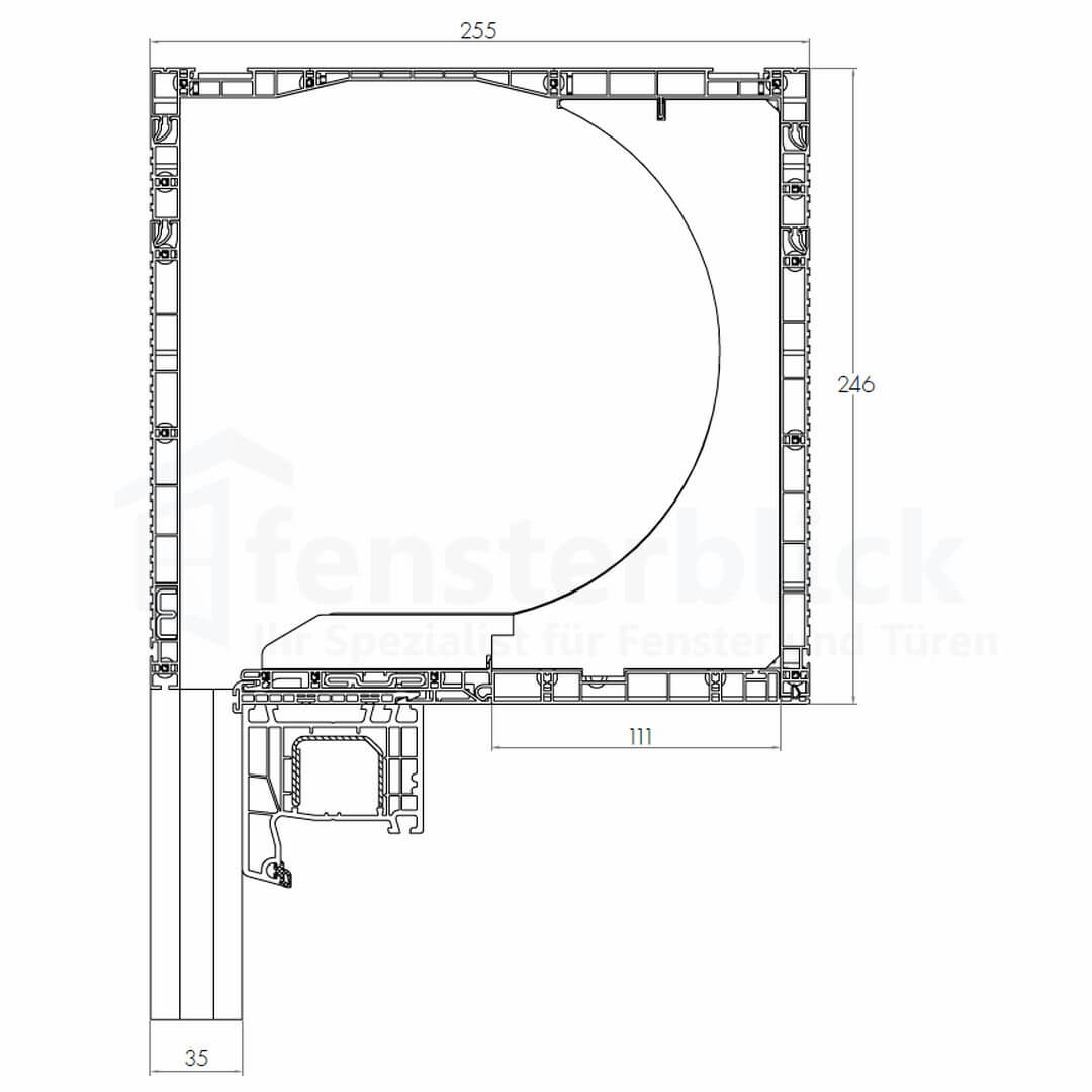
- Kastenhöhen: 165mm, 205mm und 245mm
- Universelles Kastenadapterprofil
- Hochwertiger Kunststoff und Neopor-Dämmeinlage
- Optional: Insektenschutz integrierbar
- Wärmedämmung und Schalldämmung vom IFT-Institut Rosenheim zertifiziert
Aufsatzrollladen können nur in Verbindung
mit einem Fenster bestellt werden.
Produktbeschreibung
Die clevere Lösung – BeClever Aufsatzrolladen CleverBox
Das Aufsatzrollladensystem CleverBox ist ein wahrer Allrounder – es bietet verschiedene Einbaumöglichkeiten sowie ein breites Spektrum an Endfertigungslösungen, sodass Sie den Rollladen genau an Ihre Bedürfnisse anpassen können. Besonders beliebt ist eine Unterputz-Konstruktion, da so kein Eingriff in die Optik der Fassade vorgenommen wird. Für den ästhetischen Anspruch können Sie sich zwischen zwei Formen der Revision von innen entscheiden sowie eine freie Farbauswahl treffen, die zu Ihren Fenstern und zu Ihren Stilvorstellungen passt.
Dank der Verwendung von hochwertigen PVC-Kastenprofilen und einer Dämmeinlage aus Neopor ist der CleverBox Rollladen besonders dicht und wärmedämmend. Dafür wurde das System vom IFT Rosenheim für seine starken Eigenschaften in Schalldämmung sowie die Energieeffizienz zertifiziert. Eine komfortable Montage wird durch die universellen Kastenadapterprofile gewährleistet, die für alle gängigen Fenstertypen verfügbar sind, darüber hinaus helfen Montageanker bei der sicheren Befestigung. Die Bedienung kann auf traditionelle, manuelle Weise erfolgen oder Sie wählen einen elektrischen Antrieb, der sich per Fernsteuerung oder Schalter betätigen lässt. Entdecken Sie alle Möglichkeiten jetzt in unserem Online-Konfigurator!
Vorteile BeClever Aufsatzrollladen CleverBox
Rollladenkasten:
Wandelbares Design dank den Varianten AluLine und DecorLine, freie Farbgestaltung passend zu Ihren Fenstern und der Fassade
Panzerlamellen:
Stabile Panzerlamellen aus ausgeschäumtem Aluminium (FCKW-freies Polyurethan): PA 39, PA 43 und PA 52.
Nutzungsvorteile:
Anwendung in Neubauten oder bei Sanierungen; optimale Dichtheit und Wärmedämmung
Bedienungskomfort:
Praktische Rollladensteuerung mittels manuellem oder elektrischem Antrieb; einfacher Zugang für Wartungsarbeiten via Revisionsklappe
Aufsatzkastentypen und -formen
Rollladenpanzer Lamellen (Profile)
Aufsatzkasten in zwei verschiedenen Design-Formen:
Kastenform CleverBox
Kastenform CleverBox Soft
Optik und Ästhetik der Panzerlamellen
Die Panzerlamellen der BeClever Aufsatzrollladen CleverBox sind abhängig vom Profilmaterial und der Größe in vielfältigen Farben erhältlich. So können Sie den Rollladen an Ihre Fensterfarbe anpassen oder aufregende Kontraste in der Fassade setzen. Zur Verfügung stehen Ihnen die Farben:
Intelligente Steuerungssysteme
Wir bieten Ihnen mehrere Arten für das komfortable Öffnen und Schließen Ihrer Rollläden:
- Manuell mit Gurt, Kurbel oder Riemenkurbel
- Automatisch mit Fernbedienung oder durch Steuerung per Schlüssel oder Schalter
- Fernbedienung mit Kabel
- Individuelle Steuerung jedes Rollladens möglich
- Aufrüstung zu Fernsteuerung möglich
- Fernbedienung ohne Kabel
- RTS-Steuerungssystem
- Aufrüstung des bestehenden Systems möglich
Während Kurbel oder Gurtwickler die klassischen Methoden für das Öffnen eines Rollladens darstellten, existieren auch moderne Varianten der Bedienung. Besondere Aufmerksamkeit verdient dabei das RTS-System mit der eine rundum elektrische Fernsteuerung möglich wird. Mit dieser lassen sich dann beliebig einzelne Rollladen oder ganze Gruppen gleichzeitig bedienen. Auch kann ein automatisches öffnen und schließen zu bestimmten Zeiten programmiert werden. Die intelligente Integration von Wettersensoren ist ebenso möglich, welche dann auf Wetterwechsel reagieren können. Selten waren Fensterrollladen so komfortabel und modern!







