Einfach und bequem Fenster mit Aufsatzrollladen Exte Elite XT online konfigurieren und bestellen bei fensterblick.de
Aufsatzrollladen EXTE Elite XT
Flexibles System für optimale Dämmung
- Kastenhöhen: 175mm, 200mm und 240mm
- Drei Revisionsvarianten in einem System
- Anpassbarer Dämmkeil und Befestigungsstiel
- Ausgeschäumte Panzerlamellen aus Aluminium
- Optionale Ausstattungen wie Insektenschutz oder intelligente Steuersysteme für noch mehr Komfort
Aufsatzrollladen können nur in Verbindung
mit einem Fenster bestellt werden.
Produktbeschreibung
Ein Rollladenkasten für alle Fälle – Exte Elite XT
Rollläden erhöhen den allgemeinen Wohnkomfort – sie verbessern die Wärmedämmung, den Schallschutz und erhöhen die Einbruchsicherheit. Der EXTE Elite XT-Rollladenkasten eröffnet Ihnen vielfältige Lösungsmöglichkeiten in nur einem System. So ist mit nur kleinen Eingriffen eine Revision von innen, unten, außen oder die Installation eines Raffstores möglich. Die einzelnen Bauteile werden dadurch effektiv und für verschiedene Einsatzmöglichkeiten genutzt, unabhängig von der Aufnahmekapazität des Kastens. Je nach Öffnungsvariante können der Dämmkeil sowie der Befestigungsstil einfach angepasst werden.
Insbesondere die Montage soll durch das wandelbare System erleichtert werden. Die robuste Antriebslagerung verfügt über eine Lagerscheibe mit universellen Langlöchern, in die über das Kopfstück gängige Motoren montiert werden können. Ein optional integrierter Insektenschutz ist vor allem in den warmen Sommermonaten von großem Vorteil. Lassen Sie sich gern von unserem Expertenteam beraten, welche Öffnungsvariante und welche Ausstattungen für Ihr Bauvorhaben die Richtigen sind.
Vorteile vom Aufsatzrollladen EXTE Elite XT:
Rollladenkasten:
Das Aufsatzrollladen-System ist in 3 verschiedenen Kastenhöhen mit verschiedenen Revisionsmöglichkeiten erhältlich.
Panzerlamellen:
Stabile Panzerlamellen aus ausgeschäumtem Aluminium (FCKW-freies Polyurethan): PA 39, PA 43 und PA 52.
Nutzungskomfort:
Ausgezeichnete thermische Isolierung für kalte Wintermonate und warme Sommertage.
Bedienungskomfort:
Manuelle oder automatisch öffnende Mechanismen erhältlich sowie intelligente Steuerungssysteme via Smartphone oder Tablet.
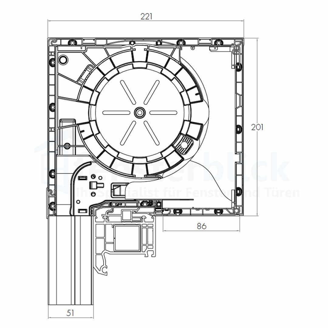
Technische Details der verschiedenen Kastenhöhen
Rollladenpanzer Lamellen (Profile)
Optik und Ästhetik der Panzerlamellen
Die Aluminium-Panzerlamellen für den Exte Elite XT Rollladenkasten sind in vielfältigen Farben erhältlich. So können Sie den Rollladen an Ihre Fensterfarbe anpassen oder aufregende Kontraste in der Fassade setzen. Zur Verfügung stehen Ihnen die Farben:
Intelligente Steuerungssysteme
Wir bieten Ihnen mehrere Arten für das komfortable Öffnen und Schließen Ihrer Rollläden:
- Manuell mit Gurt, Kurbel oder Riemenkurbel
- Automatisch mit Fernbedienung oder durch Steuerung per Schlüssel oder Schalter
- Fernbedienung mit Kabel
- Individuelle Steuerung jedes Rollladens möglich
- Aufrüstung zu Fernsteuerung möglich
- Fernbedienung ohne Kabel
- RTS-Steuerungssystem
- Aufrüstung des bestehenden Systems möglich
Während Kurbel oder Gurtwickler die klassischen Methoden für das Öffnen eines Rollladens darstellten, existieren auch moderne Varianten der Bedienung. Besondere Aufmerksamkeit verdient dabei das RTS-System mit der eine rundum elektrische Fernsteuerung möglich wird. Mit dieser lassen sich dann beliebig einzelne Rollladen oder ganze Gruppen gleichzeitig bedienen. Auch kann ein automatisches öffnen und schließen zu bestimmten Zeiten programmiert werden. Die intelligente Integration von Wettersensoren ist ebenso möglich, welche dann auf Wetterwechsel reagieren können. Selten waren Fensterrollladen so komfortabel und modern!






