Buitenjaloezieën eenvoudig en comfortabel online configureren en bestellen bij kozijnenblik.nl!
Raffstore CleverBox
Hochstabiles Verdunklungssystem für jeden Tag
- Aufsatzkasten Tiefe 255 mm
- Dämmung aus Neopor® oder Styropor®
- Stabile Lamellen in C- und Z-Form
- Flexibler Lichteinfall, stufenlos einstellbar
- Optional: integrierbarer Insektenschutz
- Adapterprofil zur Montage an PVC-, Aluminium- und Holzfenstern
Raffstores können nur in Verbindung
mit einem Fenster bestellt werden.
Produktbeschreibung
BeClever Raffstore CleverBox – der Beschattungs-Allrounder
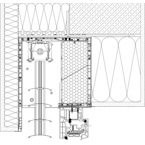
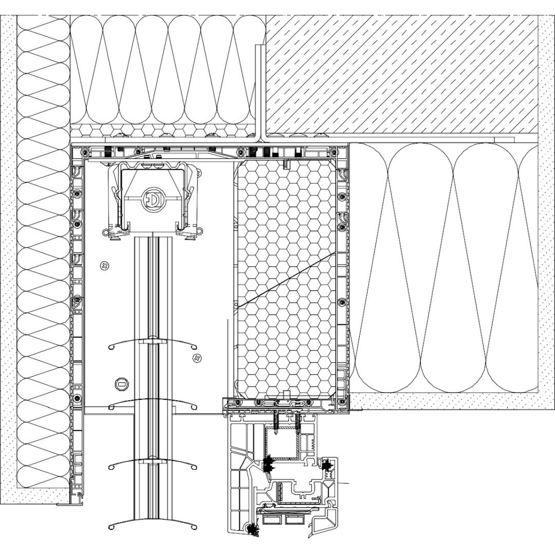
Der BeClever Raffstore CleverBox verfügt über einen stabilen Aufsatzkasten mit passendem Adapaterprofil, das für Fenster aus Kunststoff, Holz und Aluminium geeignet ist. Er wird direkt mit dem Fenster in die Mauerlaibung gesetzt. Für eine optimale Wärmedämmung haben Sie die Wahl zwischen einer Füllung aus Neopor® oder Styropor®, die im Kunststoffrahmen eingefügt ist. Dank der widerstandsfähigen Aluminiumlamellen werden die meisten Sonnenstrahlen effektiv reflektiert, so wird blendendes Licht vermindert und eine angenehme Raumtemperatur erhalten.
Insbesondere bei großflächigen Fenstern sind Raffstores zur Beschattung empfehlenswert. Dazu ist eine hohe Stabilität der Bauteile notwendig, um Windböen und dem ständigen Gewicht standhalten zu können. Der BeClever Raffstore erlaubt optional Stahlprofile und Verstärkungskonsolen und verfügt über ein Steuerband sowie Leiter aus Spezialkunstfasern, wodurch die Konstruktion äußerst beständig ist. Für die individuelle Gestaltung steht Ihnen eine große Auswahl nach Furnieren und Farben zur Verfügung, mit denen Sie Ihren persönlichen Stil unterstreichen können.
Weiter zur Detailzeichnungen und Querschnitte Raffstore CleverBox
Vorteile BeClever Aufsatzraffstore-System CleverBox
Raffstore-Kasten:
Aufsatzkasten mit Adapaterprofil für Fenster aus PVC, Holz oder Aluminium; integrierte Wärmedämmung.
Lamellen:
Stranggepresste Lamellen aus Aluminium im Typ C80, C80F oder Z für eine hohe Stabilität und Witterungsbeständigkeit.
Nutzungsvorteile:
Effektive Dämmung aus Neopor® oder Styropor®; einrollbares Insektenschutzgitter; freie Winkeleinstellung der Lamelle; optimale Abdunklung und Sichtschutz
Bedienungskomfort:
Manuelle oder elektronische Antriebe verfügbar; auf Wunsch intelligente Steuerungssysteme für eine Bedienung via Smartphone oder Tablet
Lamellenformen und -typen
Optik und Ästhetik der Lamellen
Die Aluminiumlamellen des Aufsatz-Raffstore Systems CleverBox sind in vielfältigen Farben erhältlich. So können Sie den Rollladen an Ihre Fensterfarbe anpassen oder aufregende Kontraste in der Fassade setzen. Zur Verfügung stehen Ihnen die Farben:
Intelligente Steuerungssysteme
Wir bieten Ihnen mehrere Arten für das komfortable Öffnen und Schließen Ihrer Raffstores:
- Manuell mit Gurt, Kurbel oder Riemenkurbel
- Automatisch mit Fernbedienung oder durch Steuerung per Schlüssel oder Schalter
- Fernbedienung mit Kabel
- Individuelle Steuerung jedes Raffstores möglich
- Aufrüstung zu Fernsteuerung möglich
- Fernbedienung ohne Kabel
- RTS-Steuerungssystem
- Aufrüstung des bestehenden Systems möglich
Während Kurbel oder Gurtwickler die klassischen Methoden für das Öffnen eines Rollladens darstellten, existieren auch moderne Varianten der Bedienung. Besondere Aufmerksamkeit verdient dabei das RTS-System mit der eine rundum elektrische Fernsteuerung möglich wird. Mit dieser lassen sich dann beliebig einzelne Rollladen oder ganze Gruppen gleichzeitig bedienen. Auch kann ein automatisches öffnen und schließen zu bestimmten Zeiten programmiert werden. Die intelligente Integration von Wettersensoren ist ebenso möglich, welche dann auf Wetterwechsel reagieren können. Selten waren Fensterrollladen so komfortabel und modern!




