Einfach und bequem Balkontür Aluplast IDEAL 8000 online konfigurieren und bestellen bei fensterblick.de
Kunststoff Balkontür - Aluplast IDEAL 8000
Kombination aus Energieeffizienz und Geborgenheit
Die Kunststoff Balkontür IDEAL 8000 von Aluplast ermöglicht hervorragende Parameter im Bereich der thermischen Isolation. Die ausgezeichnete Wärmedämmung reduziert die Heizkosten und sorgt alle Jahreszeiten für angenehme Temperaturen im Innenbereich. In unserem Online-Konfigurator können Sie schnell und einfach Ihre Balkontür nach Ihren Vorstellungen gestalten.
- 6-Kammerprofil
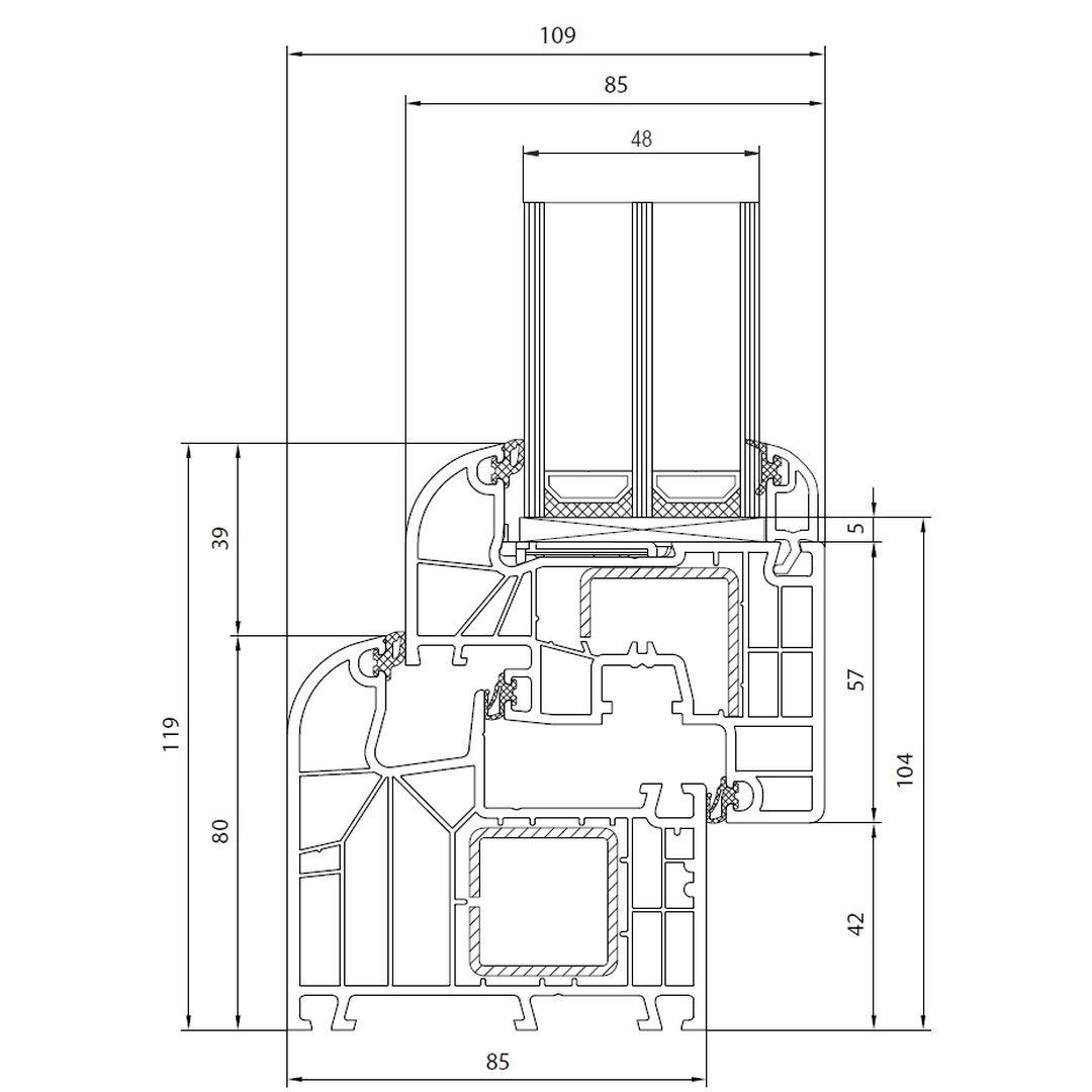
- Rahmenbautiefe: 85 mm
- 3-/4-fach Verglasung
- 3 Dichtungsebenen aus EPDM
- Optimal für Neubauten und passivhaustauglich
ab 173,82 €
inkl. 19% MwSt. zzgl. Versand
Produktbeschreibung
Herzlich, sicher, energieeffizienz - Komfortabler Alltag mit der Balkontür IDEAL 8000
Balkontüren des Systemprofils IDEAL 8000 der Firma Aluplast bestehen aus 6 Kammern und haben eine Einbautiefe von 85 mm. Das Profil ID 8000 besitzt ein Dichtungssystem mit 2 Anschlagsdichtungen (AD) und eine Mitteldichtung (MD) aus EPDM (Ethylen-Propylen-Dien-Kautschuke), das für Dichtheit, Energieeffizienz sowie ein gesundes Raumklima sorgt. Dazu dient auch die große Verstärkungskammer mit Stahlarmierung, die außerdem die Stabilität gewährt. Die hochwertigen Beschläge sorgen außerdem für die langjährige Funktionalität und hohe Sicherheit. Darüber hinaus kann optional die Anzahl der Pilzzapfenverriegelungen und Sicherheitsschließbleche erhöht werden, sodass die neue Balkontür so einbruchsicher wie möglich ist. Die Aluplast IDEAL 8000 Balkontür kann optional auch mit niedriger (20 mm) oder nullbarriere (schließt ebenerdig mit dem Boden ab) Schwelle bestellt werden. So werden gefährliche Stolperfallen minimiert und Sie sowie Ihre Liebsten gewinnen absolute Bewegungsfreiheit. Die herausragenden Dämmwerte in Zusammenhang mit den hohen Sicherheitsparametern prädestinieren die Balkontür IDEAL 8000 für den Einsatz im wärmegedämmten Neubau. Im Balkontür-Konfigurator von fensterblick.de können Sie Schritt für Schritt individuell Ihre neue Balkontür gestalten. Wählen Sie das Material Kunststoff und das Profil IDEAL 8000 in der Classic oder Round-Line aus. Entscheiden Sie sich für den Typ, geben Sie die Maße ein, entdecken Sie die zahlreichen Farben und fügen Sie die geeignete für Sie Verglasungsart sowie die interessanten für Sie Zusätze hinzu. Die Preisangabe können Sie transparent immer live mitverfolgen.
IDEAL 8000 Kunststoff Balkontüren zeichnen sich aus durch:
Profil:
Hochwertiges 6-Kammerprofil mit 85 mm Einbautiefe und große Verstärkungskammer mit Stahlarmierung für innovative Wärmedämmung, Sicherheit und Stabilität.
Verglasung:
3-/4-fach Verglasung. Vielfältige Spezialgläser, wie z.B. Ornament-, Schallschutz- oder Sicherheitsverglasung. Maximale Glasstärke bis zu 51 mm.
Dichtungen:
Mitteldichtungssystem (MD) mit 3 Dichtebenen aus EPDM für Luft- und Wasserdichtheit sowie einen erhöhten Einbruchschutz
Beschläge:
Markenbeschläge, wie z.B. von MACO Multi Matic, für dauerhafte Funktionalität und verlässliche Sicherheit.
Große Auswahl an Farben für Aluplast Fensterprofile
Balkontür Aluplast IDEAL 8000 nach Maß
Weitere Kunststoff Balkontüren von Aluplast:
Aluplast Fenster | Balkontür Aluplast IDEAL 4000 | Balkontür Aluplast IDEAL 5000 | Balkontür Aluplast IDEAL 7000 | Balkontür Aluplast IDEAL Neo
Zusammenfassung: Produktinformationen
Kunststoff Balkontür Aluplast IDEAL 8000
Die Balkontür Aluplast IDEAL 8000 aus Kunststoff bietet optimalen Wärmeschutz und Sicherheit bei einem idealen Preis-Leistungsverhältnis. Hohe Dämmwerte verhindern Wärmeverluste und senken damit die Heizkosten. Für die Farbauswahl stehen über vielfältige Dekorvarianten zur Verfügung.
- Marke: Aluplast
- Profil: IDEAL 8000
- Material: Kunststoff
- Breite: ab 60 cm
- Höhe: ab 200 cm
- Farbe: Weiß (weitere RAL Farben möglich)
- Verfügbarkeit: Lieferbar
- Zustand: Neu
- Preis: Auf Anfrage
- Online-Shop: fensterblick.de



