Aluminium PSK-Tür - MB-70 HI PSK
Schlicht und effizient mit Isolierstegen
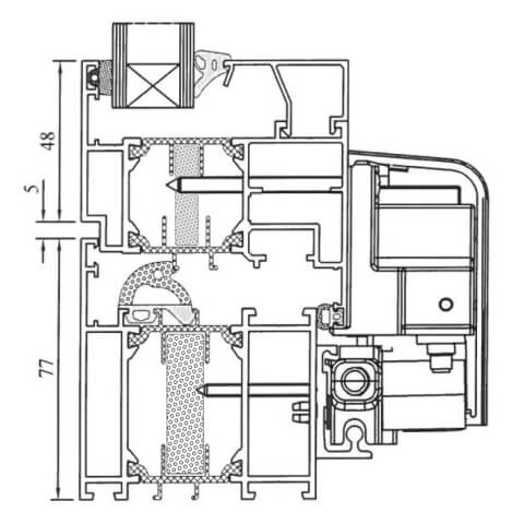
- 3-Kammersystem mit thermischer Trennung
- Bautiefe: 70 mm, Flügeltiefe: 79 mm
- Parallel-Schiebe-Kipp-Beschlagsystem
- Ausgezeichnete Wärmeisolierungsparameter
- Zentraldichtung aus Zweikomponenten-EPDM
- Thermische Trennung (Glasfaser verstärkt mit Polyamid)
ab 1.809,38 €
inkl. 19% MwSt. zzgl. Versand
Produktbeschreibung
Aluminium Parallel-Schiebe-Kipp-Tür MB-70 HI – ein Panoramablick mit purer Leichtigkeit
Herausragende Energieeffizienz und Stabilität sind die starken Attribute der PSK-Tür MB-70 HI. Der Einsatz von speziellen Isoliereinlagen innerhalb der 3-Kammerprofile erzeugt - in Verbindung mit einer thermischen Trennung aus mit Glasfaser verstärktem Polyamid - eine erstklassige Wärmedämmung. Diese wird durch Scheiben- und Anschlagsdichtungen aus EPDM und einer Zentraldichtung aus Zweikomponenten-EPDM unterstützt. Für einen noch besseren Uw-Wert empfehlen wir die Verwendung einer 3-fach-Verglasung mit der Warmen Kante SWISSPACER Ultimate. Bewährte Beschläge der MACO Multi Matics KS-Serie sowie zwei unabhängig voneinander arbeitende Führungsschienen lassen den Türflügel nach dem Kippvorgang leicht bedienen für einen optimalen Komfort. Eine ganz persönliche Note können Sie Ihrer Alu PSK-Tür dank einer vielfältigen Farbauswahl verleihen. Sie haben die Qual der Wahl aus 200 RAL-Lacken sowie ausgewählten Farben in Holzoptik von Decoral oeder holzähnliche Furniere der Aluprof ColorCollection. Lassen Sie sich inspirieren und Ihrer Phantasie freien Lauf.
MB-70 HI Aluminium PSK-Türen zeichnen sich aus durch:
Profil:
3-Kammer-System mit thermischer Trennung aus glasfaserverstärktem Polyamid und speziellen Isolierungseinlagen innerhalb der Profile. Einbautiefen von 70 mm im Rahmen und 79 mm im Flügel.
Verglasung:
Maximale Verglasungsdicke bis 50 mm. Individuelle Isolierverglasungen mit bis zu einer 4-fachen Verglasung mit Warmer Kante für herausragende Uw-Werte.
Dichtungen:
Scheibendichtungen und Anschlagdichtungen aus EPDM. Die Zentraldichtung aus Zweikomponenten-EPDM: Massiv- oder Zellkautschuk.
Beschläge:
Umlaufende MACO MULTI MATIC KS-Beschläge mit Einbruchsicherungspilzzapfen.
Alu PSK-Türen Farbkonfigurator für mehr Farbspielraum
Die präsentierten Farben und Maserungen können von der Realität abweichen. (Klicken Sie auf Ihre Wunschfarbe)
Kostenlose Lieferung
Ab einer Bestellung von 10 Fenstern deutschlandweit!
Meer producten van Aluprof:
Aluprof Kozijnen | Aluprof Voordeuren | Aluprof Rolluiken | Aluprof MB-45 | Aluprof MB-70 | Aluprof MB-79N | Aluprof MB-86 | Aluprof MB-86N
Zusammenfassung: Produktinformationen
Aluminium Parallel-Schiebe-Kipp-Tür MB-70 HI
Die PSK-Tür MB-70 HI aus Aluminium vereint Energieeffizienz und Stabilität zu einem gutem Preis. Die hervorragende Wärmeisolation hilft Heizkosten zu senken und bewährte Sicherheitsbeschläge der Firma MACO sorgen für die nötige Sicherheit in Ihrem Zuhause.
- Marke: DRUTEX
- Profil: MB 70hi
- Material: Aluminium
- Breite: ab 1500 mm
- Höhe: ab 1500 mm
- Farbe: Weiß (über 200 RAL-Farben möglich)
- Verfügbarkeit: Lieferbar
- Zustand: Neu
- Preis: ab 1907.30 €
- Online-Shop: fensterblick.de






