Aluminium PSK-Tür - MB-70 PSK
Sicherheit und Funktionalität kompakt
- 3-Kammersystem aus Aluminium
- Bautiefe: 70 mm, Flügeltiefe: 79 mm
- Parallel-Schiebe-Kipp-System
- Sicherheitsbeschlag MACO Multi Matics KS
- Scheiben- und Anschlagdichtungen aus EPDM
- Optional: Sicherheitsverglasung bis Widerstandsklasse P5A
ab 1.609,04 €
inkl. 19% MwSt. zzgl. Versand
Produktbeschreibung
Parallel-Schiebe-Kipp-Tür MB-70 – pure Eleganz und Funktionalität!
Aluminium steht für eine unglaubliche Leichtigkeit bei gleichzeitiger Stabilität. So auch die Alu Parallel-Schiebe-Kipp Tür des MB-70-Systems. Die leichte Konstruktion kann sowohl für Aluminiumfassaden als auch für den modernen Wohnungsbau genutzt werden und ist aufgrund des Schiebe-Kipp-Mechanismus leicht in den Führungsschienen zu bewegen. Das PSK-System verfügt zudem über eine sehr gute Schalldämmung und Wärmeisolation. Das Dichtungssystem besteht aus der Scheibendichtung, einer Anschlagdichtung und einer Zentraldichtung aus EPDM. Sie schützen das Profil vor Schlagregen und verhindern einen unangenehmen Luftzug. Zudem ist das robuste Aluminium äußerst pflegeleicht. Es hält den äußeren Witterungseinflüssen stand und bedarf keiner aufwändigen Reinigung. Bei der farblichen Gestaltung können Sie aus einer Vielfalt von über 200 RAL-Farben und Lasuren mit Holzoptik von Decoral sowie holzähnliche Furniere der Aluprof ColorCollection wählen. Das Design kann dabei Innen und Außen variieren.
MB-70 Aluminium PSK-Türen zeichnen sich aus durch:
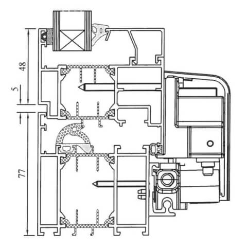
Profil:
3-Kammerprofil aus Aluminium. Einbautiefen von 70 mm im Rahmen und 79 mm im Flügel.
Verglasung:
Maximale Verglasungsdicke bis 50 mm. Individuelle Isolierverglasungen mit bis zu einer 4-fachen Verglasung mit Warmer Kante für herausragende Uw-Werte.
Dichtungen:
Scheibendichtungen und Anschlagdichtungen aus EPDM. Die Zentraldichtung aus Zweikomponenten-EPDM: Massiv- oder Zellkautschuk.
Beschläge:
Umlaufende MACO MULTI MATIC KS-Beschläge mit Einbruchsicherungspilzzapfen.
Alu PSK-Türen Farbkonfigurator für mehr Farbspielraum
Die präsentierten Farben und Maserungen können von der Realität abweichen. (Klicken Sie auf Ihre Wunschfarbe)
Kostenlose Lieferung
Ab einer Bestellung von 10 Fenstern deutschlandweit!
Meer producten van Aluprof:
Aluprof Kozijnen | Aluprof Voordeuren | Aluprof Rolluiken | Aluprof MB-45 | Aluprof MB-70 | Aluprof MB-79N | Aluprof MB-86 | Aluprof MB-86N
Zusammenfassung: Produktinformationen
Aluminium Parallel-Schiebe-Kipp-Tür MB-70
Die PSK-Tür MB-70 besitzt aufgrund des Werkstoffes Aluminium eine stabile und doch leichte Konstruktion. Innovatives Design, ein modernes Dichtsystem und eine Isolierverglasung geben dem Produkt hervorragende Werte in Energieeffizienz und Witterungsbeständigkeit. Für die individuelle Note stehen über 200 RAL Farben zur Verfügung.
- Marke: DRUTEX
- Profil: MB-70
- Material: Aluminium
- Breite: ab 1500 mm
- Höhe: ab 1700 mm
- Farbe: Weiß (über 200 RAL-Farben möglich)
- Verfügbarkeit: Lieferbar
- Zustand: Neu
- Preis: ab 1651.09 €
- Online-Shop: fensterblick.de






