Faltschiebetür 6-teilig außen Anthrazit

Faltschiebetür mit niedriger Schwelle

Faltschiebetüren ohne Schwelle bieten eine elegante Lösung für barrierefreien Zugang in Wohn- und Geschäftsumgebungen. Diese innovativen Türen vereinen ästhetisches Design mit funktionaler Praktikabilität und ermöglichen einen nahtlosen Übergang zwischen Innen- und Außenbereichen ohne lästige Schwellen. Mit ihrer benutzerfreundlichen Bedienung und ihrem ansprechenden Erscheinungsbild sind sie ideal für Personen mit eingeschränkter Mobilität oder für Räume, die einen barrierefreien Zugang erfordern. Entdecken Sie die Vielfalt und Vorteile von Faltschiebetüren ohne Schwelle auf unserer Themenseite.

Barrierefreiheit und Komfort vereint: Faltschiebetüren mit niedriger oder ohne Schwelle

Aluminium Faltschiebetür in Anthrazit zur Terrasse

Faltschiebetüren stellen eine innovative Lösung für barrierefreien Zugang dar, ohne auf Komfort und Stil verzichten zu müssen. Diese Türen bieten eine nahtlose Verbindung zwischen Innen- und Außenbereichen, ohne störende Schwellen, wodurch sie insbesondere für Personen mit eingeschränkter Mobilität ideal sind.

Ihr einfaches Bedienkonzept ermöglicht eine mühelose Nutzung, während ihr ästhetisches Design den Raum optisch aufwertet. Durch ihre vielseitigen Einsatzmöglichkeiten passen sie sich verschiedenen architektonischen Stilen und Raumkonzepten an. Darüber hinaus bieten Faltschiebetüren eine optimale Raumnutzung, da sie sich platzsparend öffnen lassen.

Ob in Wohnhäusern, Büros oder öffentlichen Einrichtungen – diese Türen überzeugen durch ihre Kombination aus Funktionalität und Ästhetik und tragen so zu einem komfortablen und barrierefreien Lebensstil bei.

Faltschiebetüren mit verschiedenen Schwellen

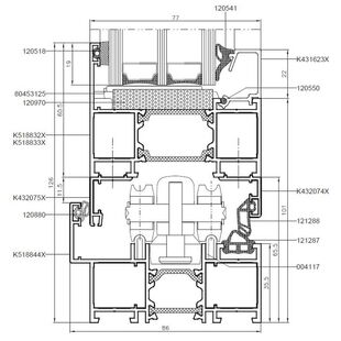
MB-86 Foldline - Schwelle 54mm
MB-86 Foldline - Schwelle 54mm
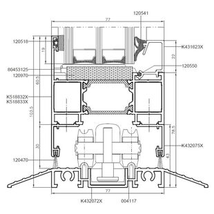
MB-86 Foldline - Schwelle 21mm
MB-86 Foldline - Schwelle 21mm
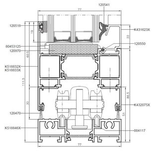
MB-86 Foldline - Schwelle 13mm
MB-86 Foldline - Schwelle 13mm

Gratis levering

Bij een bestelling van 10 ramen of meer in Nederland!

Nu offerte aanvragen voor vouwschuifdeuren