Kunststoff PSK-Tür - DRUTEX IGLO Energy PSK
Optimale Energieeffizienz
- 7-Kammer-Kunststoffprofil der Klasse A
- Einbautiefe von 82 mm
- Parallel-Schiebe-Kipp-Beschlagsystem
- Sicherheitsbeschlag MACO Multi Matics KS
- Optional: Wärmeschutzverglasung mit Warmer Kante
- Exzellente Wärmedämmung und Energieersparnis
ab 1.011,66 €
inkl. 19% MwSt. zzgl. Versand
Produktbeschreibung
Parallel-Schiebe-Kipp-Tür IGLO Energy – optimal isoliert bei vollem Durchblick
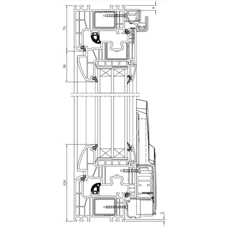
Die PSK-Tür der IGLO Energy-Serie ist das Premiumprodukt unter den Kunststoffprofilen. Das 7-Kammersystem der Profilklasse A bietet eine optimale Wärmedämmung, ist äußerst stabil und pflegeleicht. Eine isolierende Dreifachdichtung mit innovativer Mitteldichtung aus geschäumten EPDM sorgt für die nötige Dichtheit bei gleichzeitiger Luftdurchlässigkeit. In Verbindung mit ausgewähltem Verbundglas werden so die niedrigen Wärmedurchgangkoeffizienten erzielt.
Der Rahmen ist mit einem geschlossenen Stahlprofil verstärkt und der Türflügel beinhaltet ein C-Stahlprofil. Das macht die Türe besonders robust und widerstandsfähig gegen Windlast oder andere Einflüssen. Zwei unabhängige Führungsschienen ermöglichen nach dem Ankippen des Türflügels eine kinderleichte Bedienung. Dank des schmalen Systems, können Sie die Größe des Raums vollständig für Ihre Einrichtungsideen ausnutzen.
Das moderne Design fügt sich besonders schön in jegliche Raumgestaltungen ein. Dabei können Sie aus einer großen Palette an RENOLIT-Hochleistungsfolien zwischen knalligen Farben, gedeckten Tönen oder natürlich anmutenden Holzmaserungen wählen. Die Folie schützt zudem das darunter liegende Profil, macht es langlebiger, widerstandsfähiger und erleichtert die Reinigung spürbar. Überzeugen Sie sich selbst!
IGLO Energy Kunststoff PSK-Türen zeichnen sich aus durch:
Profil:
7-Kammer-System der Klasse A, Einbautiefe von 82 mm. Der Rahmen ist mit einem geschlossenen Stahlprofil und das Flügelprofil mit einem C-Profil verstärkt.
Verglasung:
Maximale Verglasungsdicke bis 48 mm. Individuelle Isolierverglasungen mit bis zu einer 4-fachen Verglasung mit Warmer Kante für herausragende Uw-Werte.
Dichtungen:
Dreifach-Dichtung: außen und innen aus EPDM, Zentraldichtung aus geschäumtem EPDM, in Schwarz, Grau oder Graphit
Beschläge:
Umlaufende Beschläge MACO MULTI MATIC KS mit Pilzkopfverriegelung und Sicherheitsschließblechen.
Breite Farbpalette für die Kunststoff PSK-Profile
Das große Sortiment an RENOLIT-Dekorfolien in 43 Farben ermöglicht die individuelle Anpassung des Fensters an Ihre Räumlichkeiten sowie der Fassade. Entdecken Sie unsere zweifarbigen Fenster!
Die präsentierten Farben und Maserungen können von der Realität abweichen. (Klicken Sie auf Ihre Wunschfarbe)
Kostenlose Lieferung
Ab einer Bestellung von 10 Fenstern deutschlandweit!
Meer producten van Drutex:
Drutex kozijnen | Drutex Voordeuren | Drutex Rolluiken | Drutex Iglo 5 | Drutex Iglo Light | Drutex Iglo Energy | Drutex Iglo HS | Drutex Iglo EXT | Drutex Iglo Premier
Zusammenfassung: Produktinformationen
Kunststoff Parallel-Schiebe-Kipp-Tür IGLO Energy
Die PSK-Tür DRUTEX IGLO Energy aus Kunststoff ist die hochwertige Lösung für den anspruchsvollen Kunden. Optimale Energieeffizienz, Stabilität und Sicherheit werden in dem modernen Design vereint.
- Marke: DRUTEX
- Profil: IGLO Energy
- Material: Kunststoff
- Breite: ab 1700 mm
- Höhe: ab 1700 mm
- Farbe: Weiß (weitere Farben möglich)
- Verfügbarkeit: Lieferbar
- Zustand: Neu
- Preis: Auf Anfrage
- Online-Shop: fensterblick.de




