Kunststoff Balkontüren mit Schwellen

Eintreten und Wohlfühlen! Die Balkontürschwelle bildet die Grenze zwischen Wohn- und Außenbereich. Ihre Funktionen sind vielfältig und reichen von einer glatten Abschlusskante bis hin zu Wasser- und Winddichtigkeit. Bei den klassischen Dreh-Kipp-Balkontüren werden Blendrahmen verwendet, ähnlich denen eines Fensters. Diese sind recht hoch und werden so oft zur gefährlichen Stolperfalle. Barrierefreie Konstruktionen mit flachen Schwellen können hier nun Abhilfe verschaffen. Die niedrigen Schwellen mit bis zu 20 mm Höhe ermöglichen einen nahezu uneingeschränkten Bewegungsraum und halten das Stolperrisiko gering. Recht neu auf den Markt sind die sog. Nullbarriere-Schwellen MACO Multi Zero. Sie schließen ebenerdig mit dem Boden ab, sodass sie weder für Bobby Cars noch für Rollatoren oder Rollstühle ein Hindernis darstellen.

Varianten von Balkontürschwellen

Balkontüren nach Maß

Einfach Balkontüren mit niedriger Schwelle oder Trittschutz online konfigurieren und günstig bestellen bei fensterblick

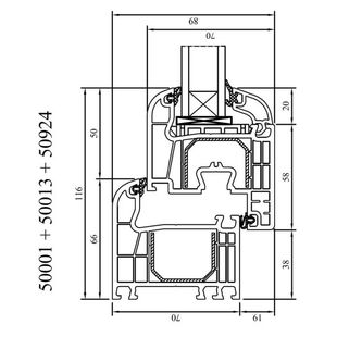
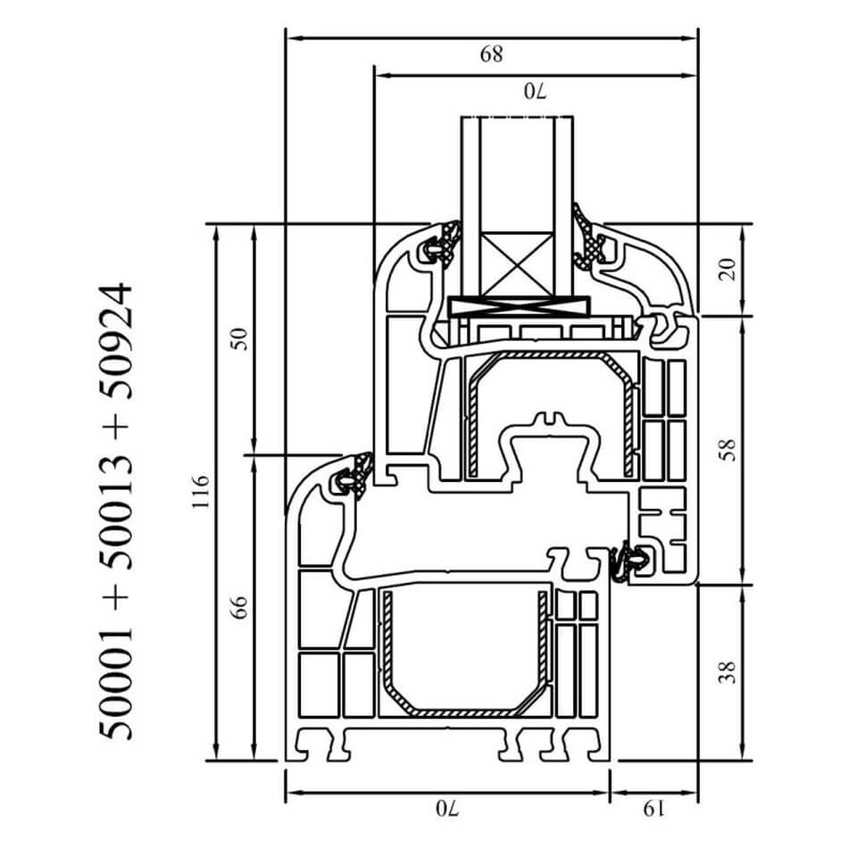
Balkontür mit flacher Schwelle 20 mm

Balkontür mit niedriger Schwelle 20mm
Niedrige Balkontürschwelle

Egal, welche Überzeugung Sie teilen, mit der richtigen Balkontürschwelle ist jedes Übertreten glückverheißend!

Gerade für Personen mit Handicap oder ältere Menschen sind hohe Schwellen an den Balkontüren häufig ein Grund auf die Vorzüge von Balkonen und Terrassen verzichten zu müssen.

Um die Lebensqualität spürbar zu verbessern, wurden niedrige Schwellen entwickelt. Die niedrige Balkontürschwelle für Kunststoffprofile besitzt eine Höhe von 20 mm und stellt somit kein Hindernis mehr für Rollatoren oder Rollstühle dar.

Die spezielle Konstruktion mit einem ausgeklügelten Dichtungssystem verhindert zudem das Bilden von Tau- oder Kondenswasser und sorgt für ein optimal herabfließenden des Wassers. Freuen Sie sich auf mehr Bewegungsfreiheit in Ihrem Zuhause und konfigurieren Sie sich Ihre Balkontür nach Maß einfach online!

Barrierefreie Balkontürschwelle

Balkontür niedrige Schwelle 20mm
Niedrige Balkontürschwelle

Mit den innovativen barrierefreien Türschwellen verschwimmen die Grenzen zwischen Außen- und Innenbereich. Die vorgeschriebene Schwellenhöhe bildet damit einen sanften, kaum spürbaren Übergang. Auch schwellenlose Übergänge mit Null-Punkt-Schwellen sind möglich.

Freuen Sie sich über eine ungeahnte Bewegungsfreiheit, die nicht mehr durch störende Schwellen beeinträchtigt wird. Gerade in Gebäuden, wo barrierefreie Zugänge vorgeschrieben sind oder auch für den eigenen persönlichen Wohnkomfort.

Eine spezielle Absenkdichtung sorgt für die notwendige Wasser- sowie Luftdichtheit und auch die gewohnten Dreh-Kipp-Balkontür Funktionen sind weiterhin voll verfügbar. Entdecken Sie die neue Barrierefreiheit für Ihre Balkontür!

Kunststoff Balkontüren mit Schwellen aus Holz

Balkontür Holzschwelle
Balkontür mit Holzschwelle

In besonderen Fällen ist manchmal eine Holzschwelle gewünscht, die den Übergang vom Innen- zum Außenbereich markieren soll.

Auch für die Sicherheit der Balkontür ist mit dieser Variante gesorgt. Hier werden die entsprechenden Beschläge auf der fest verleimten Holzplatte angebracht und bieten dadurch eine einwandfreie Funktionstüchtigkeit.

Die naturbelassene Holzschwelle fügt sich insbesondere bei alten Holzböden optimal in die Raumgestaltung ein und bildet einen harmonischen Übergang. Lassen Sie sich gern von unserem freundlichen Team beraten, welche Türschwelle die richtige für Sie ist, und was es sonst noch zu beachten gilt.

Gratis levering

Vanaf een bestelling van 10 kozijnen in heel Nederland!

Nu balkondeuren online configureren