Configureer en bestel eenvoudig en comfortabel Aluplast ramen en deuren online bij kozijnenblik.nl
Alu-Fenster Aliplast Imperial
Langlebige Lösung für ein warmes Zuhause
- 3-Kammersystem aus hochwertigem Aluminium
- 3 Systemvarianten: ST, i und i+
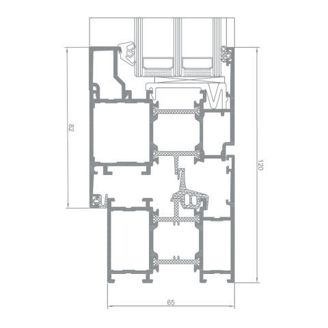
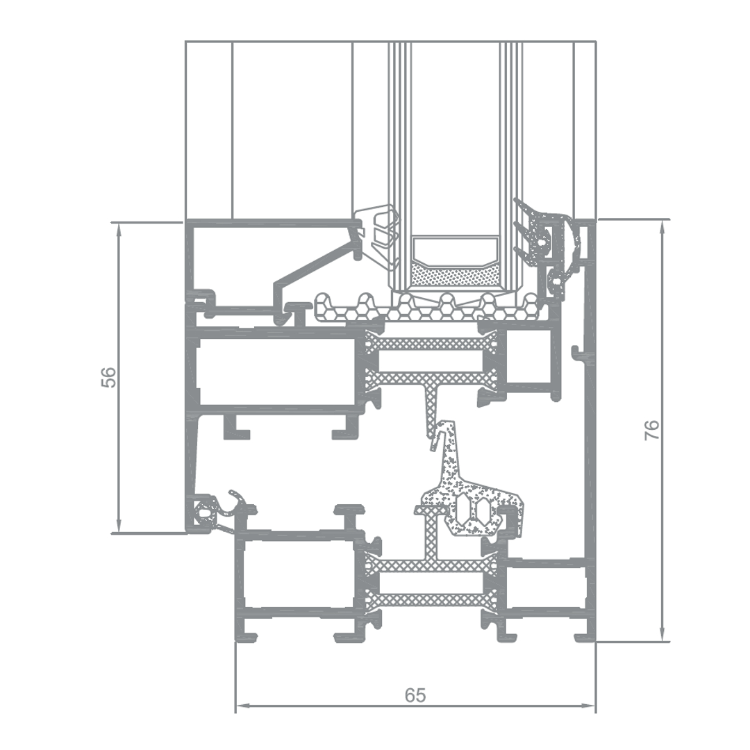
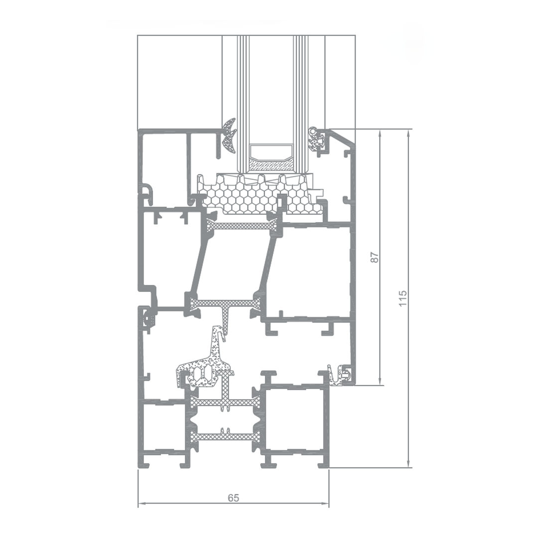
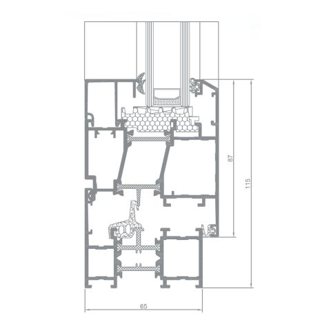
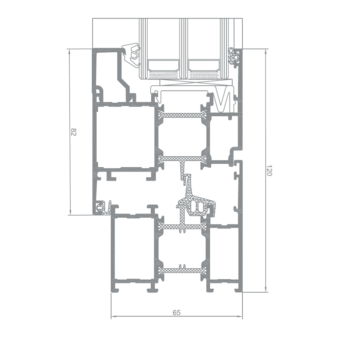
- Rahmeneinbautiefe: 65 mm
- Flügelbautiefe: 74 mm
- Maximale Glasstärke bis 51 mm
- Spezielle thermische Einlagen für hervorragende Wärmedämmung
vanaf 142,21 €
incl. 21% BTW excl. verzendkosten
Produktbeschreibung
Außergewöhnliche Wärmedämmung und Vielfalt auf allen Ebenen – Aliplast Imperial
Die Profile der Serie Aliplast Imperial bestehen aus einem 3-Kammersystem, das sich durch seine ausgezeichnete Wärmedämmung hervorhebt. Das Aluminiumsystem Imperial ist in den Varianten Standard, SU und OUT erhältlich. Zusätzlich können die Wärmeisolierenden Eigenschaften mit den Systemvarianten i und i+ verbessert werden. Fenster der IP i+ Serie haben eine spezielle thermische Trennung, die zwischen den Wärmedämmzwischenlagen und um das Glas herum eingebaut werden. So steigt die thermische Isolierung und der Energieverbrauch sinkt. Imperial i+ Fenster können sowohl in öffentlichen Gebäuden als auch in Ein- oder Mehrfamilienhäuser eingesetzt werden. Die Version IP SU ist mit einem verdeckten, von außen unsichtbarem Fensterflügel ausgestattet. So können Fenster in einer Alu- oder Glasfassade „versteckt“ werden. Das Aluprofil IP OUT ist für Kippfenster und nach außen öffnende Fenster entwickelt worden. Diese Variante zeichnet sich durch die Flächenbündigkeit des Rahmens und des Fensters aus. So kann der ganze Innenraum eines Objektes frei genutzt werden. Eine sehr große Auswahl an Farben ermöglicht Ihnen – fast ohne Grenzen – Ihre Wünsche und Vorstellungen zu verwirklichen. Im Konfigurator können Sie RAL Farben, strukturelle Farben, Holzfarben Aliplast Wood Colour Effect, Anode oder Doppelfarbe wählen.
Vorteile vom Aliplast Imperial Fenster:
Profil:
3-Kammerprofil aus Aluminium mit thermischer Trennung; optional in den wärmeisolierenden Varianten i und i+ erhältlich
Verglasung:
2-fache bis 3-fache Isolierverglasung bis zu einer Stärke von 61 mm; optional Spezialgläser einsetzbar
Dichtungen:
Dichtungen mit hoher Widerstandsfähigkeit gegen Feuchte und Witterungseinflüsse
Beschläge:
Hochwertige Markenbeschläge für eine dauerhafte Funktionalität und hohen Einbruchschutz
Breite Auswahl an Farben für mehr Farbspielraum
Die präsentierten Farben und Maserungen können von der Realität abweichen. (Klicken Sie auf Ihre Wunschfarbe)
Zusammenfassung: Produktinformationen
Aluminiumfenster Aliplast Imperial
Das hochwertige Aluminiumprofil Aliplast Imperial besteht aus drei Kammern mit thermischer Trennung. Optional in den Varianten i und i+ inkl. spezieller Wärmedämmeinlagen erhältlich. So werden herausragende Wärmedämmwerte erreicht. Darüber hinaus offeriert das Alusystem vielfältige Gestaltungsmöglichkeiten.
- Marke: Aliplast
- Profil: Imperial
- Material: Aluminium
- Farbe: Weiß (weitere RAL Farben möglich)
- Verfügbarkeit: Lieferbar
- Zustand: Neu
- Preis: Auf Anfrage
- Online-Shop: fensterblick.de
Weitere Aluminium-Profilsysteme von Aliplast:
Alu-Fenster Aliplast Superial
Alu-Fenster Aliplast Genesis 75
Alu-Fenster Aliplast Steel look
Alu-Fenster Aliplast Ecofutural





